• 手机版

    扫码体验手机版

  • 微信公众号

    扫码关注公众号

登录注册
游客您好
第三方账号登陆

[常山] 常山阳光名都35-3-4#86㎡北欧——暖木

[复制链接]
发表于 2019-12-25 12:58:04 | 显示全部楼层 |阅读模式
常山阳光名都35-3-4#86㎡北欧——暖木

格堂装饰为您全程记录装修全过程!

小区名称
阳光名都
房屋面积
86㎡
户型结构
套房
装修风格
北欧
装修方式
全包
装修造价
查看请联系客服万元
设计师
毛工
项目经理
李工
装修公司
格堂装饰
完工实景
完工实景
水电全景
水电全景
VR全景
VR全景
设计说明
北欧并不是冷的,是可以让颜色来温暖的,选择了北欧的画风也未必不能温暖。浅灰色点缀着客厅的空间,绿植盆栽给空间多了些许生机。主人房的空间使用了高级灰为主色,打造了一个清晰温暖的北欧风,墙面简单的一抹乳胶漆,配上相呼应的装饰画,优雅舒适。
更多信息
本帖最后由 格堂小丽 于 2021-11-1 13:49 编辑

效果图

2b8e1f7a35771fb5fda391be4a42fbb.jpg

9afa3325fed88d20c14d1ce0e2de131.jpg


回复

使用道具 举报

 楼主| 发表于 2019-12-25 13:04:58 | 显示全部楼层
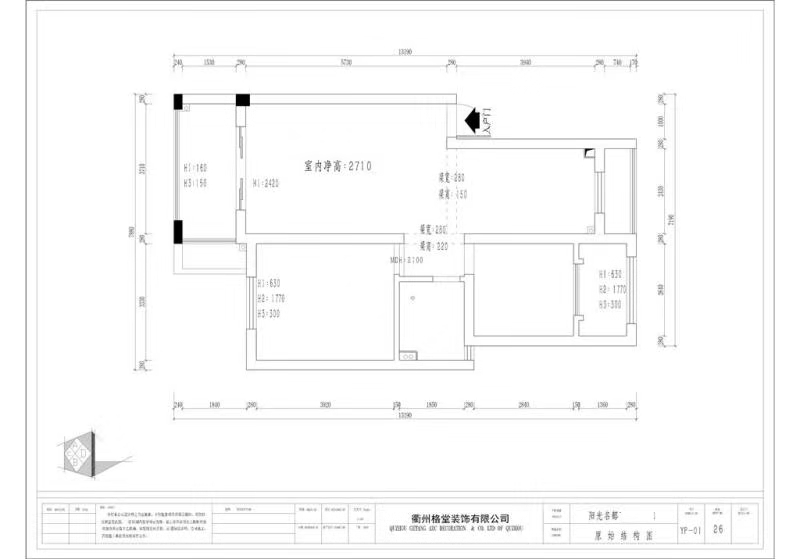
原始结构图

176fcc70e5dff98e96e247bec3992dc.jpg


回复 支持 反对

使用道具 举报

 楼主| 发表于 2019-12-25 13:05:17 | 显示全部楼层
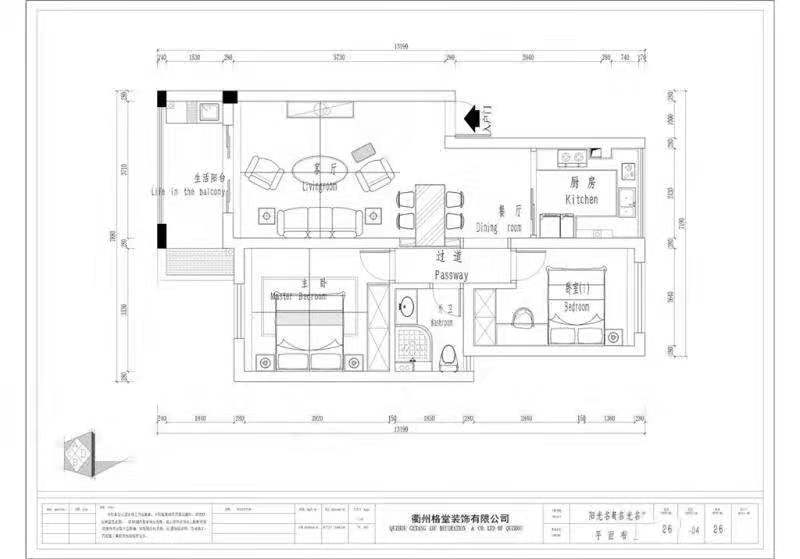
平面布置图

30b02147a1a58d377d2ce297420e866.jpg


回复 支持 反对

使用道具 举报

 楼主| 发表于 2019-12-25 13:10:19 | 显示全部楼层
楼梯口地面做好保护,墙面也要做好保护,防止后期施工中 磕碰到

5f34702f1738ea0c6018d632e5e0c9b.jpg

cd58af52f0b18bffb4421a62f9eae00.jpg


回复 支持 反对

使用道具 举报

 楼主| 发表于 2019-12-25 13:11:14 | 显示全部楼层
进户门门套保护大门,防止后期施工搬运货物时磕碰到

c097756f62688979dfc5ab5c3561af8.jpg


回复 支持 反对

使用道具 举报

 楼主| 发表于 2019-12-25 13:13:24 | 显示全部楼层
开工仪式准备工作先做起来,开工横幅,鲜花,施工规范牌挂号

a5814ea94d4c06901b1787ef8c6a909.jpg

回复 支持 反对

使用道具 举报

 楼主| 发表于 2019-12-25 13:14:34 | 显示全部楼层
格堂专用简易马桶安装到位,美观实用

77d61b0098af7393f0eeee53ddbeb5a.jpg


回复 支持 反对

使用道具 举报

 楼主| 发表于 2019-12-25 13:16:26 | 显示全部楼层
下水管道用格堂专用保护盖保护,防止后期施工中砂石堵塞进入管道

54209973ce703c40f073a0f38224cf1.jpg

ea0ec50928866befa9a1a089947de02.jpg

80e0747d3edf9c666c5f6c6ffea8de0.jpg



回复 支持 反对

使用道具 举报

 楼主| 发表于 2019-12-25 13:17:32 | 显示全部楼层
灭火器和烟头盒准备到位
ad97026f2ad2be8baf32b7d0ac9f4d4.jpg



回复 支持 反对

使用道具 举报

 楼主| 发表于 2019-12-25 13:19:08 | 显示全部楼层
开工前,鲜花礼炮准备好

a1373649b4efce405f431d95f3507b1.jpg

b5b2185f268a5d9c58f3a0741e0cf07.jpg



回复 支持 反对

使用道具 举报

您需要登录后才可以回帖 登录 | 立即注册

本版积分规则

全国统一客服电话
0570-8028505

24x7小时免费咨询

  • 官方在线客服

    QQ客服:小西

    点击交谈

    QQ客服:良子

    点击交谈

    QQ客服:闵月

    点击交谈
  • 衢州市柯城区财富中心3号楼2楼

  • 衢州格堂装饰有限公司

  • 扫一扫关注官方微信

    获取一手特惠信息

快速回复 返回顶部 返回列表