• 手机版

    扫码体验手机版

  • 微信公众号

    扫码关注公众号

登录注册
游客您好
第三方账号登陆

衢州公馆11-3-18#143㎡新中式——东方水墨/从心开始

[复制链接]
发表于 2020-11-1 10:02:44 | 显示全部楼层 |阅读模式
衢州公馆11-3-18#143㎡新中式——东方水墨/从心开始

格堂装饰实景完工案例欣赏!

小区名称
衢州公馆
房屋面积
143㎡
户型结构
套房
装修风格
新中式
装修方式
半包
装修造价
查看请联系客服万元
设计师
曹工
项目经理
余工
装修公司
格堂装饰
装修过程
装修日记
设计说明
从时尚中寻找古典,从古典中抛弃繁琐。回归简单的内心追求,让每一处细节设计都源于本心。保留中式的出处,注入当下人的元素。取形、表意、融现代舒适、展东方情怀,成一次东方归心之旅。
更多信息
更多信息
_E1A0070.jpg


回复

使用道具 举报

 楼主| 发表于 2020-11-1 10:05:18 | 显示全部楼层
本帖最后由 格堂方俊 于 2020-12-6 10:17 编辑


原始构图▼▼▼

100306k6bh7q7hg80q76l0.png


回复 支持 反对

使用道具 举报

 楼主| 发表于 2020-11-1 10:05:33 | 显示全部楼层
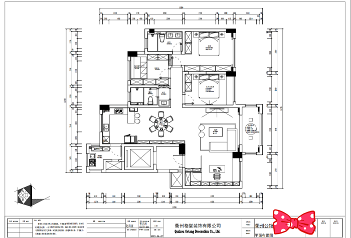
平面布置图▼▼▼

100337cah1e2kz59h5hf22.png


回复 支持 反对

使用道具 举报

 楼主| 发表于 2020-11-1 10:06:04 | 显示全部楼层
客厅▼▼▼

_E1A0068.jpg

_E1A0069.jpg

_E1A0070.jpg

_E1A0071.jpg

_E1A0072.jpg


回复 支持 反对

使用道具 举报

 楼主| 发表于 2020-11-1 10:07:05 | 显示全部楼层
餐厅▼▼▼

_E1A0082.jpg

_E1A0083.jpg

_E1A0084.jpg

_E1A0090.jpg


回复 支持 反对

使用道具 举报

 楼主| 发表于 2020-11-1 10:07:53 | 显示全部楼层
茶室▼▼▼

_E1A0067.jpg

_E1A0077.jpg

_E1A0078.jpg

_E1A0079.jpg


回复 支持 反对

使用道具 举报

 楼主| 发表于 2020-11-1 10:08:25 | 显示全部楼层
厨房▼▼▼

_E1A0086.jpg

_E1A0087.jpg

_E1A0088.jpg


回复 支持 反对

使用道具 举报

 楼主| 发表于 2020-11-1 10:08:45 | 显示全部楼层
玄关▼▼▼

_E1A0091.jpg


回复 支持 反对

使用道具 举报

 楼主| 发表于 2020-11-1 10:09:11 | 显示全部楼层
主卧▼▼▼

_E1A0002.jpg

_E1A0003.jpg


回复 支持 反对

使用道具 举报

 楼主| 发表于 2020-11-1 10:09:30 | 显示全部楼层
女儿房▼▼▼

_E1A0019.jpg

_E1A0020.jpg

_E1A0021.jpg


回复 支持 反对

使用道具 举报

您需要登录后才可以回帖 登录 | 立即注册

本版积分规则

全国统一客服电话
0570-8028505

24x7小时免费咨询

  • 官方在线客服

    QQ客服:小西

    点击交谈

    QQ客服:良子

    点击交谈

    QQ客服:闵月

    点击交谈
  • 衢州市柯城区财富中心3号楼2楼

  • 衢州格堂装饰有限公司

  • 扫一扫关注官方微信

    获取一手特惠信息

快速回复 返回顶部 返回列表