• 手机版

    扫码体验手机版

  • 微信公众号

    扫码关注公众号

登录注册
游客您好
第三方账号登陆

[衢州] 衢州公馆11-3-18#143㎡新中式——东方水墨/从心开始

[复制链接]
发表于 2019-7-10 10:02:57 | 显示全部楼层 |阅读模式
东方水墨/从心开始

格堂装饰为您全程记录装修全过程!

小区名称
衢州公馆
房屋面积
143㎡
户型结构
套房
装修风格
新中式
装修方式
半包
装修造价
查看请联系客服万元
设计师
曹工
项目经理
余工
装修公司
格堂装饰
完工实景
完工实景
水电全景
水电全景
VR全景
VR全景
设计说明
从时尚中寻找古典,从古典中抛弃繁琐。回归简单的内心追求,让每一处细节设计都源于本心。保留中式的出处,注入当下人的元素。取形、表意、融现代舒适、展东方情怀,成一次东方归心之旅。
更多信息

效果图。
8baedc787690c5ddb85aece95a75585.png

60dedab67c972d7966fbca67b995464.png

910f1d8cfa457734e91f5a9df7bb0e2.png

cce134fb2b545266214939fea48fd53.png
回复

使用道具 举报

 楼主| 发表于 2019-7-10 10:03:15 | 显示全部楼层

原始结构图。
46f7f18cfb85abac5329fbaebc120b0.png
回复 支持 反对

使用道具 举报

 楼主| 发表于 2019-7-10 10:03:45 | 显示全部楼层

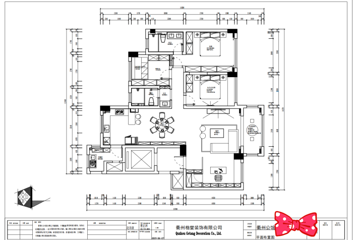
平面布置图。
0b135ad057eb891ea909880c9b3e32f.png
回复 支持 反对

使用道具 举报

 楼主| 发表于 2019-7-10 10:04:43 | 显示全部楼层
开工前,项目经理与师傅正在做大门保护。
IMG_20190703_150448.jpg

IMG_20190703_150659.jpg
回复 支持 反对

使用道具 举报

 楼主| 发表于 2019-7-10 10:06:03 | 显示全部楼层

开工前,项目经理与设计师正在做准备工作。
IMG_20190703_150706.jpg

IMG_20190703_151019.jpg
回复 支持 反对

使用道具 举报

 楼主| 发表于 2019-7-10 10:06:21 | 显示全部楼层

礼炮准备到位。
IMG_20190703_150505.jpg
回复 支持 反对

使用道具 举报

 楼主| 发表于 2019-7-10 10:06:43 | 显示全部楼层
王老吉已经摆好了。
IMG_20190703_150829.jpg
回复 支持 反对

使用道具 举报

 楼主| 发表于 2019-7-10 10:07:13 | 显示全部楼层

鲜花准备到位,非常的美丽。
IMG_20190703_150842.jpg
回复 支持 反对

使用道具 举报

 楼主| 发表于 2019-7-10 10:07:42 | 显示全部楼层

工具准备到位。
IMG_20190703_151525.jpg

IMG_20190703_151527.jpg
回复 支持 反对

使用道具 举报

 楼主| 发表于 2019-7-10 10:08:31 | 显示全部楼层

吉时到了,恭祝业主开工大吉。
IMG_20190703_151505.jpg

IMG_20190703_151422.jpg
回复 支持 反对

使用道具 举报

您需要登录后才可以回帖 登录 | 立即注册

本版积分规则

全国统一客服电话
0570-8028505

24x7小时免费咨询

  • 官方在线客服

    QQ客服:小西

    点击交谈

    QQ客服:良子

    点击交谈

    QQ客服:闵月

    点击交谈
  • 衢州市柯城区财富中心3号楼2楼

  • 衢州格堂装饰有限公司

  • 扫一扫关注官方微信

    获取一手特惠信息

快速回复 返回顶部 返回列表