• 手机版

    扫码体验手机版

  • 微信公众号

    扫码关注公众号

登录注册
游客您好
第三方账号登陆

中央郡2-1#170㎡ 中式——中式风

[复制链接]
发表于 2020-10-20 14:01:37 | 显示全部楼层 |阅读模式
中央郡2-1#170㎡ 中式——中式风

格堂装饰实景完工案例欣赏!

小区名称
中央郡
房屋面积
170㎡
户型结构
套房
装修风格
中式
装修方式
半包
装修造价
查看请联系客服万元
设计师
何工
项目经理
余工
装修公司
格堂装饰
装修过程
装修日记
设计说明
中式风格的代表是中国明清古典传统家具及中式园林建筑、色彩的设计造型对称、简约、朴素、格调雅致、文化内涵丰富,中式风格家居体现主人的较高审美情趣与社会地位。
更多信息
_E1A0179.jpg


回复

使用道具 举报

 楼主| 发表于 2020-10-20 14:01:57 | 显示全部楼层
本帖最后由 格堂方俊 于 2020-12-6 10:22 编辑


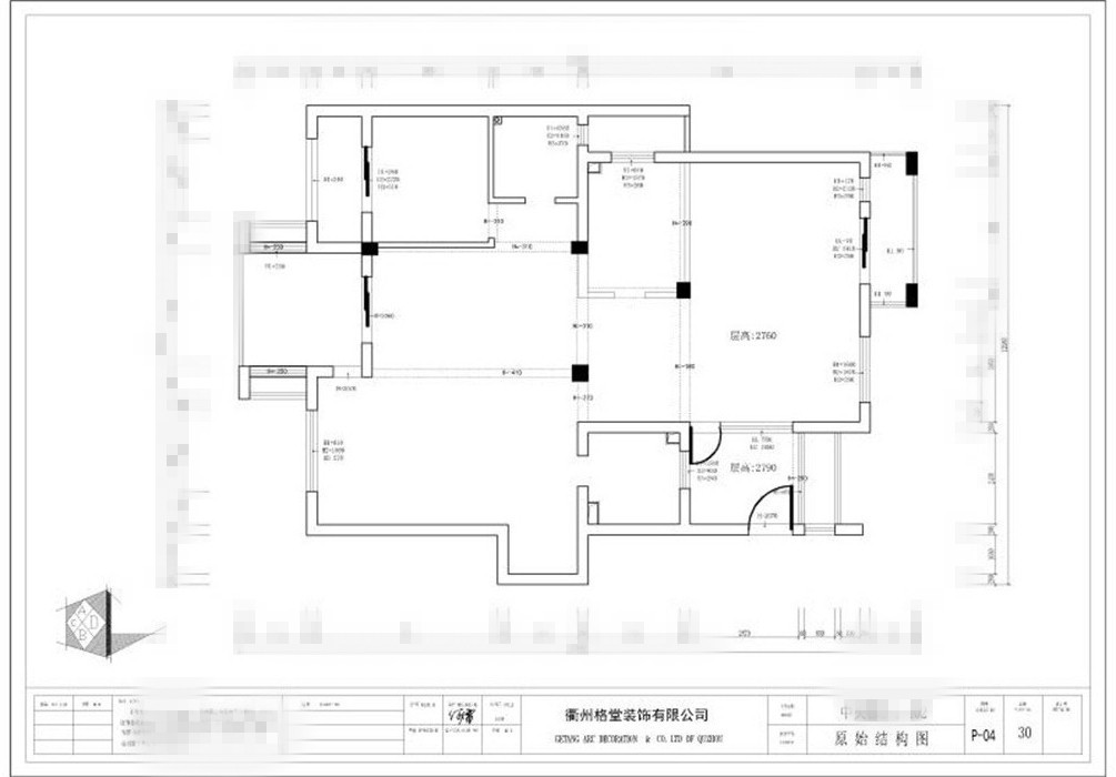
原始构图▼▼▼

115158mkerrra4k6659y36.jpg


回复 支持 反对

使用道具 举报

 楼主| 发表于 2020-10-20 14:02:15 | 显示全部楼层
平面布置图▼▼▼

115235d7k9l7p75qxr9ojq.jpg


回复 支持 反对

使用道具 举报

 楼主| 发表于 2020-10-20 14:03:34 | 显示全部楼层
客厅▼▼▼

_E1A0180.jpg

_E1A0179.jpg

_E1A0181.jpg

_E1A0182.jpg

_E1A0183.jpg

_E1A0185.jpg


回复 支持 反对

使用道具 举报

 楼主| 发表于 2020-10-20 14:04:11 | 显示全部楼层
餐厅▼▼▼

_E1A0190.jpg

_E1A0192.jpg

_E1A0195.jpg


回复 支持 反对

使用道具 举报

 楼主| 发表于 2020-10-20 14:04:34 | 显示全部楼层
玄关▼▼▼

_E1A0189.jpg


回复 支持 反对

使用道具 举报

 楼主| 发表于 2020-10-20 14:04:59 | 显示全部楼层
厨房▼▼▼

_E1A0199.jpg

_E1A0200.jpg

_E1A0201.jpg



回复 支持 反对

使用道具 举报

 楼主| 发表于 2020-10-20 14:05:34 | 显示全部楼层
次卧▼▼▼

_E1A0206.jpg

_E1A0208.jpg


回复 支持 反对

使用道具 举报

 楼主| 发表于 2020-10-20 14:05:54 | 显示全部楼层
主卧▼▼▼

_E1A0215.jpg

_E1A0216.jpg

_E1A0217.jpg


回复 支持 反对

使用道具 举报

 楼主| 发表于 2020-10-20 14:06:26 | 显示全部楼层
书房▼▼▼

_E1A0211.jpg

_E1A0212.jpg


回复 支持 反对

使用道具 举报

您需要登录后才可以回帖 登录 | 立即注册

本版积分规则

全国统一客服电话
0570-8028505

24x7小时免费咨询

  • 官方在线客服

    QQ客服:小西

    点击交谈

    QQ客服:良子

    点击交谈

    QQ客服:闵月

    点击交谈
  • 衢州市柯城区财富中心3号楼2楼

  • 衢州格堂装饰有限公司

  • 扫一扫关注官方微信

    获取一手特惠信息

快速回复 返回顶部 返回列表