• 手机版

    扫码体验手机版

  • 微信公众号

    扫码关注公众号

登录注册
游客您好
第三方账号登陆

[衢州] 中央郡2-1#170㎡ 中式——中式风

[复制链接]
发表于 2019-5-10 11:47:47 | 显示全部楼层 |阅读模式
中央郡2-1#㎡ 中式——中式风

格堂装饰为您全程记录装修全过程!

小区名称
中央郡
房屋面积
170㎡
户型结构
套房
装修风格
中式
装修方式
半包
装修造价
查看请联系客服万元
设计师
何工
项目经理
余工
装修公司
格堂装饰
完工实景
完工实景
水电全景
水电全景
VR全景
VR全景
设计说明
中式风格的代表是中国明清古典传统家具及中式园林建筑、色彩的设计造型对称、简约、朴素、格调雅致、文化内涵丰富,中式风格家居体现主人的较高审美情趣与社会地位。
更多信息
d09ac9ce791402a877175c7f52f6f35.jpg
88746e87b8977300fb834e44fcfa8ea.jpg
3669deb3bb556d71dcfb54c9cfad329.jpg
回复

使用道具 举报

 楼主| 发表于 2019-5-10 11:49:56 | 显示全部楼层
本帖最后由 格堂飞飞 于 2019-5-10 11:52 编辑

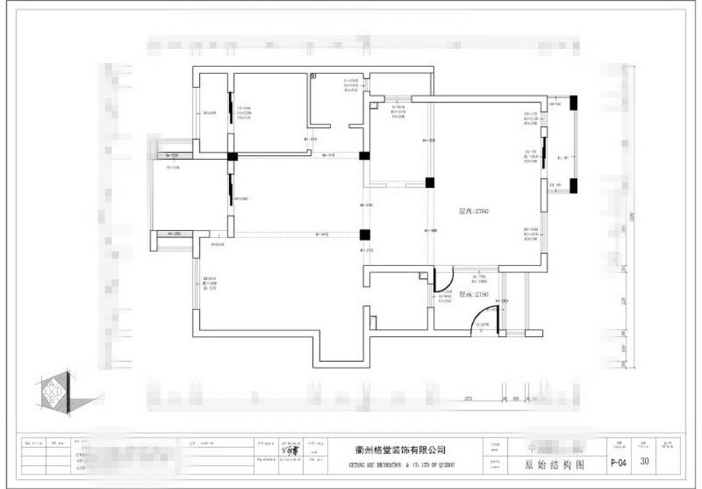
原始结构图
a76a0a7b00348e47c1d8dfb06836cd6_副本.jpg

回复 支持 反对

使用道具 举报

 楼主| 发表于 2019-5-10 11:50:26 | 显示全部楼层
本帖最后由 格堂飞飞 于 2019-5-10 11:54 编辑

平面布置图
dc19979c8f84ff0adf8a636700dd697_副本.jpg


回复 支持 反对

使用道具 举报

 楼主| 发表于 2019-5-10 12:00:11 | 显示全部楼层

开工前大门先要保护起来哦!
IMG_6397.JPG
大门保护到位,防止磕碰。
IMG_6396.JPG
回复 支持 反对

使用道具 举报

 楼主| 发表于 2019-5-10 12:01:03 | 显示全部楼层

师傅正在煤气表保护。
IMG_6398.JPG
回复 支持 反对

使用道具 举报

 楼主| 发表于 2019-5-10 12:01:37 | 显示全部楼层

煤气表保护到位,防止磕碰。
IMG_6399.JPG
回复 支持 反对

使用道具 举报

 楼主| 发表于 2019-5-10 12:02:38 | 显示全部楼层

临时马桶也安装到位,要讲究卫生哦!
IMG_6361.JPG
回复 支持 反对

使用道具 举报

 楼主| 发表于 2019-5-10 12:04:20 | 显示全部楼层

水管用格堂专用保护盖保护,防止砂石堵塞管道.

IMG_6362.JPG
回复 支持 反对

使用道具 举报

 楼主| 发表于 2019-5-10 12:05:29 | 显示全部楼层

师傅正在做开工前的准备工作哦!
IMG_6354.JPG

IMG_6365.JPG
回复 支持 反对

使用道具 举报

 楼主| 发表于 2019-5-10 12:07:07 | 显示全部楼层

吉时已到,恭祝业主大人开工大吉!
IMG_6400.JPG
回复 支持 反对

使用道具 举报

您需要登录后才可以回帖 登录 | 立即注册

本版积分规则

全国统一客服电话
0570-8028505

24x7小时免费咨询

  • 官方在线客服

    QQ客服:小西

    点击交谈

    QQ客服:良子

    点击交谈

    QQ客服:闵月

    点击交谈
  • 衢州市柯城区财富中心3号楼2楼

  • 衢州格堂装饰有限公司

  • 扫一扫关注官方微信

    获取一手特惠信息

快速回复 返回顶部 返回列表