• 手机版

    扫码体验手机版

  • 微信公众号

    扫码关注公众号

登录注册
游客您好
第三方账号登陆

[衢州] 银湖山庄3-1-40#81㎡北欧 —北欧宜家

[复制链接]
发表于 2020-10-18 11:11:56 | 显示全部楼层 |阅读模式
北欧宜家

格堂装饰为您全程记录装修全过程!

小区名称
银湖山庄
房屋面积
81㎡
户型结构
套房
装修风格
北欧
装修方式
半包
装修造价
查看请联系客服万元
设计师
吴工
项目经理
周工
装修公司
格堂装饰
完工实景
完工实景
水电全景
水电全景
VR全景
VR全景
设计说明
整体线条简单、用极简低饱和度色块进行区分。
空间多处大面积留白、黑灰原木用以点缀,
使空间氛围贴近自然的同时仍保留理性空间审美。
更多信息
本帖最后由 格堂小范 于 2020-10-24 15:36 编辑


回复

使用道具 举报

 楼主| 发表于 2020-10-18 11:27:44 | 显示全部楼层
效果图


微信图片_20201018111010.jpg


微信图片_20201018111015.jpg



回复 支持 反对

使用道具 举报

 楼主| 发表于 2020-10-18 11:28:08 | 显示全部楼层
原始结构图


微信图片_20201018110941.jpg

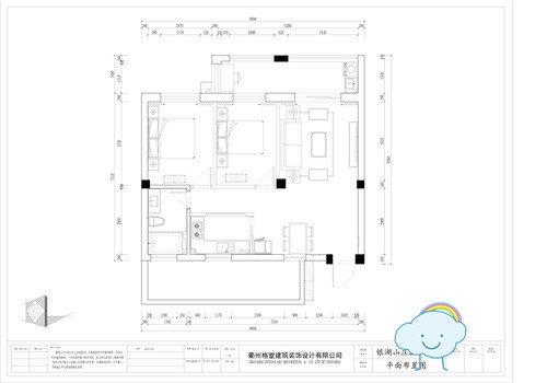
平面布置图


微信图片_20201018111007.jpg
回复 支持 反对

使用道具 举报

 楼主| 发表于 2020-10-24 16:00:28 | 显示全部楼层
施工之前先验房  查看有无问题



IMG_20201012_091006.jpg


IMG_20201012_091032.jpg



IMG_20201012_091044.jpg


IMG_20201012_091330.jpg

此处有空鼓标记到位   已经联系物业处理

IMG_20201012_091151.jpg
回复 支持 反对

使用道具 举报

 楼主| 发表于 2020-10-24 16:01:58 | 显示全部楼层
施工之前临时马桶安放到位   ,保持工地卫生干净


IMG_20201012_090652.jpg



煤气表保护到位    防止后期磕碰


IMG_20201012_090700.jpg



大门保护到位



IMG_20201012_092827.jpg



开工道具准备到位


IMG_20201012_090726.jpg
回复 支持 反对

使用道具 举报

 楼主| 发表于 2020-10-24 16:02:57 | 显示全部楼层
电梯地面瓷砖用格堂专用保护膜保护到位



IMG_20201012_101319.jpg


IMG_20201012_101305.jpg


IMG_20201012_101314.jpg



IMG_20201012_101328.jpg


IMG_20201012_101338.jpg
回复 支持 反对

使用道具 举报

 楼主| 发表于 2020-10-24 16:07:10 | 显示全部楼层
用格堂专用保护膜保护地面

IMG_20201012_101349.jpg


IMG_20201012_101351.jpg



IMG_20201012_101359.jpg



IMG_20201012_101343.jpg



IMG_20201012_101353.jpg










回复 支持 反对

使用道具 举报

 楼主| 发表于 2020-10-24 16:09:36 | 显示全部楼层
现场和业主进行交接


IMG_20201012_094156.jpg


IMG_20201012_095326.jpg
回复 支持 反对

使用道具 举报

 楼主| 发表于 2020-10-24 16:10:58 | 显示全部楼层
仪式很短暂,家居装修却很长……与漫漫人生历程相比,这些短短一瞬,却包含了满满的心意。我们竭力用自己的专业技能,让每位业主拥有最接近梦想的家!恭祝开工大吉!


IMG_20201012_092158.jpg

装修开工第一锤应该由业主敲在要拆除的墙体的墙角(即拐角)上,象征一锤定音的意思,也是新房动土的一种表示方式。


IMG_20201012_091925.jpg


IMG_20201012_092955.jpg

回复 支持 反对

使用道具 举报

 楼主| 发表于 2020-10-24 16:15:29 | 显示全部楼层
红砖浇水湿润


mmexport1602825774217.jpg



mmexport1602825770225.jpg


​新老墙交界处已放置膨胀螺栓,起到连接砌体防止开裂的作用



mmexport1602825779956.jpg


mmexport1602825788168.jpg



mmexport1602825776557.jpg

回复 支持 反对

使用道具 举报

您需要登录后才可以回帖 登录 | 立即注册

本版积分规则

全国统一客服电话
0570-8028505

24x7小时免费咨询

  • 官方在线客服

    QQ客服:小西

    点击交谈

    QQ客服:良子

    点击交谈

    QQ客服:闵月

    点击交谈
  • 衢州市柯城区财富中心3号楼2楼

  • 衢州格堂装饰有限公司

  • 扫一扫关注官方微信

    获取一手特惠信息

快速回复 返回顶部 返回列表