• 手机版

    扫码体验手机版

  • 微信公众号

    扫码关注公众号

登录注册
游客您好
第三方账号登陆

牡丹园7-3-7#168㎡美式——春风得意/享受你的美

[复制链接]
发表于 2020-9-27 08:35:09 | 显示全部楼层 |阅读模式
牡丹园7-3-7#168㎡美式——春风得意/享受你的美

格堂装饰实景完工案例欣赏!

小区名称
牡丹园
房屋面积
168㎡
户型结构
套房
装修风格
美式
装修方式
全包
装修造价
查看请联系客服万元
设计师
曹工
项目经理
周工
装修公司
格堂装饰
装修过程
装修日记
设计说明
享受工作的欢快,享受朋友的笑声,享受家人的温馨,享受创造的快乐,享受果实的甜美。
享受充满阳光的午后,慵懒的倚在沙发上,一杯咖啡,一本书。
有文化感、有贵气感,不缺乏自在感与情调感。
更多信息
_E1A9350.jpg


回复

使用道具 举报

 楼主| 发表于 2020-9-27 08:36:10 | 显示全部楼层
本帖最后由 格堂方俊 于 2020-12-6 10:26 编辑


原始构图▼▼▼
110738gw77zcorzw8wp0ry.jpg




回复 支持 反对

使用道具 举报

 楼主| 发表于 2020-9-27 08:36:36 | 显示全部楼层
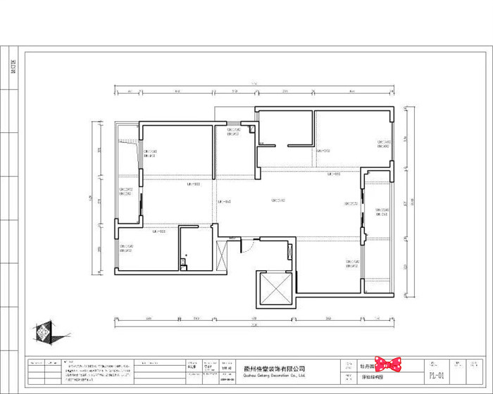
平面布置图▼▼▼

111131dluglllu5u6v99uv.jpg


回复 支持 反对

使用道具 举报

 楼主| 发表于 2020-9-27 08:36:54 | 显示全部楼层
客厅▼▼▼

_E1A9350.jpg

_E1A9352.jpg

_E1A9351.jpg

_E1A9353.jpg

_E1A9354.jpg

_E1A9356.jpg


回复 支持 反对

使用道具 举报

 楼主| 发表于 2020-9-27 08:37:36 | 显示全部楼层
餐厅▼▼▼

_E1A9361.jpg

_E1A9358.jpg

_E1A9359.jpg

_E1A9360.jpg



回复 支持 反对

使用道具 举报

 楼主| 发表于 2020-9-27 08:38:00 | 显示全部楼层
书房▼▼▼

_E1A9365.jpg

_E1A9366.jpg


回复 支持 反对

使用道具 举报

 楼主| 发表于 2020-9-27 08:38:16 | 显示全部楼层
主卧▼▼▼

_E1A9378.jpg

_E1A9377.jpg

_E1A9380.jpg


回复 支持 反对

使用道具 举报

 楼主| 发表于 2020-9-27 08:38:38 | 显示全部楼层
次卧▼▼▼

_E1A9367.jpg

_E1A9369.jpg


回复 支持 反对

使用道具 举报

 楼主| 发表于 2020-9-27 08:38:57 | 显示全部楼层
小孩房▼▼▼

_E1A9373.jpg

_E1A9375.jpg

_E1A9374.jpg

_E1A9376.jpg


回复 支持 反对

使用道具 举报

 楼主| 发表于 2020-9-27 08:39:24 | 显示全部楼层
厨房▼▼▼

_E1A9392.jpg


回复 支持 反对

使用道具 举报

您需要登录后才可以回帖 登录 | 立即注册

本版积分规则

全国统一客服电话
0570-8028505

24x7小时免费咨询

  • 官方在线客服

    QQ客服:小西

    点击交谈

    QQ客服:良子

    点击交谈

    QQ客服:闵月

    点击交谈
  • 衢州市柯城区财富中心3号楼2楼

  • 衢州格堂装饰有限公司

  • 扫一扫关注官方微信

    获取一手特惠信息

快速回复 返回顶部 返回列表