• 手机版

    扫码体验手机版

  • 微信公众号

    扫码关注公众号

登录注册
游客您好
第三方账号登陆

[衢州] 牡丹园7-3-7#168㎡美式——春风得意/享受你的美

[复制链接]
发表于 2019-10-6 11:06:39 | 显示全部楼层 |阅读模式
春风得意/享受你的美

格堂装饰为您全程记录装修全过程!

小区名称
牡丹园
房屋面积
168㎡
户型结构
套房
装修风格
美式
装修方式
全包
装修造价
查看请联系客服万元
设计师
曹工
项目经理
周工
装修公司
格堂装饰
完工实景
完工实景
水电全景
水电全景
VR全景
VR全景
设计说明
享受工作的欢快,享受朋友的笑声,享受家人的温馨,享受创造的快乐,享受果实的甜美。
享受充满阳光的午后,慵懒的倚在沙发上,一杯咖啡,一本书。
有文化感、有贵气感,不缺乏自在感与情调感。
更多信息
效果图。
3c3c97a50465ff493d5c2634eca4437.jpg
8d3a3dc85ff6979acb94988f8db8fe0.jpg
0081152a9868445e1ffc6a5fcb78bcd.jpg
e3eacc151f1d1f5d242390c2cc11204.jpg
回复

使用道具 举报

 楼主| 发表于 2019-10-6 11:07:52 | 显示全部楼层

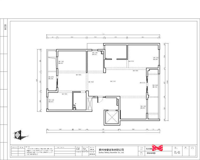
原始结构图。
0a758c92c9291a268f251e893ad567f.jpg
回复 支持 反对

使用道具 举报

 楼主| 发表于 2019-10-6 11:09:28 | 显示全部楼层

地向材质图。
9b66f83050bbe0ad0e995cf47ec2df1.jpg
回复 支持 反对

使用道具 举报

 楼主| 发表于 2019-10-6 11:10:32 | 显示全部楼层

吊顶布置图。
9407a81f830f174c7fadb3a84d23157.jpg
回复 支持 反对

使用道具 举报

 楼主| 发表于 2019-10-6 11:11:09 | 显示全部楼层

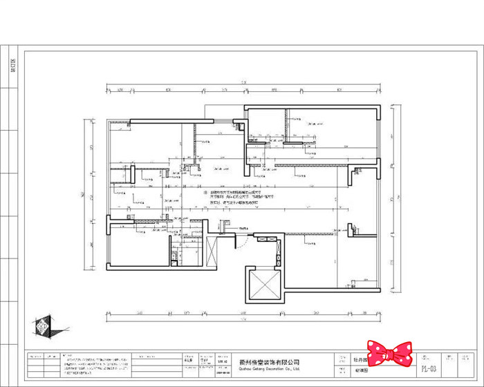
拆墙图。
e52ff8feda3aee9d4787cf975d6a45e.jpg
回复 支持 反对

使用道具 举报

 楼主| 发表于 2019-10-6 11:11:49 | 显示全部楼层

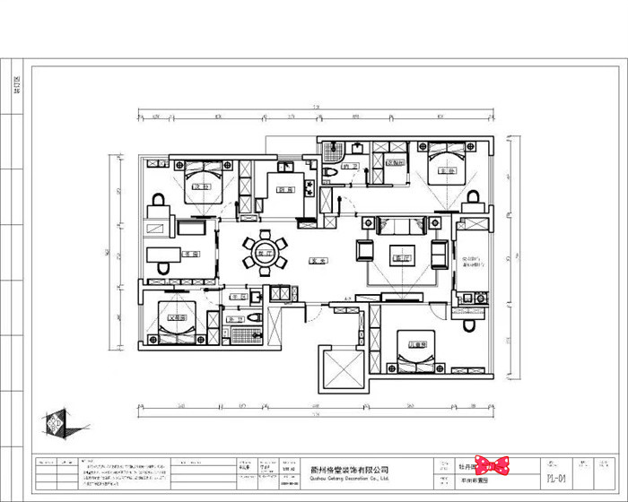
平面布置图。
e89360488f743d86659b68eb538e7c1.jpg
回复 支持 反对

使用道具 举报

 楼主| 发表于 2019-10-6 11:12:11 | 显示全部楼层

拆墙图。
fa765c56ba5f9c4c65d11f21f673108.jpg
回复 支持 反对

使用道具 举报

 楼主| 发表于 2019-10-6 11:15:27 | 显示全部楼层

鲜花已经到位,送给美丽的业主大人。
IMG_20191002_090524.jpg

IMG_20191002_091123.jpg
回复 支持 反对

使用道具 举报

 楼主| 发表于 2019-10-6 11:17:56 | 显示全部楼层

开工前正在做准备工作。
IMG_20191002_090558.jpg
师傅正在做大门保护。
IMG_20191002_090612.jpg

IMG_20191002_090805.jpg
门槛用红胶带保护到位。
IMG_20191002_091052.jpg

IMG_20191002_091637.jpg
回复 支持 反对

使用道具 举报

 楼主| 发表于 2019-10-6 11:19:34 | 显示全部楼层

设计师与项目经理正在交流,需要拆改的位置已经标记到位,方便后续师傅施工。
IMG_20191002_091639.jpg

IMG_20191002_091802.jpg

IMG_20191002_091848.jpg

IMG_20191002_091833.jpg

IMG_20191002_091839.jpg
回复 支持 反对

使用道具 举报

您需要登录后才可以回帖 登录 | 立即注册

本版积分规则

全国统一客服电话
0570-8028505

24x7小时免费咨询

  • 官方在线客服

    QQ客服:小西

    点击交谈

    QQ客服:良子

    点击交谈

    QQ客服:闵月

    点击交谈
  • 衢州市柯城区财富中心3号楼2楼

  • 衢州格堂装饰有限公司

  • 扫一扫关注官方微信

    获取一手特惠信息

快速回复 返回顶部 返回列表