• 手机版

    扫码体验手机版

  • 微信公众号

    扫码关注公众号

登录注册
游客您好
第三方账号登陆

【格堂*鹿来山庄*】离尘·不离城

[复制链接]
发表于 2020-2-12 15:55:28 | 显示全部楼层 |阅读模式
【格堂*鹿来山庄*】离尘·不离城

格堂装饰实景完工案例欣赏!

小区名称
鹿来山庄
房屋面积
658㎡
户型结构
别墅
装修风格
中式
装修方式
半包
装修造价
查看请联系客服万元
设计师
王工
项目经理
周工
装修公司
格堂装饰
装修过程
装修日记
设计说明
待添加...
更多信息
7E1A2674.jpg


回复

使用道具 举报

 楼主| 发表于 2020-2-12 15:58:02 | 显示全部楼层
本帖最后由 格堂方俊 于 2020-12-6 10:37 编辑


原始构图▼▼▼

37badbe33928d0aa0a171d17f0b68a66_150431plhmoahxhk5nat11.jpg

73a4e15c2af980d221bde80a714e326e_150618ymdmwuimumjiiija.jpg

859c2e085125ca6798adacb27d1d09fe_150531pd02io00oo27l2cc.jpg

40630b3ca54b2959e93e617a94539831_150648ngmaqgael6g9omu3.jpg

bbab1b3e99d8143b183b1c3994b0714a_150214h38r99l9aharnrjg.jpg

a2ca5c2d56ee6257354078f336342cef_145914uuvlvuvvuuu3utrb.jpg


回复 支持 反对

使用道具 举报

 楼主| 发表于 2020-2-12 15:58:31 | 显示全部楼层
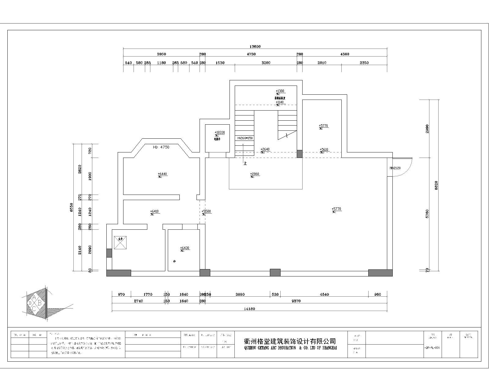
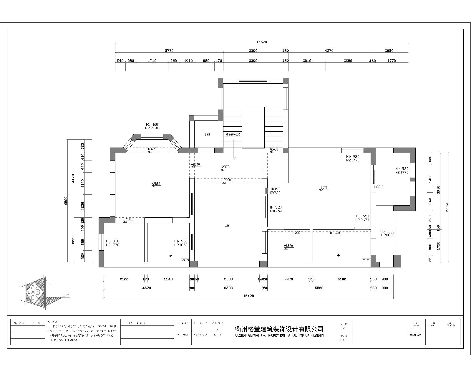
平面布置图▼▼▼

40630b3ca54b2959e93e617a94539831_150648ngmaqgael6g9omu3.jpg

049f8e1aa9acb6c8beced439fd2a81ed_150548h49xydhhq40l1149.jpg

057f3c43260626a4be6478cb66fc1290_150111rbgb2zypyf2yem9z.jpg

840600644a36763653fc7fece677a2f5_150343l9df3fcuy9ryrpxc.jpg

b13860e5f7604b564aad3350c5b4f62c_150251wr73plnrmt61rn1c.jpg

c8ed03215dc33b3e012fe5cf16a56382_150504flhs1zy9shl99hsl.jpg


回复 支持 反对

使用道具 举报

 楼主| 发表于 2020-2-12 15:59:18 | 显示全部楼层
客厅▼▼▼

7E1A2673.jpg

7E1A2671.jpg

7E1A2674.jpg

7E1A2675.jpg

7E1A2678.jpg

7E1A2676.jpg


回复 支持 反对

使用道具 举报

 楼主| 发表于 2020-2-12 15:59:56 | 显示全部楼层
大茶厅▼▼▼

7E1A2704.jpg

7E1A2703.jpg


回复 支持 反对

使用道具 举报

 楼主| 发表于 2020-2-12 16:00:24 | 显示全部楼层
钢琴室▼▼▼

7E1A2683.jpg

7E1A2686.jpg

7E1A2684.jpg

7E1A2688.jpg


回复 支持 反对

使用道具 举报

 楼主| 发表于 2020-2-12 16:00:45 | 显示全部楼层
干区▼▼▼

7E1A2714.jpg

7E1A2713.jpg


回复 支持 反对

使用道具 举报

 楼主| 发表于 2020-2-12 16:01:23 | 显示全部楼层
餐厅▼▼▼

7E1A2731.jpg

7E1A2733.jpg

7E1A2735.jpg


回复 支持 反对

使用道具 举报

 楼主| 发表于 2020-2-12 16:01:34 | 显示全部楼层
厨房▼▼▼

7E1A2719.jpg

7E1A2721.jpg


回复 支持 反对

使用道具 举报

 楼主| 发表于 2020-2-12 16:01:56 | 显示全部楼层
楼道▼▼▼

7E1A2716.jpg

7E1A2724.jpg


回复 支持 反对

使用道具 举报

您需要登录后才可以回帖 登录 | 立即注册

本版积分规则

全国统一客服电话
0570-8028505

24x7小时免费咨询

  • 官方在线客服

    QQ客服:小西

    点击交谈

    QQ客服:良子

    点击交谈

    QQ客服:闵月

    点击交谈
  • 衢州市柯城区财富中心3号楼2楼

  • 衢州格堂装饰有限公司

  • 扫一扫关注官方微信

    获取一手特惠信息

快速回复 返回顶部 返回列表