• 手机版

    扫码体验手机版

  • 微信公众号

    扫码关注公众号

登录注册
游客您好
第三方账号登陆

[衢州] 【格堂*鹿来山庄*】离尘·不离城

[复制链接]
发表于 2017-7-8 13:55:42 | 显示全部楼层 |阅读模式

格堂装饰为您全程记录装修全过程!

小区名称
鹿来山庄
房屋面积
658㎡
户型结构
框架
装修风格
中式
装修方式
半包
装修造价
查看请联系客服万元
设计师
王工
项目经理
周工
装修公司
格堂装饰
完工实景
完工实景
水电全景
水电全景
VR全景
VR全景
设计说明
更多信息
本帖最后由 格堂小陈 于 2017-8-19 09:27 编辑

IMG_7899.JPG
回复

使用道具 举报

 楼主| 发表于 2017-7-8 14:02:01 | 显示全部楼层
本帖最后由 格堂小陈 于 2017-8-19 09:28 编辑

效果图
IMG_7897.JPG

回复 支持 反对

使用道具 举报

 楼主| 发表于 2017-7-8 14:02:20 | 显示全部楼层
本帖最后由 格堂小陈 于 2017-8-19 09:28 编辑

效果图
IMG_7898.JPG
回复 支持 反对

使用道具 举报

 楼主| 发表于 2017-7-8 14:03:57 | 显示全部楼层

回复

使用道具 举报

 楼主| 发表于 2017-7-8 15:00:31 | 显示全部楼层
负二层原始结构图

江山鹿来山庄--109-07 07--2.jpg
回复 支持 反对

使用道具 举报

 楼主| 发表于 2017-7-8 15:01:15 | 显示全部楼层
负二层平面布置

江山鹿来山庄--109-07 07--2-平面.jpg
回复 支持 反对

使用道具 举报

 楼主| 发表于 2017-7-8 15:02:22 | 显示全部楼层
负一层原始图

江山鹿来山庄--109-07 07--1.jpg
回复 支持 反对

使用道具 举报

 楼主| 发表于 2017-7-8 15:02:55 | 显示全部楼层
负一层平面布置

江山鹿来山庄--109-07 07--1-平面.jpg
回复 支持 反对

使用道具 举报

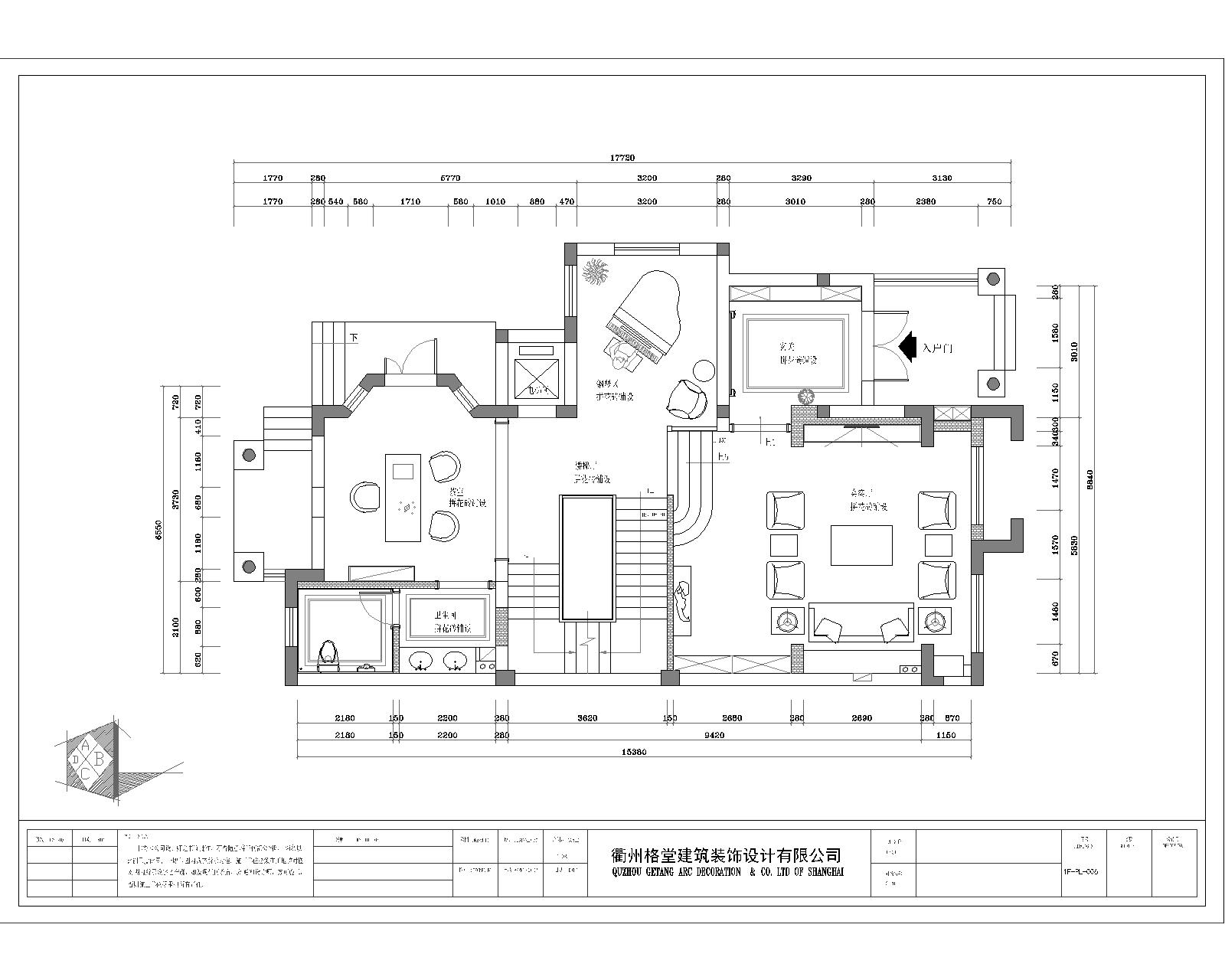
 楼主| 发表于 2017-7-8 15:03:26 | 显示全部楼层
一层原始图
江山鹿来山庄--109-07 07-1.jpg

回复 支持 反对

使用道具 举报

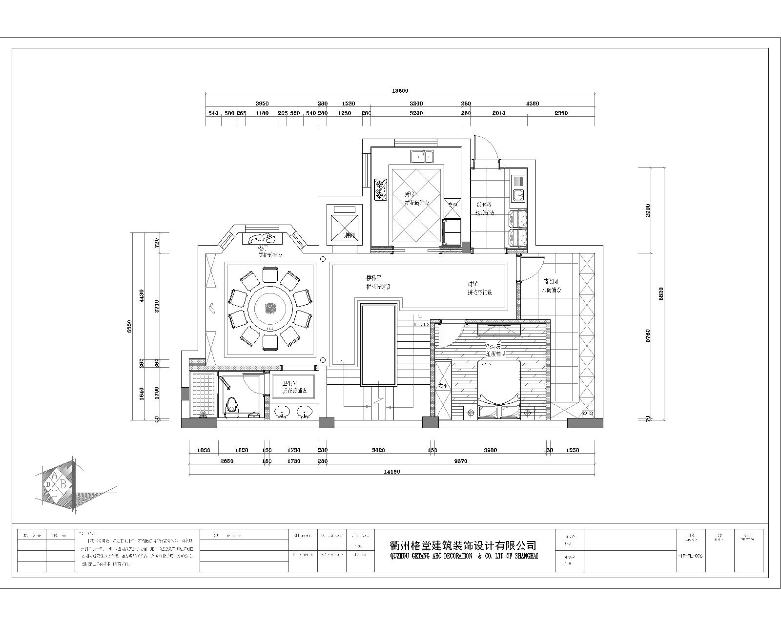
 楼主| 发表于 2017-7-8 15:04:00 | 显示全部楼层
一层平面布置

江山鹿来山庄--109-07 07-1-平面.jpg
回复 支持 反对

使用道具 举报

您需要登录后才可以回帖 登录 | 立即注册

本版积分规则

全国统一客服电话
0570-8028505

24x7小时免费咨询

  • 官方在线客服

    QQ客服:小西

    点击交谈

    QQ客服:良子

    点击交谈

    QQ客服:闵月

    点击交谈
  • 衢州市柯城区财富中心3号楼2楼

  • 衢州格堂装饰有限公司

  • 扫一扫关注官方微信

    获取一手特惠信息

快速回复 返回顶部 返回列表