• 手机版

    扫码体验手机版

  • 微信公众号

    扫码关注公众号

登录注册
游客您好
第三方账号登陆

[衢州] 【格堂*鹿来山庄*】离尘·不离城

[复制链接]
 楼主| 发表于 2017-7-8 15:04:42 | 显示全部楼层
二层原始图

江山鹿来山庄--109-07 07-2.jpg
回复 支持 反对

使用道具 举报

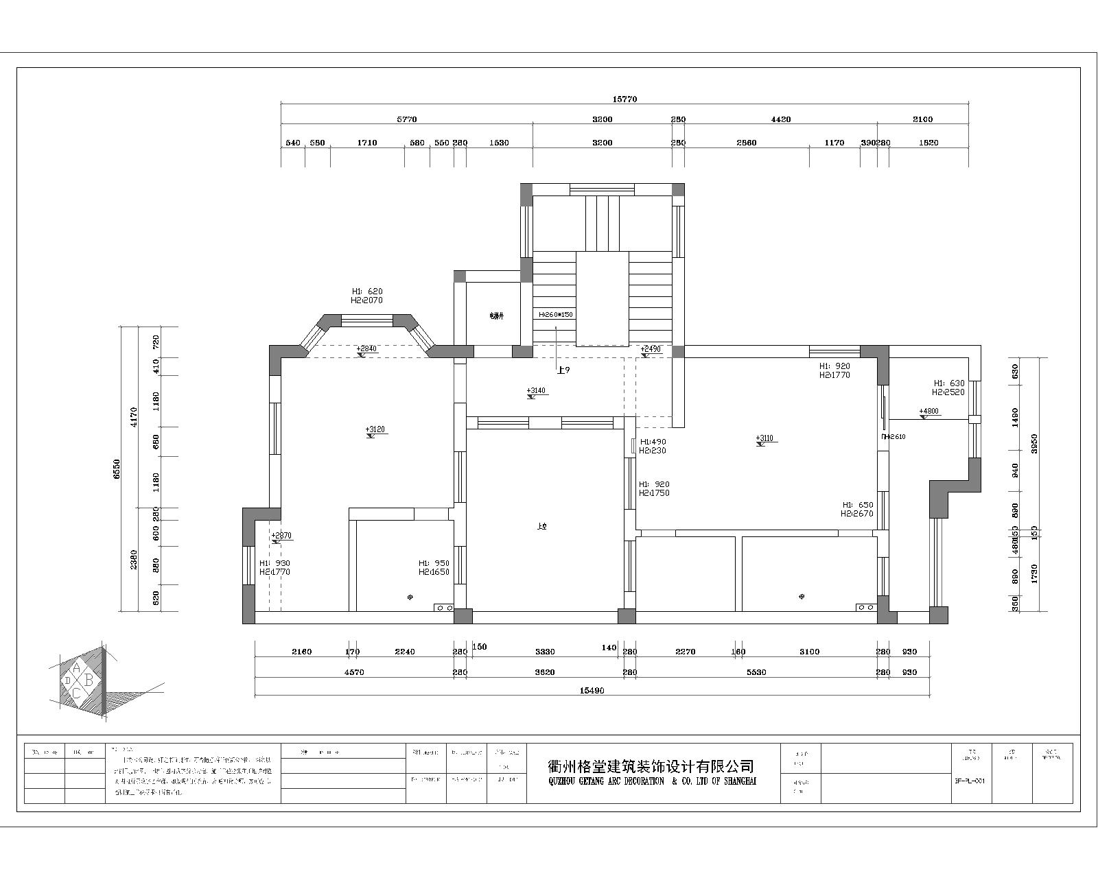
 楼主| 发表于 2017-7-8 15:05:11 | 显示全部楼层
二层平面布置

江山鹿来山庄--109-07 07-2-平面.jpg
回复 支持 反对

使用道具 举报

 楼主| 发表于 2017-7-8 15:05:35 | 显示全部楼层
三层原始图

江山鹿来山庄--109-07 07-3.jpg
回复 支持 反对

使用道具 举报

 楼主| 发表于 2017-7-8 15:05:59 | 显示全部楼层
三层平面图

江山鹿来山庄--109-07 07-3-平面.jpg
回复 支持 反对

使用道具 举报

 楼主| 发表于 2017-7-8 15:06:27 | 显示全部楼层
四层原始图

江山鹿来山庄--109-07 07-4.jpg
回复 支持 反对

使用道具 举报

 楼主| 发表于 2017-7-8 15:06:54 | 显示全部楼层
四层平面布置

江山鹿来山庄--109-07 07-4-平面.jpg
回复 支持 反对

使用道具 举报

 楼主| 发表于 2017-7-8 15:46:33 | 显示全部楼层
07月08日 好日子 我们出发去开工

IMG_7291.JPG
回复 支持 反对

使用道具 举报

 楼主| 发表于 2017-7-8 15:48:16 | 显示全部楼层
本帖最后由 格堂小陈 于 2017-7-8 15:50 编辑

开工吉时还没到,我们先做准备,横幅挂起来。

IMG_7292.JPG
回复 支持 反对

使用道具 举报

 楼主| 发表于 2017-7-8 15:54:46 | 显示全部楼层
本帖最后由 格堂小陈 于 2017-7-8 16:31 编辑

开工时间到啦   9:18

img20170708091807.jpg IMG20170708091856.jpg

回复 支持 反对

使用道具 举报

 楼主| 发表于 2017-7-8 15:56:56 | 显示全部楼层
业主大人敲下开工第一锤。
IMG_7308.JPG
回复 支持 反对

使用道具 举报

您需要登录后才可以回帖 登录 | 立即注册

本版积分规则

全国统一客服电话
0570-8028505

24x7小时免费咨询

  • 官方在线客服

    QQ客服:小西

    点击交谈

    QQ客服:良子

    点击交谈

    QQ客服:闵月

    点击交谈
  • 衢州市柯城区财富中心3号楼2楼

  • 衢州格堂装饰有限公司

  • 扫一扫关注官方微信

    获取一手特惠信息

快速回复 返回顶部 返回列表