• 手机版

    扫码体验手机版

  • 微信公众号

    扫码关注公众号

登录注册
游客您好
第三方账号登陆

郁金香郡11#128㎡美式——美式轻奢

[复制链接]
发表于 2020-2-12 15:01:52 | 显示全部楼层 |阅读模式
郁金香郡11#128㎡美式——美式轻奢

格堂装饰实景完工案例欣赏!

小区名称
郁金香郡
房屋面积
128㎡
户型结构
套房
装修风格
美式
装修方式
半包
装修造价
查看请联系客服万元
设计师
王工
项目经理
刘工
装修公司
格堂装饰
装修过程
装修日记
设计说明
客厅以素雅的色彩为肌理,配合金属饰边的家具及摆件,简洁而利落地诠释了现代美式的奢雅魅力。
与此同时,米色的沙发带来古典特有的浪漫,茶几上的黄山花艺和蓝色软装,为空间增添灵动的自然气息,在这个看似不张扬的空间里,却有着丰富的节奏递进。
更多信息
7E1A4486.jpg


回复

使用道具 举报

 楼主| 发表于 2020-2-12 15:02:30 | 显示全部楼层
本帖最后由 格堂方俊 于 2020-12-6 10:40 编辑


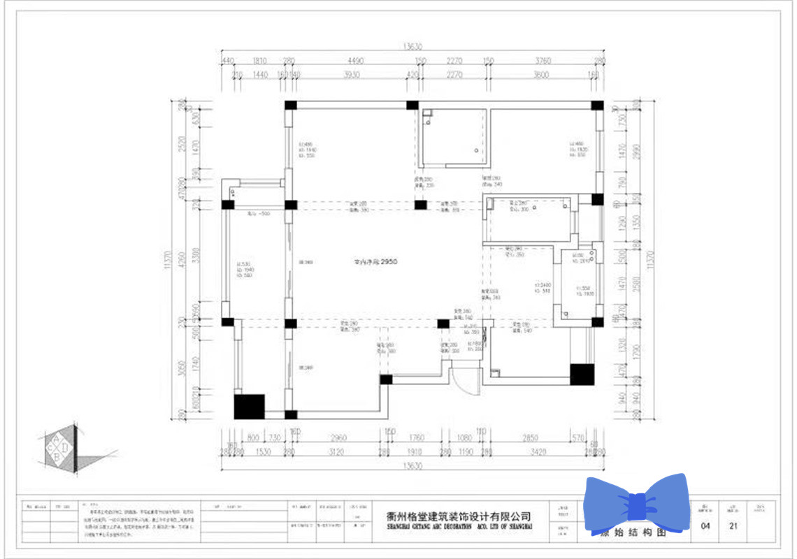
原始构图▼▼▼

e98da9fecf0735742a8867e04db052b1_103737eaatnuht4cczhapb.jpg


回复 支持 反对

使用道具 举报

 楼主| 发表于 2020-2-12 15:02:45 | 显示全部楼层
平面布置图▼▼▼

f840932492027d8364f5529b9adb4db5_103750kajqq3faab5quaxt.jpg


回复 支持 反对

使用道具 举报

 楼主| 发表于 2020-2-12 15:04:10 | 显示全部楼层
客厅▼▼▼

7E1A4486.jpg

7E1A4487.jpg

7E1A4494.jpg

7E1A4495.jpg

7E1A4496.jpg

7E1A4497.jpg

7E1A4498.jpg


回复 支持 反对

使用道具 举报

 楼主| 发表于 2020-2-12 15:04:36 | 显示全部楼层
餐厅▼▼▼

7E1A4502.jpg

7E1A4505.jpg

7E1A4503.jpg

7E1A4508.jpg

7E1A4510.jpg


回复 支持 反对

使用道具 举报

 楼主| 发表于 2020-2-12 15:05:42 | 显示全部楼层
厨房▼▼▼

7E1A4515.jpg

7E1A4514.jpg


回复 支持 反对

使用道具 举报

 楼主| 发表于 2020-2-12 15:06:05 | 显示全部楼层
玄关▼▼▼

7E1A4516.jpg


回复 支持 反对

使用道具 举报

 楼主| 发表于 2020-2-12 15:06:24 | 显示全部楼层
主卧▼▼▼

7E1A4524.jpg

7E1A4525.jpg

7E1A4526.jpg


回复 支持 反对

使用道具 举报

 楼主| 发表于 2020-2-12 15:06:45 | 显示全部楼层
次卧▼▼▼

7E1A4529.jpg

7E1A4528.jpg

7E1A4531.jpg


回复 支持 反对

使用道具 举报

 楼主| 发表于 2020-2-12 15:07:00 | 显示全部楼层
主卫▼▼▼

7E1A4527.jpg


回复 支持 反对

使用道具 举报

您需要登录后才可以回帖 登录 | 立即注册

本版积分规则

全国统一客服电话
0570-8028505

24x7小时免费咨询

  • 官方在线客服

    QQ客服:小西

    点击交谈

    QQ客服:良子

    点击交谈

    QQ客服:闵月

    点击交谈
  • 衢州市柯城区财富中心3号楼2楼

  • 衢州格堂装饰有限公司

  • 扫一扫关注官方微信

    获取一手特惠信息

快速回复 返回顶部 返回列表