• 手机版

    扫码体验手机版

  • 微信公众号

    扫码关注公众号

登录注册
游客您好
第三方账号登陆

[衢州] 郁金香郡11#128㎡美式——美式轻奢

[复制链接]
发表于 2018-10-27 10:34:37 | 显示全部楼层 |阅读模式
郁金香郡11#128㎡美式——美式轻奢

格堂装饰为您全程记录装修全过程!

小区名称
郁金香郡
房屋面积
128㎡
户型结构
套房
装修风格
美式
装修方式
半包
装修造价
查看请联系客服万元
设计师
王工
项目经理
刘工
装修公司
格堂装饰
完工实景
完工实景
水电全景
水电全景
VR全景
VR全景
设计说明
客厅以素雅的色彩为肌理,配合金属饰边的家具及摆件,简洁而利落地诠释了现代美式的奢雅魅力。
与此同时,米色的沙发带来古典特有的浪漫,茶几上的黄山花艺和蓝色软装,为空间增添灵动的自然气息,在这个看似不张扬的空间里,却有着丰富的节奏递进。
更多信息
本帖最后由 格堂方俊 于 2018-11-16 10:27 编辑


回复

使用道具 举报

 楼主| 发表于 2018-10-27 10:35:07 | 显示全部楼层
效果图
752007686503905039.jpg
回复 支持 反对

使用道具 举报

 楼主| 发表于 2018-10-27 10:37:40 | 显示全部楼层
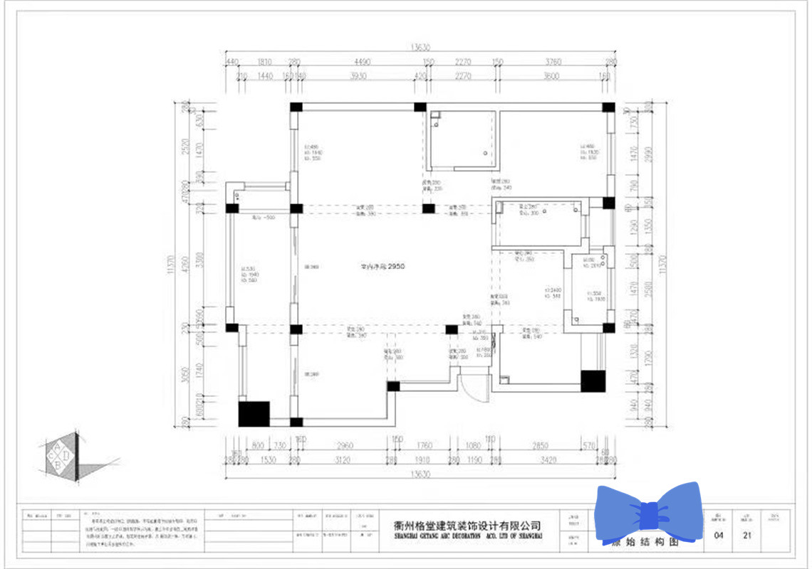
原始构图
351031026078682675_副本.jpg
回复 支持 反对

使用道具 举报

 楼主| 发表于 2018-10-27 10:37:58 | 显示全部楼层
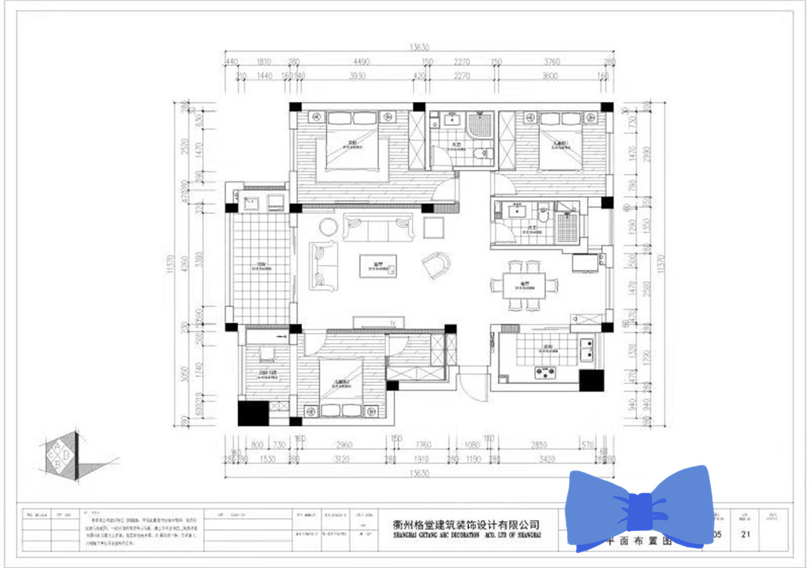
平面图
668458544216381400_副本.jpg

回复 支持 反对

使用道具 举报

 楼主| 发表于 2018-10-27 10:40:52 | 显示全部楼层
开工前大门要保护起来哦
IMG_20180929_105200.jpg
回复 支持 反对

使用道具 举报

 楼主| 发表于 2018-10-27 10:41:22 | 显示全部楼层
煤气表保护
IMG_20180929_104840.jpg
回复 支持 反对

使用道具 举报

 楼主| 发表于 2018-10-27 10:42:08 | 显示全部楼层
临时马桶安装到位。
IMG_20180929_110921.jpg
回复 支持 反对

使用道具 举报

 楼主| 发表于 2018-10-27 10:42:44 | 显示全部楼层
水管用格堂专用保护盖保护,防止砂石堵塞管道。
IMG_20180929_104846.jpg
IMG_20180929_105100.jpg
IMG_20180929_105103.jpg
IMG_20180929_105107.jpg
IMG_20180929_110929.jpg
IMG_20180929_110935.jpg
回复 支持 反对

使用道具 举报

 楼主| 发表于 2018-10-27 10:43:43 | 显示全部楼层
墙面四大工种的施工规范牌,同样展示到位,方便检查和验收。进度控制表,使工地进度按预定的目标进行,确保按期完工。施工铭牌上标示着设计师、项目经理、施工工人的姓名和电话,方便业主随时监督。
2345_image_file_copy_2.jpg
回复 支持 反对

使用道具 举报

 楼主| 发表于 2018-10-27 10:44:12 | 显示全部楼层
开工前送上美丽的鲜花
IMG_20180929_105435.jpg
回复 支持 反对

使用道具 举报

您需要登录后才可以回帖 登录 | 立即注册

本版积分规则

全国统一客服电话
0570-8028505

24x7小时免费咨询

  • 官方在线客服

    QQ客服:小西

    点击交谈

    QQ客服:良子

    点击交谈

    QQ客服:闵月

    点击交谈
  • 衢州市柯城区财富中心3号楼2楼

  • 衢州格堂装饰有限公司

  • 扫一扫关注官方微信

    获取一手特惠信息

快速回复 返回顶部 返回列表