• 手机版

    扫码体验手机版

  • 微信公众号

    扫码关注公众号

登录注册
游客您好
第三方账号登陆

衢州公馆14-6#102㎡新中式——自然悠闲,淡而有味的新中式

[复制链接]
发表于 2020-2-8 16:06:12 | 显示全部楼层 |阅读模式
衢州公馆14-6#102㎡新中式——自然悠闲,淡而有味的新中式

格堂装饰实景完工案例欣赏!

小区名称
衢州公馆
房屋面积
102㎡
户型结构
套房
装修风格
新中式
装修方式
全包
装修造价
查看请联系客服万元
设计师
王工
项目经理
施工
装修公司
格堂装饰
装修过程
装修日记
设计说明
本案是业主买给父母居住的房子,简单而有韵味,清爽不失档次是业主的需求。在前期经过充分的沟通后,我们运用了最简单的元素,山水画墙纸和不锈钢线条,勾勒出业主心中的品质家居空间。
更多信息
7E1A4118.jpg


回复

使用道具 举报

 楼主| 发表于 2020-2-8 16:08:08 | 显示全部楼层
本帖最后由 格堂方俊 于 2020-12-6 10:44 编辑


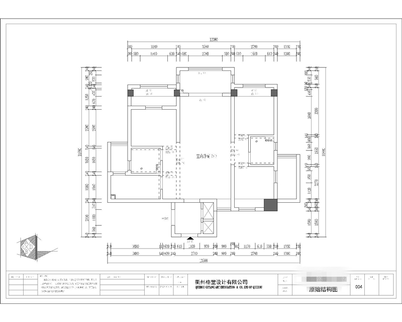
原始构图▼▼▼

9135ff7639be1ae6f73056a11f878434_164959cm6bkc7m06ij6xa7.jpg



回复 支持 反对

使用道具 举报

 楼主| 发表于 2020-2-8 16:08:20 | 显示全部楼层
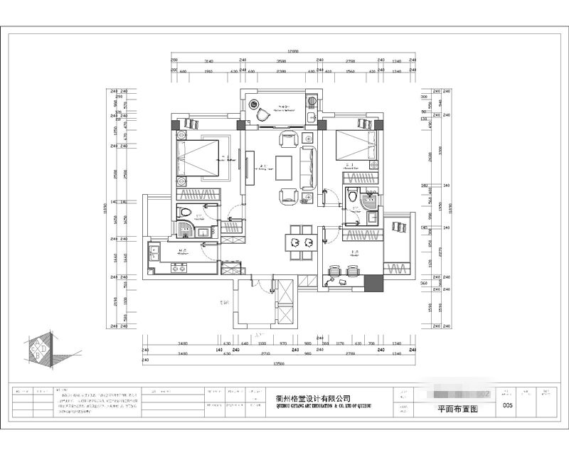
平面布置图▼▼▼

84ae2ef84936b7bcb860abc57d097e05_165114n8sxvv5xbx5uxvwg.jpg


回复 支持 反对

使用道具 举报

 楼主| 发表于 2020-2-8 16:08:52 | 显示全部楼层
客厅▼▼▼

7E1A4114.jpg

7E1A4119.jpg

7E1A4118.jpg

7E1A4120.jpg

7E1A4122.jpg

7E1A4121.jpg


回复 支持 反对

使用道具 举报

 楼主| 发表于 2020-2-8 16:09:11 | 显示全部楼层
餐厅▼▼▼

7E1A4125.jpg

7E1A4123.jpg

7E1A4124.jpg

7E1A4128.jpg

7E1A4127.jpg


回复 支持 反对

使用道具 举报

 楼主| 发表于 2020-2-8 16:09:34 | 显示全部楼层
主卧▼▼▼

7E1A4129.jpg

7E1A4130.jpg

7E1A4131.jpg


回复 支持 反对

使用道具 举报

 楼主| 发表于 2020-2-8 16:09:47 | 显示全部楼层
厨房▼▼▼

7E1A4133.jpg


回复 支持 反对

使用道具 举报

 楼主| 发表于 2020-2-8 16:10:14 | 显示全部楼层
次卧▼▼▼

7E1A4137.jpg

7E1A4136.jpg




回复 支持 反对

使用道具 举报

 楼主| 发表于 2020-2-8 16:10:42 | 显示全部楼层
主卫▼▼▼

7E1A4132.jpg


回复 支持 反对

使用道具 举报

 楼主| 发表于 2020-2-8 16:10:54 | 显示全部楼层
次卫▼▼▼

7E1A4134.jpg


回复 支持 反对

使用道具 举报

您需要登录后才可以回帖 登录 | 立即注册

本版积分规则

全国统一客服电话
0570-8028505

24x7小时免费咨询

  • 官方在线客服

    QQ客服:小西

    点击交谈

    QQ客服:良子

    点击交谈

    QQ客服:闵月

    点击交谈
  • 衢州市柯城区财富中心3号楼2楼

  • 衢州格堂装饰有限公司

  • 扫一扫关注官方微信

    获取一手特惠信息

快速回复 返回顶部 返回列表