• 手机版

    扫码体验手机版

  • 微信公众号

    扫码关注公众号

登录注册
游客您好
第三方账号登陆

[衢州] 衢州公馆14-6#102㎡新中式——自然悠闲,淡而有味的新中式

[复制链接]
发表于 2019-1-9 16:49:38 | 显示全部楼层 |阅读模式
自然悠闲,淡而有味的新中式

格堂装饰为您全程记录装修全过程!

小区名称
衢州公馆
房屋面积
102㎡
户型结构
套房
装修风格
新中式
装修方式
全包
装修造价
查看请联系客服万元
设计师
王辉
项目经理
施工
装修公司
格堂装饰
完工实景
完工实景
水电全景
水电全景
VR全景
VR全景
设计说明
本案是业主买给父母居住的房子,简单而有韵味,清爽不失档次是业主的需求。在前期经过充分的沟通后,我们运用了最简单的元素,山水画墙纸和不锈钢线条,勾勒出业主心中的品质家居空间。
更多信息
本帖最后由 格堂月红 于 2019-1-10 16:23 编辑

效果图
192260e0dbef3b79a584f8e54163df6.jpg
回复

使用道具 举报

 楼主| 发表于 2019-1-9 16:50:26 | 显示全部楼层
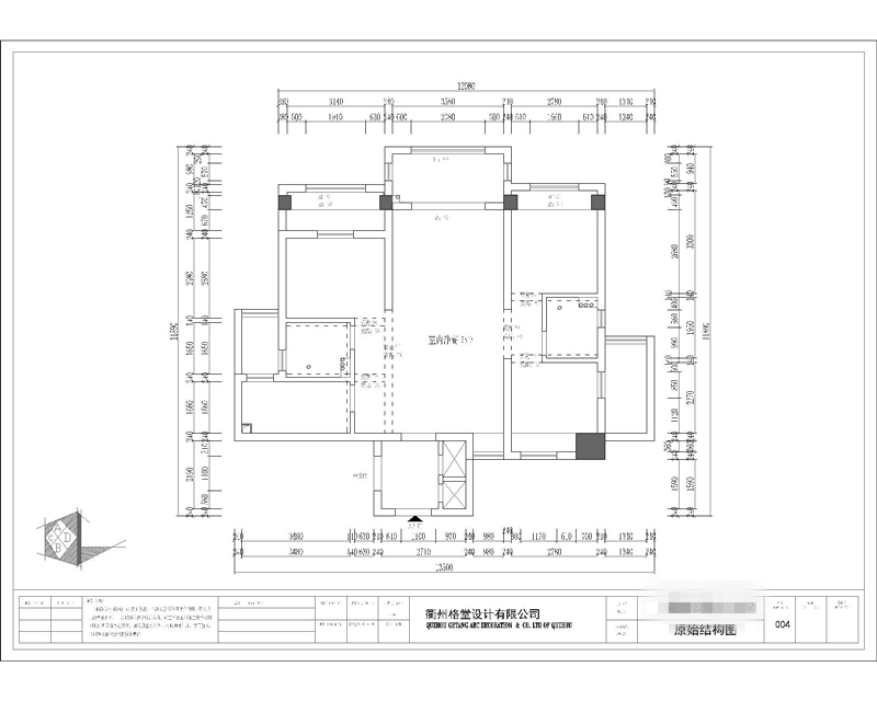
原始结构图
026ac0ecaa0228419e51e999e9164d4.jpg
回复 支持 反对

使用道具 举报

 楼主| 发表于 2019-1-9 16:51:39 | 显示全部楼层

平面布置图
d84f09832fe8c74a68c2f394ba794d9.jpg
回复 支持 反对

使用道具 举报

 楼主| 发表于 2019-1-9 16:58:18 | 显示全部楼层

开工前门口地面保护贴好了。
IMG20190105103302.jpg

IMG20190105103139.jpg
回复 支持 反对

使用道具 举报

 楼主| 发表于 2019-1-9 16:59:30 | 显示全部楼层

大门保护到位,防止后期磕碰到。
IMG20190105102941.jpg
回复 支持 反对

使用道具 举报

 楼主| 发表于 2019-1-9 17:01:08 | 显示全部楼层

临时马桶安装好了。
IMG20190105103027.jpg
回复 支持 反对

使用道具 举报

 楼主| 发表于 2019-1-9 17:03:27 | 显示全部楼层

煤气表也要保护好哦!
IMG20190105103046.jpg
回复 支持 反对

使用道具 举报

 楼主| 发表于 2019-1-10 10:41:33 | 显示全部楼层

今天是开工的好日子,开工横幅准备好,四大工种的施工规范牌,同样展示到位,方便检查和验收
IMG20190105102956.jpg
回复 支持 反对

使用道具 举报

 楼主| 发表于 2019-1-10 10:42:55 | 显示全部楼层

礼花准备到位,马上开工啦
IMG20190105103116.jpg
回复 支持 反对

使用道具 举报

 楼主| 发表于 2019-1-10 10:44:12 | 显示全部楼层
开工了,恭祝业主开工大吉!
mmexport1546658364874.jpg
回复 支持 反对

使用道具 举报

您需要登录后才可以回帖 登录 | 立即注册

本版积分规则

全国统一客服电话
0570-8028505

24x7小时免费咨询

  • 官方在线客服

    QQ客服:小西

    点击交谈

    QQ客服:良子

    点击交谈

    QQ客服:闵月

    点击交谈
  • 衢州市柯城区财富中心3号楼2楼

  • 衢州格堂装饰有限公司

  • 扫一扫关注官方微信

    获取一手特惠信息

快速回复 返回顶部 返回列表