• 手机版

    扫码体验手机版

  • 微信公众号

    扫码关注公众号

登录注册
游客您好
第三方账号登陆

[衢州] 航民A-004#㎡现代极简——溯源

[复制链接]
发表于 2020-1-7 15:12:08 | 显示全部楼层 |阅读模式
溯源

格堂装饰为您全程记录装修全过程!

小区名称
航民望江园
房屋面积
366㎡
户型结构
别墅
装修风格
现代
装修方式
半包
装修造价
查看请联系客服万元
设计师
苏工
项目经理
周工
装修公司
格堂装饰
完工实景
完工实景
水电全景
水电全景
VR全景
VR全景
设计说明
水泥,原始、露骨却富有诗意。设计初始,原户型东西向被划分的界限分明,过度的修饰掩盖了建筑原有的结构。于是我们开始思考,我们希望回归空间最本源的状态。厨房、岛台和客厅,最大限度释放光线,创造空间感。以光、以材质、以色彩创造空间连接,亦或是弱化消除隔间感。
更多信息
本帖最后由 格堂飞飞 于 2020-9-24 16:31 编辑

效果图
ddd3bd01dd84ad559648ce673773852.jpg
c5c4f279e0d85e5c4b988c8f92a2401.jpg

0038e829801cf85b8a804f95e253b82.jpg

f021678ff2c6f82364333c44fcbca76.jpg
回复

使用道具 举报

 楼主| 发表于 2020-1-7 15:13:37 | 显示全部楼层
原始结构图
f87a69c26489ac9f91604a79c4143e1_副本.jpg

152ee4602fab41843700bdbb910c52b_副本.jpg



回复 支持 反对

使用道具 举报

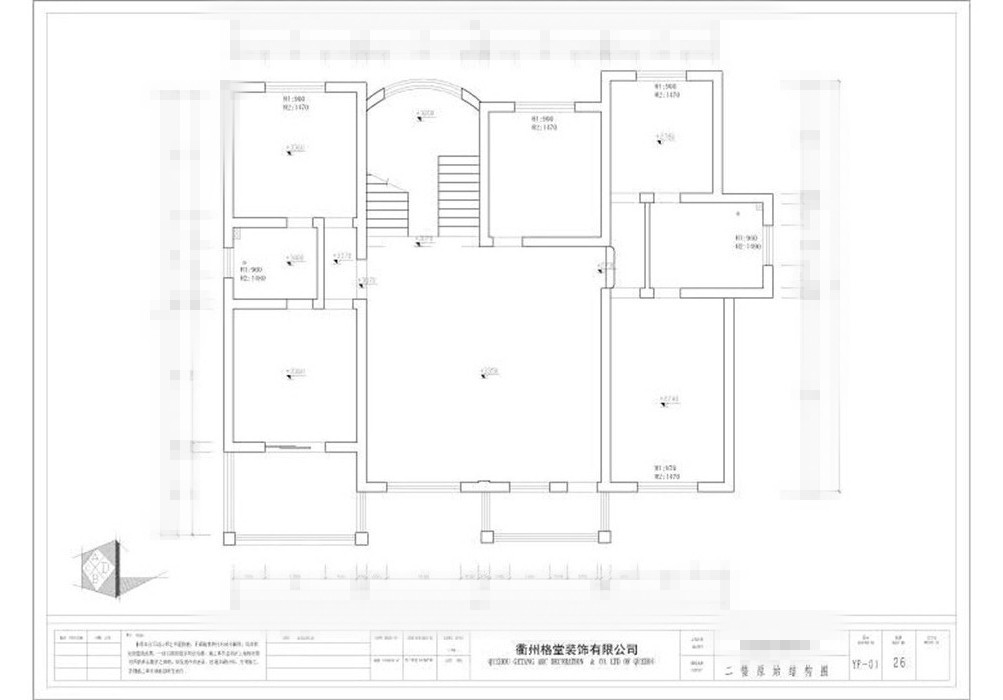
 楼主| 发表于 2020-1-7 15:15:41 | 显示全部楼层

平面布置图。
1defa201b1d19cc2f5cd04fb40f9553_副本.jpg

241875b52f6255a29a5c7eaac72248a_副本.jpg

回复 支持 反对

使用道具 举报

 楼主| 发表于 2020-1-7 15:17:02 | 显示全部楼层

临时马桶安装到位,要讲究卫生哦!
IMG_5771.JPG

回复 支持 反对

使用道具 举报

 楼主| 发表于 2020-1-7 15:18:00 | 显示全部楼层

水管用格堂专用保护盖保护,防止砂石堵塞管道。

IMG_5772.JPG
回复 支持 反对

使用道具 举报

 楼主| 发表于 2020-1-7 15:19:15 | 显示全部楼层

今天是个好日子,恭祝业主大人,开工大吉!
IMG_5752.JPG
回复 支持 反对

使用道具 举报

 楼主| 发表于 2020-1-7 15:20:27 | 显示全部楼层

设计师和项目经理正在,核对图纸准备墙面拆改放样。
IMG_5754.JPG
回复 支持 反对

使用道具 举报

 楼主| 发表于 2020-1-7 15:22:36 | 显示全部楼层
本帖最后由 格堂飞飞 于 2020-1-7 15:24 编辑

设计师和项目经理正在,一楼墙面拆改放样。
IMG_5760.JPG
墙面拆改放样标识到位,方便拆改,好记性不如烂笔头哦!
IMG_5761.JPG

IMG_5762.JPG

IMG_5766.JPG


回复 支持 反对

使用道具 举报

 楼主| 发表于 2020-1-7 15:23:47 | 显示全部楼层

设计师和项目经理正在。餐厅墙面拆改放样。
IMG_5767.JPG

IMG_5768.JPG

IMG_5769.JPG

IMG_5770.JPG
回复 支持 反对

使用道具 举报

 楼主| 发表于 2020-1-7 15:26:14 | 显示全部楼层

正在一楼房间墙面拆改放样。
IMG_5777.JPG
面拆改放样标识到位,方便施工。
IMG_5778.JPG

IMG_5776.JPG

回复 支持 反对

使用道具 举报

您需要登录后才可以回帖 登录 | 立即注册

本版积分规则

全国统一客服电话
0570-8028505

24x7小时免费咨询

  • 官方在线客服

    QQ客服:小西

    点击交谈

    QQ客服:良子

    点击交谈

    QQ客服:闵月

    点击交谈
  • 衢州市柯城区财富中心3号楼2楼

  • 衢州格堂装饰有限公司

  • 扫一扫关注官方微信

    获取一手特惠信息

快速回复 返回顶部 返回列表