• 手机版

    扫码体验手机版

  • 微信公众号

    扫码关注公众号

登录注册
游客您好
第三方账号登陆

[衢州] 玫瑰园3-3-50#218㎡现代—重构

[复制链接]
发表于 2020-1-3 16:13:07 | 显示全部楼层 |阅读模式
重构

格堂装饰为您全程记录装修全过程!

小区名称
玫瑰园
房屋面积
218㎡
户型结构
复式
装修风格
现代
装修方式
半包
装修造价
查看请联系客服万元
设计师
毛工
项目经理
施工
装修公司
格堂装饰
完工实景
完工实景
水电全景
水电全景
VR全景
VR全景
设计说明
年少的时候我们害怕孤独。
呼朋唤友,寻觅伴侣,
建立家庭,有了孩子。
但是年岁渐长,成年人的疲惫,
往往来自不断叠加的身份。

从外面纷繁的世界回归家庭,
在这个家人共享的空间中,
我们依旧努力去想象:是否有一个场所,
可以完全卸下“妻子”“妈妈”...的标签,
还原内心的宁静与自我。
更多信息

回复

使用道具 举报

 楼主| 发表于 2020-1-3 16:14:58 | 显示全部楼层
效果图

微信图片_20200103130815.jpg

微信图片_20200103130818.jpg
回复 支持 反对

使用道具 举报

 楼主| 发表于 2020-1-3 16:15:36 | 显示全部楼层
原始结构图

微信图片_20200103130807.jpg

微信图片_20200103130811.jpg


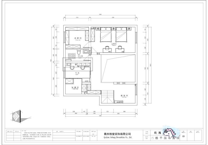
平面布置图

微信图片_20200103130738.jpg

微信图片_20200103130803.jpg
回复 支持 反对

使用道具 举报

 楼主| 发表于 2020-1-4 14:13:00 | 显示全部楼层
开工之前做好准备工作

IMG_20191225_102219.jpg

IMG_20191225_095640.jpg


IMG_20191225_102936.jpg

开工大吉

IMG_20191225_104555.jpg
回复 支持 反对

使用道具 举报

 楼主| 发表于 2020-1-4 14:13:31 | 显示全部楼层
拆改阶段

IMG_20191230_164125.jpg

IMG_20191230_164127.jpg

IMG_20191230_164203.jpg

IMG_20191230_164215.jpg

IMG_20191230_164222.jpg
回复 支持 反对

使用道具 举报

 楼主| 发表于 2020-1-4 14:14:10 | 显示全部楼层
楼板拆改

IMG_20191230_164233.jpg

IMG_20191230_164235.jpg

IMG_20191230_164238.jpg

IMG_20191230_164242.jpg

IMG_20191230_164313.jpg
回复 支持 反对

使用道具 举报

 楼主| 发表于 2020-1-4 14:14:47 | 显示全部楼层
铲灰是为了降低后期油漆施工出现空鼓现象

IMG_20191230_164316.jpg

IMG_20191230_164329.jpg

IMG_20191230_164317.jpg

IMG_20191230_164334.jpg

IMG_20191230_164338.jpg
回复 支持 反对

使用道具 举报

 楼主| 发表于 2020-1-4 14:15:23 | 显示全部楼层



IMG_20191230_164340.jpg

煤气表保护到位

IMG_20191230_164351.jpg

IMG_20191230_164343.jpg

IMG_20191230_164400.jpg


IMG_20191230_164407.jpg
回复 支持 反对

使用道具 举报

 楼主| 发表于 2020-1-4 14:16:00 | 显示全部楼层

根据拆改放样进行拆改

IMG_20191230_164414.jpg

IMG_20191230_164456.jpg

IMG_20191230_164500.jpg

IMG_20191230_164514.jpg


IMG_20191230_164516.jpg
回复 支持 反对

使用道具 举报

 楼主| 发表于 2020-1-4 14:17:13 | 显示全部楼层
拆改垃圾装袋

IMG_20191230_164518.jpg

IMG_20191230_164529.jpg

IMG_20191230_164536.jpg

IMG_20191230_164545.jpg

IMG_20191230_164547.jpg
回复 支持 反对

使用道具 举报

您需要登录后才可以回帖 登录 | 立即注册

本版积分规则

全国统一客服电话
0570-8028505

24x7小时免费咨询

  • 官方在线客服

    QQ客服:小西

    点击交谈

    QQ客服:良子

    点击交谈

    QQ客服:闵月

    点击交谈
  • 衢州市柯城区财富中心3号楼2楼

  • 衢州格堂装饰有限公司

  • 扫一扫关注官方微信

    获取一手特惠信息

快速回复 返回顶部 返回列表