• 手机版

    扫码体验手机版

  • 微信公众号

    扫码关注公众号

登录注册
游客您好
第三方账号登陆

中梁首府31-4#97㎡ 日式——日式和风

[复制链接]
发表于 2019-11-21 10:13:23 | 显示全部楼层 |阅读模式
中梁首府31-4#97㎡ 日式——日式和风

格堂装饰实景完工案例欣赏!

小区名称
中梁首府
房屋面积
97㎡
户型结构
套房
装修风格
日式
装修方式
半包
装修造价
查看请联系客服万元
设计师
何工
项目经理
姜工
装修公司
格堂装饰
装修过程
装修日记
设计说明
日式室内设计中色彩多偏重于原木色,以及竹、藤、麻和其他天然材料颜色,形成朴素的自然风格。传统的日式家居将自然界的材质大量运用于居室的装修、装饰中,以节制、禅意为境界。
更多信息
7E1A1908.jpg


回复

使用道具 举报

 楼主| 发表于 2019-11-21 10:14:34 | 显示全部楼层
本帖最后由 格堂方俊 于 2020-12-6 10:49 编辑


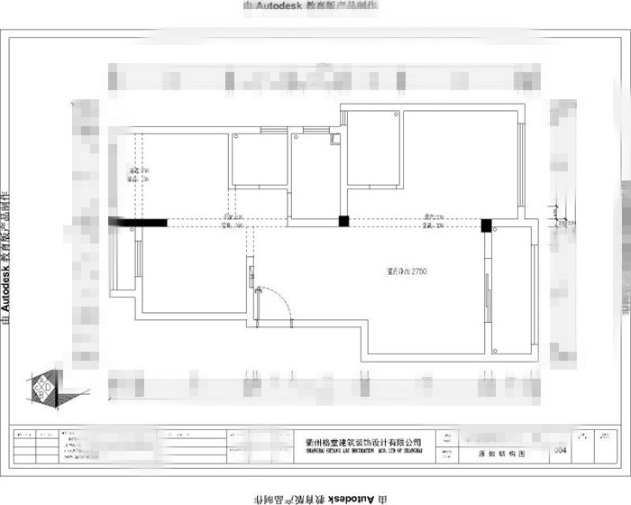
原始构图▼▼▼

174473c6c894b234a822efb5799bc2c2_092052huf2ads5kffsdfdk.jpg


回复 支持 反对

使用道具 举报

 楼主| 发表于 2019-11-21 10:14:48 | 显示全部楼层
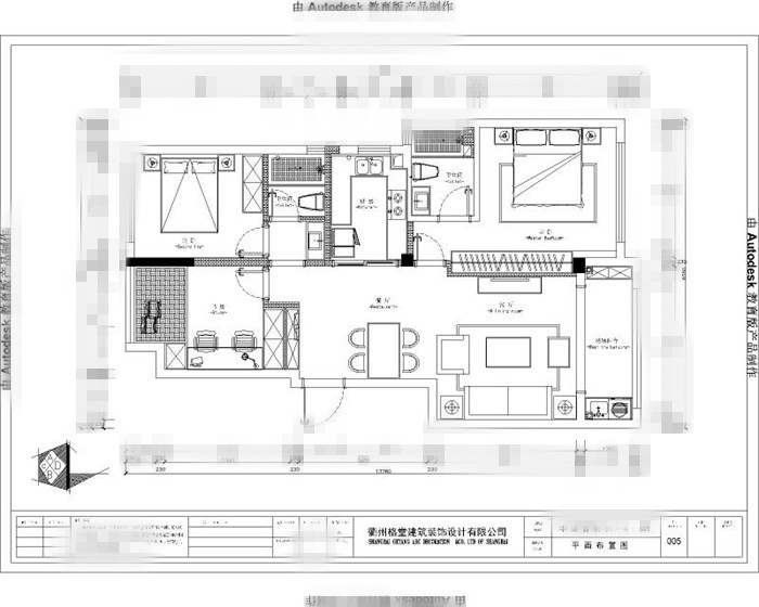
平面布置图▼▼▼

e6a082770b2b541fb56b5de37a1439f3_092136zfib19wruriuuz8u.jpg


回复 支持 反对

使用道具 举报

 楼主| 发表于 2019-11-21 10:15:08 | 显示全部楼层
客厅▼▼▼

7E1A1908.jpg

7E1A1909.jpg

7E1A1910.jpg

7E1A1911.jpg

7E1A1912.jpg

7E1A1913.jpg


回复 支持 反对

使用道具 举报

 楼主| 发表于 2019-11-21 10:15:35 | 显示全部楼层
餐厅▼▼▼

7E1A1916.jpg

7E1A1917.jpg

7E1A1918.jpg

7E1A1919.jpg

7E1A1920.jpg

7E1A1924.jpg


回复 支持 反对

使用道具 举报

 楼主| 发表于 2019-11-21 10:16:52 | 显示全部楼层
主卧▼▼▼

7E1A1926.jpg

7E1A1927.jpg

7E1A1928.jpg

7E1A1929.jpg

7E1A1931.jpg

7E1A1932.jpg

7E1A1933.jpg


回复 支持 反对

使用道具 举报

 楼主| 发表于 2019-11-21 10:17:19 | 显示全部楼层
厨房▼▼▼

7E1A1935.jpg


回复 支持 反对

使用道具 举报

 楼主| 发表于 2019-11-21 10:17:39 | 显示全部楼层
次卧▼▼▼

7E1A1938.jpg

7E1A1939.jpg


回复 支持 反对

使用道具 举报

 楼主| 发表于 2019-11-21 10:18:02 | 显示全部楼层
书房▼▼▼

7E1A1943.jpg

7E1A1944.jpg

7E1A1945.jpg

7E1A1953.jpg

7E1A1954.jpg


回复 支持 反对

使用道具 举报

 楼主| 发表于 2019-11-21 10:18:23 | 显示全部楼层
主卫▼▼▼

7E1A1934.jpg


回复 支持 反对

使用道具 举报

您需要登录后才可以回帖 登录 | 立即注册

本版积分规则

全国统一客服电话
0570-8028505

24x7小时免费咨询

  • 官方在线客服

    QQ客服:小西

    点击交谈

    QQ客服:良子

    点击交谈

    QQ客服:闵月

    点击交谈
  • 衢州市柯城区财富中心3号楼2楼

  • 衢州格堂装饰有限公司

  • 扫一扫关注官方微信

    获取一手特惠信息

快速回复 返回顶部 返回列表