• 手机版

    扫码体验手机版

  • 微信公众号

    扫码关注公众号

登录注册
游客您好
第三方账号登陆

[衢州] 中梁首府31-4#97㎡ 日式——日式和风

[复制链接]
发表于 2019-4-21 17:38:30 | 显示全部楼层 |阅读模式
中梁首府31-4#97㎡ 日式——日式和风

格堂装饰为您全程记录装修全过程!

小区名称
中梁首府
房屋面积
97㎡
户型结构
套房
装修风格
日式
装修方式
半包
装修造价
查看请联系客服万元
设计师
余工
项目经理
姜工
装修公司
格堂装饰
完工实景
完工实景
水电全景
水电全景
VR全景
VR全景
设计说明
日式室内设计中色彩多偏重于原木色,以及竹、藤、麻和其他天然材料颜色,形成朴素的自然风格。传统的日式家居将自然界的材质大量运用于居室的装修、装饰中,以节制、禅意为境界。
更多信息
效果图
72b3b6ec7c0bbaecf5495958cad9eae.jpg
回复

使用道具 举报

 楼主| 发表于 2019-4-23 09:21:18 | 显示全部楼层

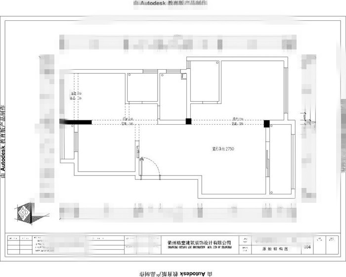
原始结构图
7cf22346078ed54ce2b9b88a915afc8_副本.jpg
回复 支持 反对

使用道具 举报

 楼主| 发表于 2019-4-23 09:21:59 | 显示全部楼层

平面布置图
1b8e0616fac6c54d19fa5d32d4bec35_副本.jpg
回复 支持 反对

使用道具 举报

 楼主| 发表于 2019-4-23 09:28:49 | 显示全部楼层

开工前大门先要保护起来哦!
IMG_1325.JPG
大门保护到位,防止磕碰。
IMG_1326.JPG
回复 支持 反对

使用道具 举报

 楼主| 发表于 2019-4-23 09:31:43 | 显示全部楼层

公司横幅挂好了,公司的宗旨就是让客户体验最好的装修服务!
IMG_1327.JPG
回复 支持 反对

使用道具 举报

 楼主| 发表于 2019-4-23 09:32:46 | 显示全部楼层

临时马桶安装到位,要讲究卫生哦!
IMG_1329.JPG
回复 支持 反对

使用道具 举报

 楼主| 发表于 2019-4-23 09:34:35 | 显示全部楼层

水管用格堂专用保护盖保护,防止砂石堵塞管道.
IMG_1331.JPG

IMG_1330.JPG

回复 支持 反对

使用道具 举报

 楼主| 发表于 2019-4-23 09:36:31 | 显示全部楼层

准备工作做好,礼花也到位就等开工吉时啦!
IMG_1328.JPG
回复 支持 反对

使用道具 举报

 楼主| 发表于 2019-4-23 09:37:53 | 显示全部楼层

吉时已到,恭祝业主大人开工大吉!
IMG_1376.JPG
回复 支持 反对

使用道具 举报

 楼主| 发表于 2019-4-23 09:39:23 | 显示全部楼层
本帖最后由 格堂飞飞 于 2019-4-23 10:41 编辑

开工第一锤由,业主大人亲自来哦!
IMG_1362_副本.jpg
装修开工第一锤应该敲在要拆除的墙体的墙角(即拐角),象征一锤定音的意思,也是新房动土的一种表示方式。
IMG_1363.JPG

回复 支持 反对

使用道具 举报

您需要登录后才可以回帖 登录 | 立即注册

本版积分规则

全国统一客服电话
0570-8028505

24x7小时免费咨询

  • 官方在线客服

    QQ客服:小西

    点击交谈

    QQ客服:良子

    点击交谈

    QQ客服:闵月

    点击交谈
  • 衢州市柯城区财富中心3号楼2楼

  • 衢州格堂装饰有限公司

  • 扫一扫关注官方微信

    获取一手特惠信息

快速回复 返回顶部 返回列表