• 手机版

    扫码体验手机版

  • 微信公众号

    扫码关注公众号

登录注册
游客您好
第三方账号登陆

月亮湾10#178㎡美式——一如归家

[复制链接]
发表于 2019-11-21 10:04:39 | 显示全部楼层 |阅读模式
月亮湾10#178㎡美式——一如归家

格堂装饰实景完工案例欣赏!

小区名称
月亮湾
房屋面积
178㎡
户型结构
套房
装修风格
美式
装修方式
半包
装修造价
查看请联系客服万元
设计师
周工
项目经理
周工
装修公司
格堂装饰
装修过程
装修日记
设计说明
你说过往的一切
不过是风
是星辰大海
虽美却不能触摸
太遥远了
而我说过往
是温存的想念
是夕阳洒下浓浓的焦糖色
它能静静温暖着你
一如归家
更多信息
7E1A1655.jpg


回复

使用道具 举报

 楼主| 发表于 2019-11-21 10:05:39 | 显示全部楼层
本帖最后由 格堂方俊 于 2020-12-6 10:48 编辑


原始构图▼▼▼

0d4102fe79f64e91bf35e8e0622671a8_103843sekivfjrlfji6erg.jpg


回复 支持 反对

使用道具 举报

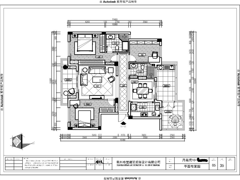
 楼主| 发表于 2019-11-21 10:05:51 | 显示全部楼层
平面布置图▼▼▼

59497c018ff453a928b9e527403512d7_103907y1yfuxgs00q1axa1.jpg


回复 支持 反对

使用道具 举报

 楼主| 发表于 2019-11-21 10:06:11 | 显示全部楼层
客厅▼▼▼

7E1A1655.jpg

7E1A1657.jpg

7E1A1658.jpg

7E1A1659.jpg

7E1A1661.jpg


回复 支持 反对

使用道具 举报

 楼主| 发表于 2019-11-21 10:06:36 | 显示全部楼层
餐厅▼▼▼

7E1A1662.jpg

7E1A1664.jpg

7E1A1665.jpg

7E1A1667.jpg

7E1A1671.jpg


回复 支持 反对

使用道具 举报

 楼主| 发表于 2019-11-21 10:06:56 | 显示全部楼层
书房▼▼▼

7E1A1673.jpg

7E1A1674.jpg


回复 支持 反对

使用道具 举报

 楼主| 发表于 2019-11-21 10:07:18 | 显示全部楼层
主卧▼▼▼

7E1A1675.jpg

7E1A1676.jpg

7E1A1677.jpg

7E1A1678.jpg


回复 支持 反对

使用道具 举报

 楼主| 发表于 2019-11-21 10:07:33 | 显示全部楼层
主卫▼▼▼

7E1A1680.jpg


回复 支持 反对

使用道具 举报

 楼主| 发表于 2019-11-21 10:07:48 | 显示全部楼层
次卧▼▼▼

7E1A1681.jpg

7E1A1682.jpg


回复 支持 反对

使用道具 举报

 楼主| 发表于 2019-11-21 10:08:14 | 显示全部楼层
玄关▼▼▼

7E1A1669.jpg

7E1A1670.jpg


回复 支持 反对

使用道具 举报

您需要登录后才可以回帖 登录 | 立即注册

本版积分规则

全国统一客服电话
0570-8028505

24x7小时免费咨询

  • 官方在线客服

    QQ客服:小西

    点击交谈

    QQ客服:良子

    点击交谈

    QQ客服:闵月

    点击交谈
  • 衢州市柯城区财富中心3号楼2楼

  • 衢州格堂装饰有限公司

  • 扫一扫关注官方微信

    获取一手特惠信息

快速回复 返回顶部 返回列表