• 手机版

    扫码体验手机版

  • 微信公众号

    扫码关注公众号

登录注册
游客您好
第三方账号登陆

[衢州] 月亮湾10#178㎡美式——一如归家

[复制链接]
发表于 2018-3-29 16:47:13 | 显示全部楼层 |阅读模式
月亮湾10#178㎡美式——一如归家

格堂装饰为您全程记录装修全过程!

小区名称
月亮湾
房屋面积
178㎡
户型结构
三室两厅一厨两卫
装修风格
美式
装修方式
半包
装修造价
查看请联系客服万元
设计师
周工
项目经理
周工
装修公司
格堂装饰
完工实景
完工实景
水电全景
水电全景
VR全景
VR全景
设计说明
你说过往的一切
不过是风
是星辰大海
虽美却不能触摸
太遥远了
而我说过往
是温存的想念
是夕阳洒下浓浓的焦糖色
它能静静温暖着你
一如归家
更多信息
效果图

效果图

效果图

原始结构图

原始结构图

原始结构图

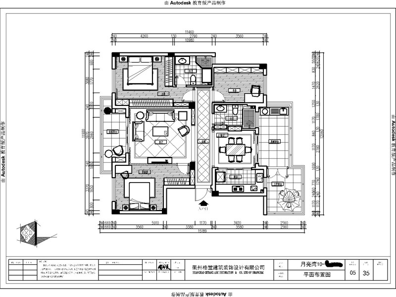
平面布置图

平面布置图

平面布置图



                                                                           
                  

                                                                           




回复

使用道具 举报

 楼主| 发表于 2018-3-30 10:42:47 | 显示全部楼层

回复

使用道具 举报

 楼主| 发表于 2018-3-30 10:43:03 | 显示全部楼层


回复

使用道具 举报

 楼主| 发表于 2018-3-30 10:44:28 | 显示全部楼层
本帖最后由 格堂丽丽 于 2018-4-28 09:26 编辑

开工仪式很短暂,家居装修却很长……与漫漫人生历程相比,这些短短一瞬,却包含了满满的心意。我们竭力用自己的专业技能,让每位业主拥有最接近梦想的家!恭祝开工大吉!
11.png
回复 支持 反对

使用道具 举报

 楼主| 发表于 2018-3-30 10:45:20 | 显示全部楼层

门套保护防止后期刮痕

本帖最后由 格堂丽丽 于 2018-4-10 10:38 编辑

QQ图片20180329101838.jpg
回复 支持 反对

使用道具 举报

 楼主| 发表于 2018-3-30 10:46:05 | 显示全部楼层
业主敲响第一槌咯
289A045085E83E72BD6329A904C26D9F.png
回复 支持 反对

使用道具 举报

 楼主| 发表于 2018-3-30 10:46:55 | 显示全部楼层
煤气表也要保护的好好的
6679B8F4388F2C6DDBCD6D06B2E975A7.png
回复 支持 反对

使用道具 举报

 楼主| 发表于 2018-4-4 16:27:05 | 显示全部楼层
本帖最后由 格堂丽丽 于 2018-4-28 09:31 编辑

全屋铲灰作用是可以保证墙面后期的处理出来的效果更好,因为开发商刮腻子前,基层没有处理到位,基本上可以说不处理,时间长了从水泥面粉化脱了,造成腻子大块脱落起鼓,影响美观。
微信图片_20180404153414.jpg
回复 支持 反对

使用道具 举报

 楼主| 发表于 2018-4-4 16:28:28 | 显示全部楼层
墙顶面铲灰中
微信图片_20180404153436.jpg
回复 支持 反对

使用道具 举报

 楼主| 发表于 2018-4-4 16:28:50 | 显示全部楼层
本帖最后由 格堂丽丽 于 2018-4-28 09:32 编辑

厨房敲墙中
微信图片_20180404153440.jpg
回复 支持 反对

使用道具 举报

您需要登录后才可以回帖 登录 | 立即注册

本版积分规则

全国统一客服电话
0570-8028505

24x7小时免费咨询

  • 官方在线客服

    QQ客服:小西

    点击交谈

    QQ客服:良子

    点击交谈

    QQ客服:闵月

    点击交谈
  • 衢州市柯城区财富中心3号楼2楼

  • 衢州格堂装饰有限公司

  • 扫一扫关注官方微信

    获取一手特惠信息

快速回复 返回顶部 返回列表