• 手机版

    扫码体验手机版

  • 微信公众号

    扫码关注公众号

登录注册
游客您好
第三方账号登陆

衢州公馆14-25#105㎡中式——东方韵味的经典与传承

[复制链接]
发表于 2019-11-21 09:03:06 | 显示全部楼层 |阅读模式
衢州公馆14-25#105㎡中式——东方韵味的经典与传承

格堂装饰实景完工案例欣赏!

小区名称
衢州公馆
房屋面积
105㎡
户型结构
套房
装修风格
中式
装修方式
半包
装修造价
查看请联系客服万元
设计师
周工
项目经理
刘工
装修公司
格堂装饰
装修过程
装修日记
设计说明
“人,诗意地栖居在大地上。”自古以来,文人雅士寄情山水、吟诗作画,即是诗意栖居的体现,他们富于人文雅趣的生活方式,依然是许多现代人心中的追求和向往。本案软装定位于中式风格,整体硬装较为简单。
更多信息
7E1A1428.jpg


回复

使用道具 举报

 楼主| 发表于 2019-11-21 09:03:35 | 显示全部楼层
本帖最后由 格堂方俊 于 2020-12-6 10:56 编辑


原始构图▼▼▼

5ab7e5adc03b9aed045a8dc7b136b843_141447pkpmvtr9uv5v7rfp.jpg


回复 支持 反对

使用道具 举报

 楼主| 发表于 2019-11-21 09:03:47 | 显示全部楼层
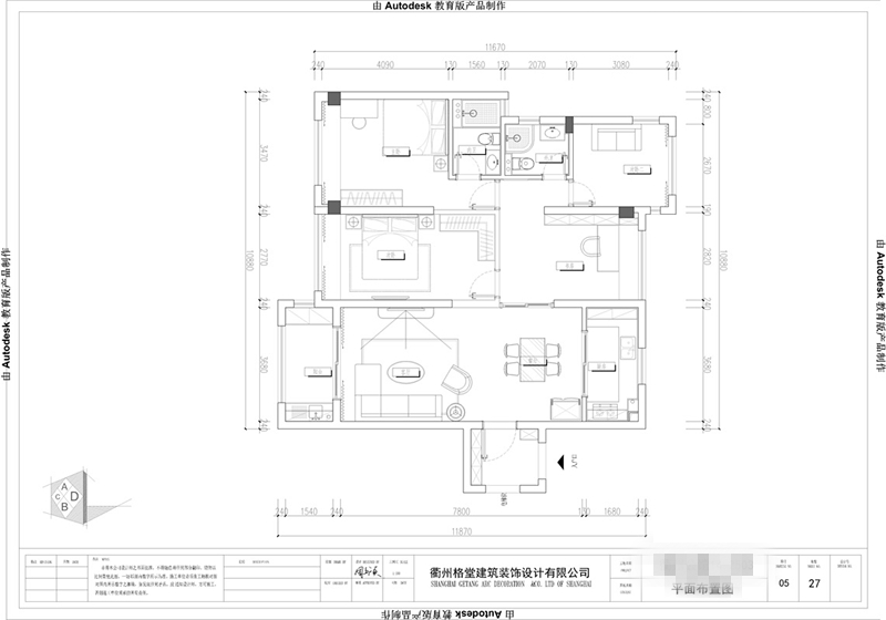
平面布置图▼▼▼

a77d8b2ea59fd5799182a1be40258264_141529mnqrfpv0mqvax7na.jpg


回复 支持 反对

使用道具 举报

 楼主| 发表于 2019-11-21 09:04:08 | 显示全部楼层
客厅▼▼▼

7E1A1427.jpg

7E1A1428.jpg

7E1A1429.jpg

7E1A1430.jpg

7E1A1431.jpg

7E1A1433.jpg


回复 支持 反对

使用道具 举报

 楼主| 发表于 2019-11-21 09:04:31 | 显示全部楼层
书房▼▼▼

7E1A1434.jpg

7E1A1435.jpg

7E1A1436.jpg


回复 支持 反对

使用道具 举报

 楼主| 发表于 2019-11-21 09:05:07 | 显示全部楼层
主卧▼▼▼

7E1A1437.jpg


回复 支持 反对

使用道具 举报

 楼主| 发表于 2019-11-21 09:06:20 | 显示全部楼层
钢琴房▼▼▼

7E1A1438.jpg

7E1A1439.jpg

回复 支持 反对

使用道具 举报

 楼主| 发表于 2019-11-21 09:06:35 | 显示全部楼层
厨房▼▼▼

7E1A1468.jpg


回复 支持 反对

使用道具 举报

 楼主| 发表于 2019-11-21 09:07:06 | 显示全部楼层
小景▼▼▼

7E1A1450.jpg

7E1A1454.jpg

7E1A1456.jpg

7E1A1459.jpg

7E1A1463.jpg

7E1A1473.jpg

7E1A1474.jpg


回复 支持 反对

使用道具 举报

您需要登录后才可以回帖 登录 | 立即注册

本版积分规则

全国统一客服电话
0570-8028505

24x7小时免费咨询

  • 官方在线客服

    QQ客服:小西

    点击交谈

    QQ客服:良子

    点击交谈

    QQ客服:闵月

    点击交谈
  • 衢州市柯城区财富中心3号楼2楼

  • 衢州格堂装饰有限公司

  • 扫一扫关注官方微信

    获取一手特惠信息

快速回复 返回顶部 返回列表