• 手机版

    扫码体验手机版

  • 微信公众号

    扫码关注公众号

登录注册
游客您好
第三方账号登陆

[衢州] 衢州公馆14-25#105㎡中式——东方韵味的经典与传承

[复制链接]
发表于 2019-2-24 14:13:58 | 显示全部楼层 |阅读模式
东方韵味的经典与传承

格堂装饰为您全程记录装修全过程!

小区名称
衢州公馆
房屋面积
105㎡
户型结构
套房
装修风格
中式
装修方式
半包
装修造价
查看请联系客服万元
设计师
周工
项目经理
刘工
装修公司
格堂装饰
完工实景
完工实景
水电全景
水电全景
VR全景
VR全景
设计说明
“人,诗意地栖居在大地上。”自古以来,文人雅士寄情山水、吟诗作画,即是诗意栖居的体现,他们富于人文雅趣的生活方式,依然是许多现代人心中的追求和向往。本案软装定位于中式风格,整体硬装较为简单。
更多信息

效果图
mmexport1550986290246.jpg
回复

使用道具 举报

 楼主| 发表于 2019-2-24 14:14:57 | 显示全部楼层

原始结构图
mmexport1550986282573.jpg
回复 支持 反对

使用道具 举报

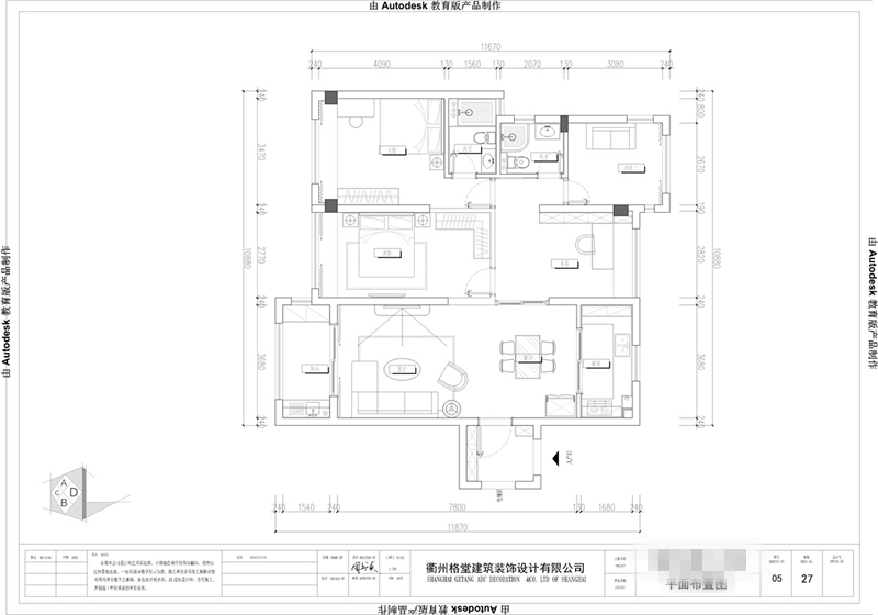
 楼主| 发表于 2019-2-24 14:15:39 | 显示全部楼层

平面布置图
mmexport1550986274949.jpg
回复 支持 反对

使用道具 举报

 楼主| 发表于 2019-2-24 14:18:21 | 显示全部楼层

电梯保护、地面保护,门槛保护,防止后期磕碰到。

IMG20190224093704.jpg

IMG20190224093725.jpg

IMG20190224093736.jpg

IMG20190224093755.jpg
回复 支持 反对

使用道具 举报

 楼主| 发表于 2019-2-24 14:19:23 | 显示全部楼层

开工前大门保护好,防止后期磕碰破损。
IMG20190224094155.jpg

IMG20190224094237.jpg

IMG20190224094802.jpg


回复 支持 反对

使用道具 举报

 楼主| 发表于 2019-2-24 14:20:09 | 显示全部楼层

临时马桶到位。
IMG20190224094107.jpg

IMG20190224094113.jpg
回复 支持 反对

使用道具 举报

 楼主| 发表于 2019-2-24 14:20:50 | 显示全部楼层

煤气表保护好。
IMG20190224094126.jpg

IMG20190224094134.jpg
回复 支持 反对

使用道具 举报

 楼主| 发表于 2019-2-24 14:22:01 | 显示全部楼层
本帖最后由 格堂月红 于 2019-2-24 14:23 编辑

水管用格堂专用保护盖保护,防止砂石堵塞管道
IMG20190224095144.jpg

IMG20190224095159.jpg

IMG20190224095211.jpg

IMG20190224095233.jpg




回复 支持 反对

使用道具 举报

 楼主| 发表于 2019-2-24 14:24:52 | 显示全部楼层

师傅正在准备开工桌。
IMG20190224094628.jpg

IMG20190224094708.jpg

IMG20190224094719.jpg
铺上红彤彤的桌布。
IMG20190224094722.jpg
回复 支持 反对

使用道具 举报

 楼主| 发表于 2019-2-24 14:25:58 | 显示全部楼层

四大工种的施工规范牌,同样展示到位,方便检查和验收。进度控制表,使工地进度按预定的目标进行,确保按期完工。施工铭牌上标示着设计师、项目经理、施工工人的姓名和电话,方便业主随时监督。

IMG20190224094922.jpg

IMG20190224095014.jpg

IMG20190224095124.jpg
回复 支持 反对

使用道具 举报

您需要登录后才可以回帖 登录 | 立即注册

本版积分规则

全国统一客服电话
0570-8028505

24x7小时免费咨询

  • 官方在线客服

    QQ客服:小西

    点击交谈

    QQ客服:良子

    点击交谈

    QQ客服:闵月

    点击交谈
  • 衢州市柯城区财富中心3号楼2楼

  • 衢州格堂装饰有限公司

  • 扫一扫关注官方微信

    获取一手特惠信息

快速回复 返回顶部 返回列表