• 手机版

    扫码体验手机版

  • 微信公众号

    扫码关注公众号

登录注册
游客您好
第三方账号登陆

【格堂&月亮湾雅1#】中国传统风格文化与现代时尚元素的融合

[复制链接]
发表于 2019-10-23 16:07:39 | 显示全部楼层 |阅读模式
【格堂&月亮湾雅1#】中国传统风格文化与现代时尚元素的融合

格堂装饰实景完工案例欣赏!

小区名称
月亮湾雅
房屋面积
125㎡
户型结构
套房
装修风格
中式
装修方式
半包
装修造价
查看请联系客服万元
设计师
何工
项目经理
余工
装修公司
格堂装饰
装修过程
装修日记
设计说明
.
更多信息
未命名-0349.jpg
回复

使用道具 举报

 楼主| 发表于 2019-10-23 16:08:13 | 显示全部楼层
本帖最后由 格堂方俊 于 2020-12-6 11:01 编辑


原始结构图▼▼▼

151612k3fv6vy23f365q5f.jpg


回复 支持 反对

使用道具 举报

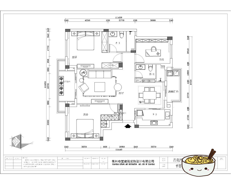
 楼主| 发表于 2019-10-23 16:08:28 | 显示全部楼层
平面图▼▼▼

151533cd3jddtlid2q9659.jpg


回复 支持 反对

使用道具 举报

 楼主| 发表于 2019-10-23 16:08:52 | 显示全部楼层
客厅▼▼▼

未命名-0349.jpg

未命名-0350.jpg

未命名-0351.jpg

未命名-0352.jpg

未命名-0353.jpg

未命名-0354.jpg

未命名-0358.jpg

未命名-0359.jpg


回复 支持 反对

使用道具 举报

 楼主| 发表于 2019-10-23 16:09:18 | 显示全部楼层
餐厅▼▼▼

未命名-0361.jpg

未命名-0364.jpg

未命名-0365.jpg

未命名-0367.jpg

未命名-0368.jpg


回复 支持 反对

使用道具 举报

 楼主| 发表于 2019-10-23 16:09:36 | 显示全部楼层
玄关▼▼▼

未命名-0371.jpg


回复 支持 反对

使用道具 举报

 楼主| 发表于 2019-10-23 16:09:57 | 显示全部楼层
主卧▼▼▼

未命名-0372.jpg

未命名-0373.jpg

未命名-0374.jpg

未命名-0375.jpg

未命名-0376.jpg


回复 支持 反对

使用道具 举报

 楼主| 发表于 2019-10-23 16:10:16 | 显示全部楼层
次卧▼▼▼

未命名-0377.jpg

未命名-0378.jpg

未命名-0380.jpg

未命名-0381.jpg


回复 支持 反对

使用道具 举报

 楼主| 发表于 2019-10-23 16:10:38 | 显示全部楼层
主卫▼▼▼

未命名-0384.jpg

未命名-0385.jpg


回复 支持 反对

使用道具 举报

 楼主| 发表于 2019-10-23 16:11:01 | 显示全部楼层
次卫▼▼▼

未命名-0388.jpg


回复 支持 反对

使用道具 举报

您需要登录后才可以回帖 登录 | 立即注册

本版积分规则

全国统一客服电话
0570-8028505

24x7小时免费咨询

  • 官方在线客服

    QQ客服:小西

    点击交谈

    QQ客服:良子

    点击交谈

    QQ客服:闵月

    点击交谈
  • 衢州市柯城区财富中心3号楼2楼

  • 衢州格堂装饰有限公司

  • 扫一扫关注官方微信

    获取一手特惠信息

快速回复 返回顶部 返回列表