• 手机版

    扫码体验手机版

  • 微信公众号

    扫码关注公众号

登录注册
游客您好
第三方账号登陆

[衢州] 【格堂&月亮湾雅1#】中国传统风格文化与现代时尚元素的融合

[复制链接]
发表于 2017-10-9 14:42:50 | 显示全部楼层 |阅读模式

格堂装饰为您全程记录装修全过程!

小区名称
月亮湾雅园
房屋面积
125㎡
户型结构
套房
装修风格
现代
装修方式
半包
装修造价
查看请联系客服万元
设计师
何工
项目经理
余工
装修公司
格堂装饰
完工实景
完工实景
水电全景
水电全景
VR全景
VR全景
设计说明
更多信息
本帖最后由 格堂小马 于 2017-10-9 14:44 编辑


回复

使用道具 举报

 楼主| 发表于 2017-10-9 14:44:31 | 显示全部楼层
本帖最后由 格堂小马 于 2017-10-9 14:56 编辑

客厅效果图

   QQ图片20171008184411.gif
   QQ图片20171008184229.gif
设计说明:  新中式风格,也被称作现代中式风格。新中式风格设计,既是中国传统风格文化与现代时尚元素的融合与碰撞,又是在中国当代文化理解基础上的现代设计。本文就对新中式风格及现代中式风格设计说明进行了一些介绍,让大家对现代中式风格设计有更深入的认识。


回复 支持 反对

使用道具 举报

 楼主| 发表于 2017-10-9 14:44:53 | 显示全部楼层
本帖最后由 格堂小马 于 2017-10-9 15:17 编辑


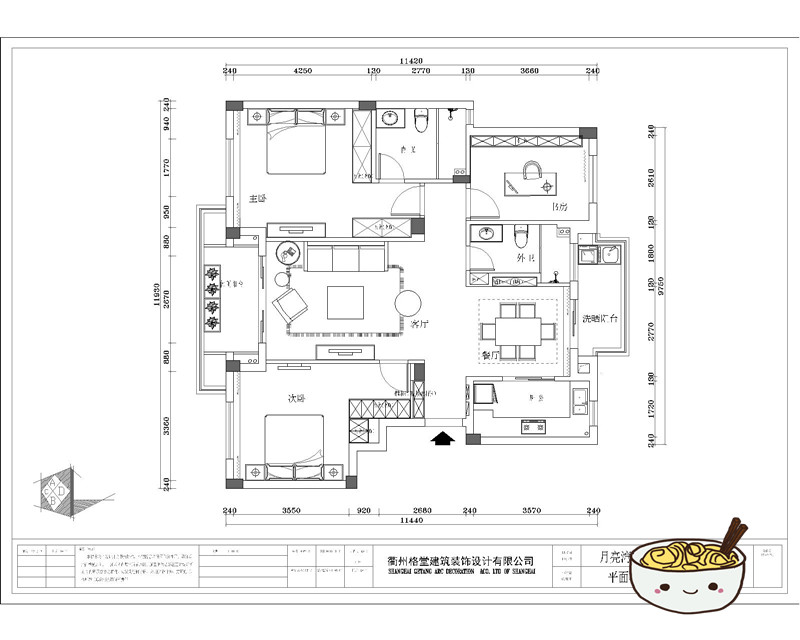
  平面布置图
微信图片_20171009151228.jpg
   原始结构图
    微信图片_20171009151253.jpg




回复 支持 反对

使用道具 举报

 楼主| 发表于 2017-10-9 14:46:15 | 显示全部楼层

风和日丽,开工的好日子
IMG_6211.JPG
回复 支持 反对

使用道具 举报

 楼主| 发表于 2017-10-9 14:47:31 | 显示全部楼层

做好开工准备工作
IMG_6213.JPG
简易马桶
IMG_6215.JPG
下水保护
IMG_6217.JPG

回复 支持 反对

使用道具 举报

 楼主| 发表于 2017-10-9 14:48:33 | 显示全部楼层

拆改放样
IMG_6212.JPG
IMG_6214.JPG
IMG_6210.JPG
回复 支持 反对

使用道具 举报

 楼主| 发表于 2017-10-9 14:49:21 | 显示全部楼层

恭祝业主姐姐开工大吉
IMG_6223.JPG

回复 支持 反对

使用道具 举报

 楼主| 发表于 2017-10-9 14:50:23 | 显示全部楼层

业主姐姐敲响了开工锤
IMG_6230.JPG

回复 支持 反对

使用道具 举报

 楼主| 发表于 2017-10-9 14:51:23 | 显示全部楼层

物业办理开工手续
IMG_6237.JPG
IMG_6236.JPG
回复 支持 反对

使用道具 举报

 楼主| 发表于 2017-10-15 11:19:20 | 显示全部楼层

铲灰
PLMN0557.jpg
KJEB2786.jpg
NEWB3177.jpg
回复 支持 反对

使用道具 举报

您需要登录后才可以回帖 登录 | 立即注册

本版积分规则

全国统一客服电话
0570-8028505

24x7小时免费咨询

  • 官方在线客服

    QQ客服:小西

    点击交谈

    QQ客服:良子

    点击交谈

    QQ客服:闵月

    点击交谈
  • 衢州市柯城区财富中心3号楼2楼

  • 衢州格堂装饰有限公司

  • 扫一扫关注官方微信

    获取一手特惠信息

快速回复 返回顶部 返回列表