• 手机版

    扫码体验手机版

  • 微信公众号

    扫码关注公众号

登录注册
游客您好
第三方账号登陆

郁金香郡13-2#178㎡简美——蓝色小调

[复制链接]
发表于 2019-9-27 16:31:01 | 显示全部楼层 |阅读模式
郁金香郡13-2#178㎡简美——蓝色小调

格堂装饰实景完工案例欣赏!

小区名称
郁金香郡
房屋面积
178㎡
户型结构
套房
装修风格
简美
装修方式
半包
装修造价
查看请联系客服万元
设计师
周工
项目经理
施工
装修公司
格堂装饰
装修过程
装修日记
设计说明
本案例整体色调为蓝色。蓝色系作为空间的配色,无论是作为背景色还是强调色,沉静高贵的色泽都能展露出至臻至美的迷人魅力,恰似苍穹的澄澈,仿佛瀚海的悠远
更多信息
7E1A0321.jpg
回复

使用道具 举报

 楼主| 发表于 2019-9-27 16:31:39 | 显示全部楼层
本帖最后由 格堂方俊 于 2020-12-6 11:03 编辑


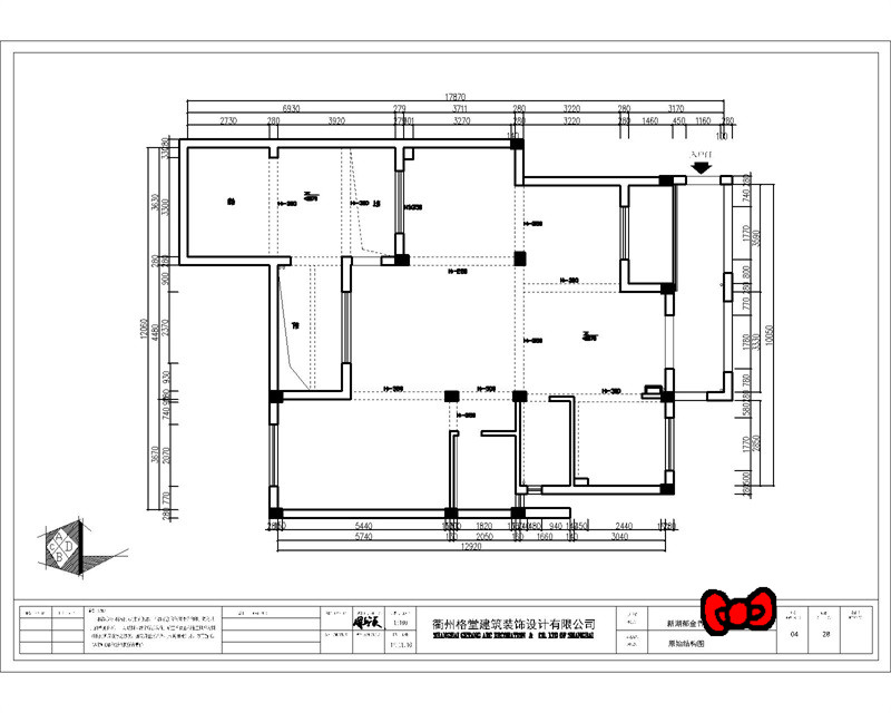
原始结构图▼▼▼

100249v4jtffw1664ttfs3.jpg


回复 支持 反对

使用道具 举报

 楼主| 发表于 2019-9-27 16:32:06 | 显示全部楼层
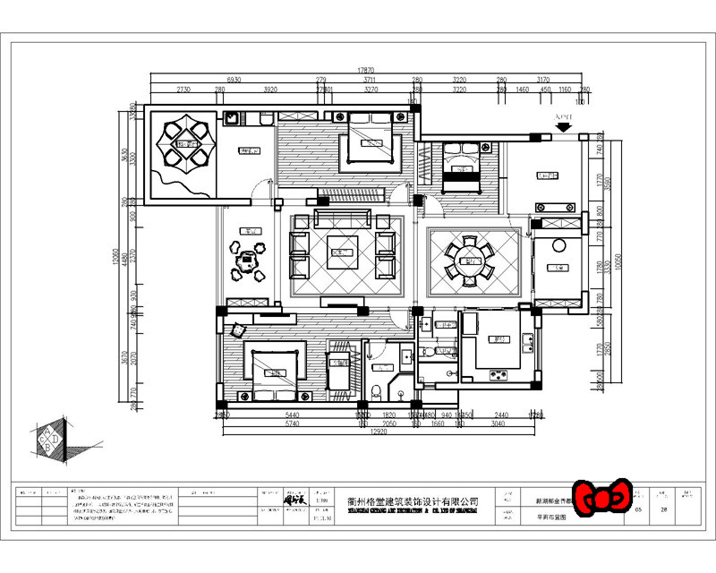
平面布置图▼▼▼

100313op656ze5hz7ll7zp.jpg


回复 支持 反对

使用道具 举报

 楼主| 发表于 2019-9-27 16:32:27 | 显示全部楼层
玄关▼▼▼

7E1A0315.jpg

7E1A0316.jpg

7E1A0317.jpg

7E1A0318.jpg

7E1A0319.jpg


回复 支持 反对

使用道具 举报

 楼主| 发表于 2019-9-27 16:33:17 | 显示全部楼层
客厅▼▼▼

7E1A0320.jpg

7E1A0321.jpg

7E1A0322.jpg

7E1A0323.jpg

7E1A0326.jpg


回复 支持 反对

使用道具 举报

 楼主| 发表于 2019-9-27 16:33:37 | 显示全部楼层
餐厅▼▼▼

7E1A0329.jpg

7E1A0330.jpg

7E1A0331.jpg

7E1A0332.jpg


回复 支持 反对

使用道具 举报

 楼主| 发表于 2019-9-27 16:33:58 | 显示全部楼层
厨房▼▼▼

7E1A0335.jpg

7E1A0336.jpg

7E1A0337.jpg


回复 支持 反对

使用道具 举报

 楼主| 发表于 2019-9-27 16:34:23 | 显示全部楼层
主卧▼▼▼

7E1A0343.jpg

7E1A0344.jpg

7E1A0345.jpg

7E1A0346.jpg

7E1A0347.jpg

7E1A0349.jpg


回复 支持 反对

使用道具 举报

 楼主| 发表于 2019-9-27 16:34:45 | 显示全部楼层
主卫▼▼▼

7E1A0350.jpg


回复 支持 反对

使用道具 举报

 楼主| 发表于 2019-9-27 16:35:05 | 显示全部楼层
小孩房▼▼▼

7E1A0354.jpg

7E1A0355.jpg

7E1A0358.jpg

7E1A0359.jpg

7E1A0361.jpg


回复 支持 反对

使用道具 举报

您需要登录后才可以回帖 登录 | 立即注册

本版积分规则

全国统一客服电话
0570-8028505

24x7小时免费咨询

  • 官方在线客服

    QQ客服:小西

    点击交谈

    QQ客服:良子

    点击交谈

    QQ客服:闵月

    点击交谈
  • 衢州市柯城区财富中心3号楼2楼

  • 衢州格堂装饰有限公司

  • 扫一扫关注官方微信

    获取一手特惠信息

快速回复 返回顶部 返回列表