• 手机版

    扫码体验手机版

  • 微信公众号

    扫码关注公众号

登录注册
游客您好
第三方账号登陆

[衢州] 郁金香郡13-2#178㎡简美——蓝色小调

[复制链接]
发表于 2018-3-30 10:02:17 | 显示全部楼层 |阅读模式
郁金香郡13-2#178㎡简美——蓝色小调

格堂装饰为您全程记录装修全过程!

小区名称
郁金香郡
房屋面积
178㎡
户型结构
套房
装修风格
简美
装修方式
半包
装修造价
查看请联系客服万元
设计师
周工
项目经理
施工
装修公司
格堂装饰
完工实景
完工实景
水电全景
水电全景
VR全景
VR全景
设计说明
本案例整体色调为蓝色。蓝色系作为空间的配色,无论是作为背景色还是强调色,沉静高贵的色泽都能展露出至臻至美的迷人魅力,恰似苍穹的澄澈,仿佛瀚海的悠远。
更多信息
回复

使用道具 举报

 楼主| 发表于 2018-3-30 10:03:01 | 显示全部楼层

原始结构图
436692736517628033_副本.jpg
回复 支持 反对

使用道具 举报

 楼主| 发表于 2018-3-30 10:03:24 | 显示全部楼层

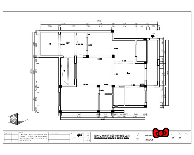
平面布置图
72073962170528949_副本.jpg
回复 支持 反对

使用道具 举报

 楼主| 发表于 2018-3-30 10:03:43 | 显示全部楼层

回复

使用道具 举报

 楼主| 发表于 2018-3-30 10:04:02 | 显示全部楼层

回复

使用道具 举报

 楼主| 发表于 2018-3-30 10:04:22 | 显示全部楼层

回复

使用道具 举报

 楼主| 发表于 2018-3-30 10:04:47 | 显示全部楼层

回复

使用道具 举报

 楼主| 发表于 2018-3-30 10:07:41 | 显示全部楼层

今天是开工的好日子,开工仪式准备工作已经做好咯
IMG_20180322_093304.jpg
回复 支持 反对

使用道具 举报

 楼主| 发表于 2018-3-30 10:08:44 | 显示全部楼层
本帖最后由 格堂彩霞 于 2018-3-30 10:09 编辑

吉时没到,施工在做地面保护,大门用门套保护好,防止后期磕碰到
IMG_20180322_093008.jpg

IMG_20180322_093018.jpg
回复 支持 反对

使用道具 举报

 楼主| 发表于 2018-3-30 10:10:40 | 显示全部楼层
本帖最后由 格堂彩霞 于 2018-3-30 10:18 编辑

煤气表保护
IMG_20180322_093246.jpg
简易马桶
IMG_20180322_093315.jpg
门槛保护
IMG_20180322_100117.jpg
回复 支持 反对

使用道具 举报

您需要登录后才可以回帖 登录 | 立即注册

本版积分规则

全国统一客服电话
0570-8028505

24x7小时免费咨询

  • 官方在线客服

    QQ客服:小西

    点击交谈

    QQ客服:良子

    点击交谈

    QQ客服:闵月

    点击交谈
  • 衢州市柯城区财富中心3号楼2楼

  • 衢州格堂装饰有限公司

  • 扫一扫关注官方微信

    获取一手特惠信息

快速回复 返回顶部 返回列表