• 手机版

    扫码体验手机版

  • 微信公众号

    扫码关注公众号

登录注册
游客您好
第三方账号登陆

衢州公馆21-23#102㎡北欧——北欧简居

[复制链接]
发表于 2019-8-30 08:52:36 | 显示全部楼层 |阅读模式
衢州公馆21-23#102㎡北欧——北欧简居

格堂装饰实景完工案例欣赏!

小区名称
衢州公馆
房屋面积
102㎡
户型结构
套房
装修风格
北欧
装修方式
全包
装修造价
查看请联系客服万元
设计师
郑工
项目经理
余工
装修公司
格堂装饰
装修过程
装修日记
设计说明
简洁为主,素雅的色彩搭配,利用小饰品点亮空间,背景墙硅藻泥乳胶漆和其他面的对比富有层次感。电视柜在追求效果的同时也起到了装饰性。简约的客厅空间木制家具让人回归自然。
更多信息
7E1A0181.jpg
回复

使用道具 举报

 楼主| 发表于 2019-8-30 08:53:43 | 显示全部楼层
本帖最后由 格堂方俊 于 2020-12-6 11:03 编辑


原始结构图▼▼▼

6998926324f672e61865b7b68fef0f4a_104401rmzf1mdi5dmif2fe.jpg


回复 支持 反对

使用道具 举报

 楼主| 发表于 2019-8-30 08:54:01 | 显示全部楼层
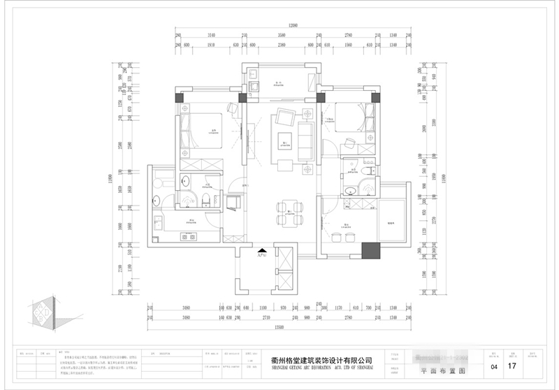
平面布置图▼▼▼

e7bcc53154d6b0c28434ccf542d4d120_104454kwkqv0yjhsv6ok0z.jpg


回复 支持 反对

使用道具 举报

 楼主| 发表于 2019-8-30 08:54:27 | 显示全部楼层
玄关▼▼▼

7E1A0220.jpg

7E1A0221.jpg


回复 支持 反对

使用道具 举报

 楼主| 发表于 2019-8-30 08:54:57 | 显示全部楼层
客厅▼▼▼

7E1A0179.jpg

7E1A0180.jpg

7E1A0182.jpg

7E1A0184.jpg

7E1A0185.jpg

7E1A0186.jpg


回复 支持 反对

使用道具 举报

 楼主| 发表于 2019-8-30 08:55:24 | 显示全部楼层
餐厅▼▼▼

7E1A0175.jpg

7E1A0176.jpg

7E1A0177.jpg

7E1A0195.jpg



回复 支持 反对

使用道具 举报

 楼主| 发表于 2019-8-30 08:55:47 | 显示全部楼层
主卧▼▼▼

7E1A0197.jpg

7E1A0198.jpg

7E1A0199.jpg

7E1A0205.jpg

7E1A0207.jpg



回复 支持 反对

使用道具 举报

 楼主| 发表于 2019-8-30 08:56:41 | 显示全部楼层
女儿房▼▼▼

7E1A0164.jpg

7E1A0165.jpg

7E1A0168.jpg

7E1A0171.jpg

7E1A0174.jpg


回复 支持 反对

使用道具 举报

 楼主| 发表于 2019-8-30 08:57:05 | 显示全部楼层
次卧▼▼▼

7E1A0213.jpg

7E1A0214.jpg


回复 支持 反对

使用道具 举报

 楼主| 发表于 2019-8-30 08:57:34 | 显示全部楼层
主卫▼▼▼

7E1A0208.jpg


回复 支持 反对

使用道具 举报

您需要登录后才可以回帖 登录 | 立即注册

本版积分规则

全国统一客服电话
0570-8028505

24x7小时免费咨询

  • 官方在线客服

    QQ客服:小西

    点击交谈

    QQ客服:良子

    点击交谈

    QQ客服:闵月

    点击交谈
  • 衢州市柯城区财富中心3号楼2楼

  • 衢州格堂装饰有限公司

  • 扫一扫关注官方微信

    获取一手特惠信息

快速回复 返回顶部 返回列表