• 手机版

    扫码体验手机版

  • 微信公众号

    扫码关注公众号

登录注册
游客您好
第三方账号登陆

[衢州] 衢州公馆21-23#102㎡北欧——北欧简居

[复制链接]
发表于 2019-1-9 10:21:58 | 显示全部楼层 |阅读模式
衢州公馆21-23#102㎡北欧——北欧简居

格堂装饰为您全程记录装修全过程!

小区名称
衢州公馆
房屋面积
102㎡
户型结构
套房
装修风格
北欧
装修方式
全包
装修造价
查看请联系客服万元
设计师
郑工
项目经理
余工
装修公司
格堂装饰
完工实景
完工实景
水电全景
水电全景
VR全景
VR全景
设计说明
简洁为主,素雅的色彩搭配,利用小饰品点亮空间,背景墙硅藻泥乳胶漆和其他面的对比富有层次感。电视柜在追求效果的同时也起到了装饰性。简约的客厅空间木制家具让人回归自然。
更多信息
本帖最后由 格堂月红 于 2019-2-23 16:38 编辑

效果图
fcc9ba997e20ed55aa287b96efead26.jpg
回复

使用道具 举报

 楼主| 发表于 2019-1-9 10:25:09 | 显示全部楼层
本帖最后由 格堂月红 于 2019-1-9 10:44 编辑

原始结构图
fe90e20e711f39bbdc874b60d82d7b8.jpg
回复 支持 反对

使用道具 举报

 楼主| 发表于 2019-1-9 10:26:14 | 显示全部楼层
本帖最后由 格堂月红 于 2019-1-9 10:45 编辑

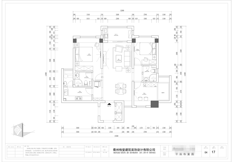
平面布置图
69e1b46044537bcd75163311fa49099.jpg
回复 支持 反对

使用道具 举报

 楼主| 发表于 2019-1-9 10:48:32 | 显示全部楼层

准备开工咯!
IMG20190105083955.jpg

IMG20190105084004.jpg

IMG20190105084046.jpg

mmexport1546651752103.jpg

IMG20190105084416.jpg
回复 支持 反对

使用道具 举报

 楼主| 发表于 2019-1-9 10:49:42 | 显示全部楼层

开工前送上美丽的鲜花!
IMG20190105082905.jpg
回复 支持 反对

使用道具 举报

 楼主| 发表于 2019-1-9 10:52:11 | 显示全部楼层

师傅正在给煤气表做保护。
IMG20190105084722.jpg
回复 支持 反对

使用道具 举报

 楼主| 发表于 2019-1-9 10:54:34 | 显示全部楼层

开工前把各项保护设施做到位
IMG20190105084655.jpg

IMG20190105085111_1.jpg

IMG20190105084746.jpg
回复 支持 反对

使用道具 举报

 楼主| 发表于 2019-1-9 10:56:12 | 显示全部楼层

大门保护也要做到位哦 !
IMG20190105085006.jpg

IMG20190105085423.jpg

IMG20190105090139.jpg
回复 支持 反对

使用道具 举报

 楼主| 发表于 2019-1-9 10:58:21 | 显示全部楼层

礼花准备好了
IMG20190105084314.jpg
回复 支持 反对

使用道具 举报

 楼主| 发表于 2019-1-9 11:00:17 | 显示全部楼层

吉时到,恭祝业主开工大吉!
mmexport1546651728996.jpg
回复 支持 反对

使用道具 举报

您需要登录后才可以回帖 登录 | 立即注册

本版积分规则

全国统一客服电话
0570-8028505

24x7小时免费咨询

  • 官方在线客服

    QQ客服:小西

    点击交谈

    QQ客服:良子

    点击交谈

    QQ客服:闵月

    点击交谈
  • 衢州市柯城区财富中心3号楼2楼

  • 衢州格堂装饰有限公司

  • 扫一扫关注官方微信

    获取一手特惠信息

快速回复 返回顶部 返回列表