• 手机版

    扫码体验手机版

  • 微信公众号

    扫码关注公众号

登录注册
游客您好
第三方账号登陆

吾悦华府1-2#106㎡港式轻奢

[复制链接]
发表于 2019-2-13 14:07:07 | 显示全部楼层 |阅读模式
吾悦华府1-2#106㎡港式轻奢

格堂装饰实景完工案例欣赏!

小区名称
吾悦华府
房屋面积
106㎡
户型结构
套房
装修风格
港式轻奢
装修方式
半包
装修造价
查看请联系客服万元
设计师
何工
项目经理
余工
装修公司
格堂装饰
装修过程
装修日记
设计说明
香港是把“中体西用”这个概念做得最成功的中国城市。一方面包容文化多元,一方面服膺程序理性。本案采用金属铜条与其它材质巧妙搭配,创造了港式轻奢独有表达方式:简练不简单,优雅不纤弱,低调但奢华。
更多信息
1L6A4630.jpg

回复

使用道具 举报

 楼主| 发表于 2019-2-13 14:07:58 | 显示全部楼层
本帖最后由 格堂方俊 于 2020-12-6 11:16 编辑


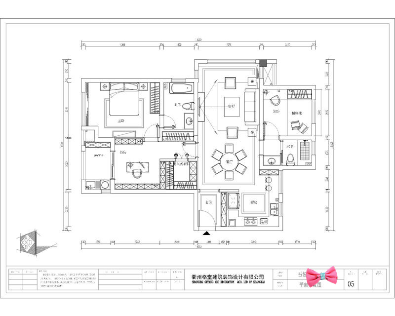
原始结构图▼▼▼

110025yqzqtwqothhwocoq.jpg


回复 支持 反对

使用道具 举报

 楼主| 发表于 2019-2-13 14:08:24 | 显示全部楼层
原始结构图▼▼▼

110047ivwpfwvzzcntlp1v.jpg


回复 支持 反对

使用道具 举报

 楼主| 发表于 2019-2-13 14:09:08 | 显示全部楼层
客厅▼▼▼

1L6A4599.jpg

1L6A4616.jpg

1L6A4624.jpg

1L6A4630.jpg

1L6A4637.jpg

1L6A4579.jpg

1L6A4581.jpg

1L6A4588.jpg

1L6A4591.jpg


回复 支持 反对

使用道具 举报

 楼主| 发表于 2019-2-13 14:09:45 | 显示全部楼层
餐厅▼▼▼

1L6A4642.jpg

1L6A4744.jpg

1L6A4786.jpg


回复 支持 反对

使用道具 举报

 楼主| 发表于 2019-2-13 14:10:08 | 显示全部楼层
厨房▼▼▼

1L6A4650.jpg

1L6A4657.jpg


回复 支持 反对

使用道具 举报

 楼主| 发表于 2019-2-13 14:10:45 | 显示全部楼层
主卧▼▼▼

1L6A4669.jpg

1L6A4676.jpg

1L6A4698.jpg


回复 支持 反对

使用道具 举报

 楼主| 发表于 2019-2-13 14:11:10 | 显示全部楼层
主卫▼▼▼

1L6A4701.jpg

1L6A4704.jpg


回复 支持 反对

使用道具 举报

 楼主| 发表于 2019-2-13 14:11:37 | 显示全部楼层
次卧▼▼▼

1L6A4660.jpg

1L6A4755.jpg


回复 支持 反对

使用道具 举报

 楼主| 发表于 2019-2-13 14:11:59 | 显示全部楼层
玄关▼▼▼

1L6A4765.jpg

1L6A4770.jpg



回复 支持 反对

使用道具 举报

您需要登录后才可以回帖 登录 | 立即注册

本版积分规则

全国统一客服电话
0570-8028505

24x7小时免费咨询

  • 官方在线客服

    QQ客服:小西

    点击交谈

    QQ客服:良子

    点击交谈

    QQ客服:闵月

    点击交谈
  • 衢州市柯城区财富中心3号楼2楼

  • 衢州格堂装饰有限公司

  • 扫一扫关注官方微信

    获取一手特惠信息

快速回复 返回顶部 返回列表