• 手机版

    扫码体验手机版

  • 微信公众号

    扫码关注公众号

登录注册
游客您好
第三方账号登陆

[衢州] 吾悦华府1-2#106㎡港式轻奢

[复制链接]
发表于 2018-4-27 10:48:23 | 显示全部楼层 |阅读模式
吾悦华府1-2#106㎡港式轻奢

格堂装饰为您全程记录装修全过程!

小区名称
吾悦华府
房屋面积
106㎡
户型结构
套房
装修风格
港式轻奢
装修方式
半包
装修造价
查看请联系客服万元
设计师
何工
项目经理
余工
装修公司
格堂装饰
完工实景
完工实景
水电全景
水电全景
VR全景
VR全景
设计说明
香港是把“中体西用”这个概念做得最成功的中国城市。一方面包容文化多元,一方面服膺程序理性。本案采用金属铜条与其它材质巧妙搭配,创造了港式轻奢独有表达方式:简练不简单,优雅不纤弱,低调但奢华。
更多信息
效果图
客厅.jpg
回复

使用道具 举报

 楼主| 发表于 2018-4-27 10:58:10 | 显示全部楼层
本帖最后由 格堂段段 于 2018-4-27 11:02 编辑

原始结构图
微信图片_20180426164519(1).jpg
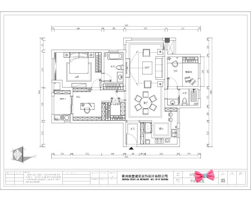
平面布置图
微信图片_20180426164524(1).jpg


回复 支持 反对

使用道具 举报

 楼主| 发表于 2018-4-27 11:06:52 | 显示全部楼层

回复

使用道具 举报

 楼主| 发表于 2018-4-27 11:07:32 | 显示全部楼层

回复

使用道具 举报

 楼主| 发表于 2018-4-27 11:08:30 | 显示全部楼层

回复

使用道具 举报

 楼主| 发表于 2018-4-27 11:08:59 | 显示全部楼层

回复

使用道具 举报

 楼主| 发表于 2018-4-27 11:28:10 | 显示全部楼层
今天是开工的好日子,我们已经准备起来喽
IMG20180426090023.jpg
IMG20180426085643.jpg
回复 支持 反对

使用道具 举报

 楼主| 发表于 2018-4-27 11:31:00 | 显示全部楼层
本帖最后由 格堂段段 于 2018-4-27 11:33 编辑

大门保护好,防止后期搬运磕碰到
IMG20180426085620.jpg


回复 支持 反对

使用道具 举报

 楼主| 发表于 2018-4-27 11:35:23 | 显示全部楼层
本帖最后由 格堂段段 于 2018-4-27 11:38 编辑

地面墙面保护到位。
IMG20180426085540.jpg
IMG20180426085544.jpg IMG20180426085602.jpg
IMG20180426085609.jpg





回复 支持 反对

使用道具 举报

 楼主| 发表于 2018-4-27 11:39:34 | 显示全部楼层
门槛石保护到位。
IMG20180426085628.jpg
回复 支持 反对

使用道具 举报

您需要登录后才可以回帖 登录 | 立即注册

本版积分规则

全国统一客服电话
0570-8028505

24x7小时免费咨询

  • 官方在线客服

    QQ客服:小西

    点击交谈

    QQ客服:良子

    点击交谈

    QQ客服:闵月

    点击交谈
  • 衢州市柯城区财富中心3号楼2楼

  • 衢州格堂装饰有限公司

  • 扫一扫关注官方微信

    获取一手特惠信息

快速回复 返回顶部 返回列表