• 手机版

    扫码体验手机版

  • 微信公众号

    扫码关注公众号

登录注册
游客您好
第三方账号登陆

枫丹白露21#213㎡美式——一个浪漫,温馨的家

[复制链接]
发表于 2019-2-13 13:48:11 | 显示全部楼层 |阅读模式
枫丹白露21#213㎡美式——一个浪漫,温馨的家

格堂装饰实景完工案例欣赏!

小区名称
枫丹白露
房屋面积
213㎡
户型结构
复室
装修风格
美式
装修方式
半包
装修造价
查看请联系客服万元
设计师
胡工
项目经理
彭工
装修公司
格堂装饰
装修过程
装修日记
设计说明
舒适的棕色皮质沙发,清新的碎花电视背景,还有静谧的蓝色窗帘,都展现了美式的优雅大气。
更多信息
7E1A1258 拷贝.jpg
回复

使用道具 举报

 楼主| 发表于 2019-2-13 13:49:04 | 显示全部楼层
本帖最后由 格堂方俊 于 2020-12-6 11:18 编辑


原始结构图▼▼▼

151318uf46ubwu5488gwff.jpg

151351dtt4yekta4ozpa4a.jpg


回复 支持 反对

使用道具 举报

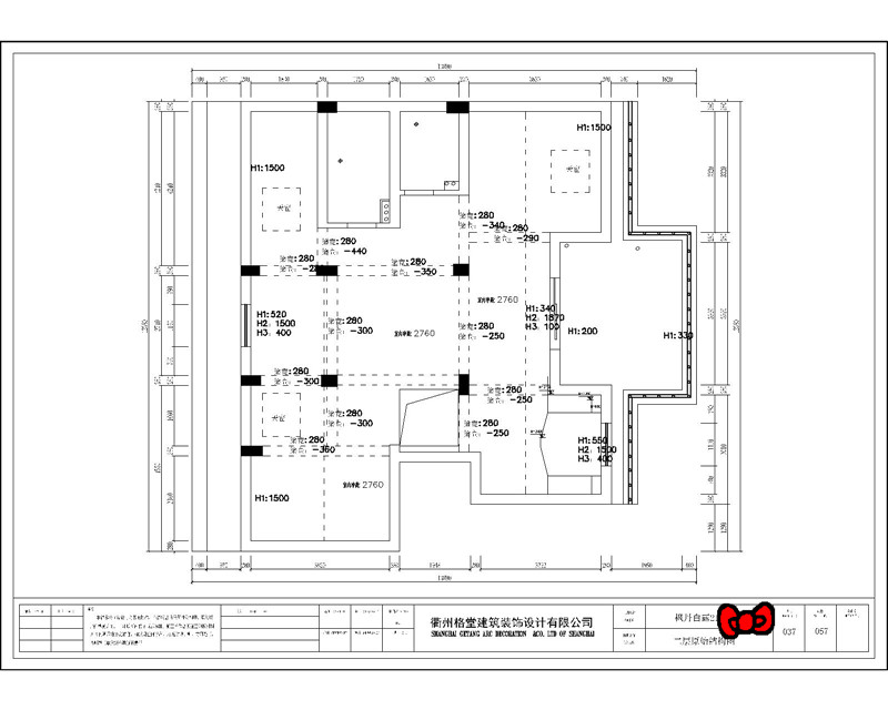
 楼主| 发表于 2019-2-13 13:49:25 | 显示全部楼层
平面布置图▼▼▼

151722pihsmsy9mc13yoi2.jpg

151725xnkk3gy6gpd6gzlp.jpg


回复 支持 反对

使用道具 举报

 楼主| 发表于 2019-2-13 13:50:09 | 显示全部楼层
客厅▼▼▼

7E1A1257 拷贝.jpg

7E1A1258 拷贝.jpg

7E1A1259 拷贝.jpg

7E1A1262 拷贝.jpg

7E1A1271 拷贝.jpg

7E1A1272 拷贝.jpg


回复 支持 反对

使用道具 举报

 楼主| 发表于 2019-2-13 13:50:41 | 显示全部楼层
餐厅▼▼▼

7E1A1278 拷贝.jpg

7E1A1280 拷贝.jpg

7E1A1284 拷贝.jpg


回复 支持 反对

使用道具 举报

 楼主| 发表于 2019-2-13 13:51:41 | 显示全部楼层
主卧▼▼▼

7E1A1310 拷贝.jpg

7E1A1311 拷贝.jpg

7E1A1312 拷贝.jpg

7E1A1313 拷贝.jpg

7E1A1314 拷贝.jpg

7E1A1316 拷贝.jpg

回复 支持 反对

使用道具 举报

 楼主| 发表于 2019-2-13 13:52:13 | 显示全部楼层
浴室▼▼▼

7E1A1319 拷贝.jpg

7E1A1323 拷贝.jpg


回复 支持 反对

使用道具 举报

 楼主| 发表于 2019-2-13 13:53:13 | 显示全部楼层
书房▼▼▼

7E1A1327 拷贝.jpg


回复 支持 反对

使用道具 举报

 楼主| 发表于 2019-2-13 13:53:40 | 显示全部楼层
小孩房▼▼▼

7E1A1286 拷贝.jpg


回复 支持 反对

使用道具 举报

 楼主| 发表于 2019-2-13 13:55:05 | 显示全部楼层
玄关▼▼▼

7E1A1308 拷贝.jpg


回复 支持 反对

使用道具 举报

您需要登录后才可以回帖 登录 | 立即注册

本版积分规则

全国统一客服电话
0570-8028505

24x7小时免费咨询

  • 官方在线客服

    QQ客服:小西

    点击交谈

    QQ客服:良子

    点击交谈

    QQ客服:闵月

    点击交谈
  • 衢州市柯城区财富中心3号楼2楼

  • 衢州格堂装饰有限公司

  • 扫一扫关注官方微信

    获取一手特惠信息

快速回复 返回顶部 返回列表