• 手机版

    扫码体验手机版

  • 微信公众号

    扫码关注公众号

登录注册
游客您好
第三方账号登陆

[衢州] 【格堂**枫丹白露21**】一个浪漫,温馨的家

[复制链接]
发表于 2017-9-24 15:12:47 | 显示全部楼层 |阅读模式

格堂装饰为您全程记录装修全过程!

小区名称
枫丹白露
房屋面积
230㎡
户型结构
复式
装修风格
美式
装修方式
半包
装修造价
查看请联系客服万元
设计师
胡工
项目经理
彭工
装修公司
格堂装饰
完工实景
完工实景
水电全景
水电全景
VR全景
VR全景
设计说明
更多信息
本帖最后由 格堂彩霞 于 2017-12-21 11:03 编辑

效果图
850247008182162339.jpg
回复

使用道具 举报

 楼主| 发表于 2017-9-24 15:16:20 | 显示全部楼层
本帖最后由 格堂彩霞 于 2017-9-24 15:18 编辑

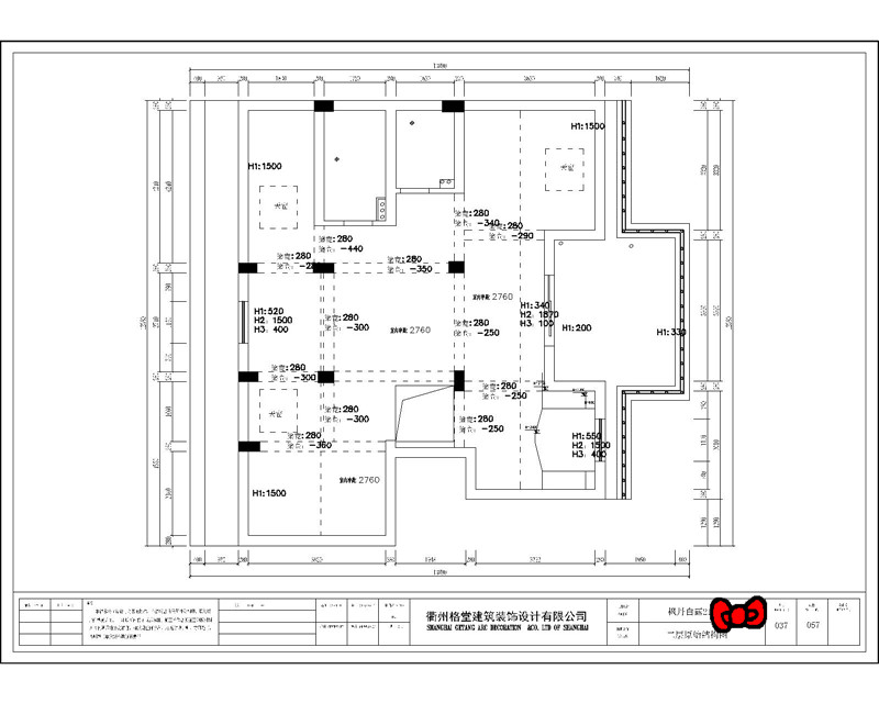
一楼原始结构图
213632492780082218_副本.jpg
二楼原始结构图
880103884455563107_副本.jpg

回复 支持 反对

使用道具 举报

 楼主| 发表于 2017-9-24 15:18:00 | 显示全部楼层
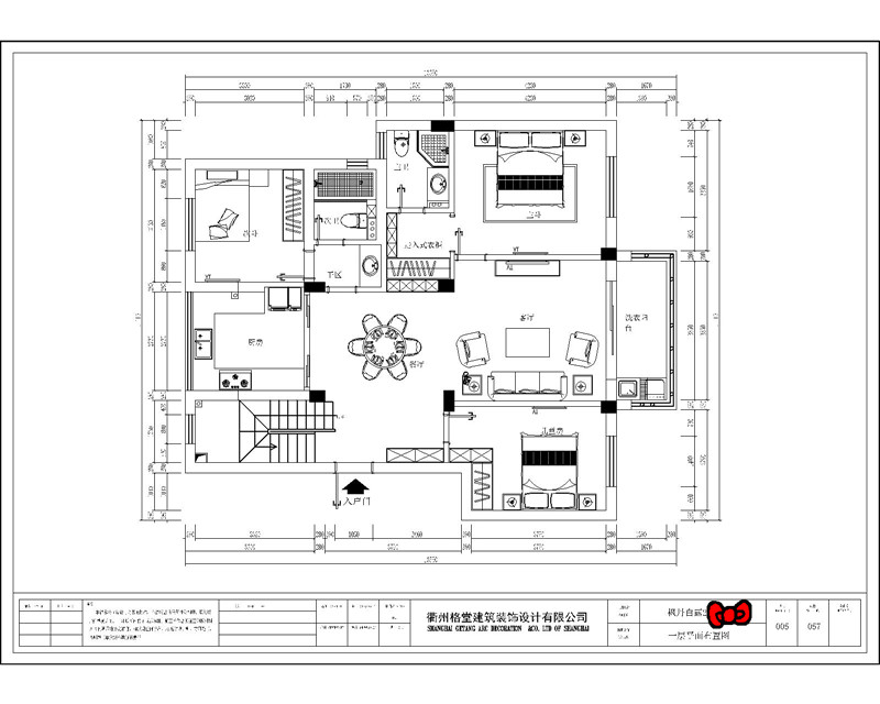
一楼平面布置图
354515544203722037_副本.jpg
二楼平面布置图
539950236011704574_副本.jpg
回复 支持 反对

使用道具 举报

 楼主| 发表于 2017-9-24 15:19:14 | 显示全部楼层
回复

使用道具 举报

 楼主| 发表于 2017-9-24 15:19:25 | 显示全部楼层
回复

使用道具 举报

 楼主| 发表于 2017-9-24 15:19:45 | 显示全部楼层
回复

使用道具 举报

 楼主| 发表于 2017-9-24 15:19:57 | 显示全部楼层
回复

使用道具 举报

 楼主| 发表于 2017-9-24 15:20:14 | 显示全部楼层
回复

使用道具 举报

 楼主| 发表于 2017-9-24 15:23:17 | 显示全部楼层
今天开工哦,在做开工准备喽!
IMG_20170902_081214.jpg

IMG_20170902_081220.jpg
回复 支持 反对

使用道具 举报

 楼主| 发表于 2017-9-24 15:24:02 | 显示全部楼层
大门保护、电梯保护防止后期磕碰到
IMG_20170902_081531.jpg

IMG_20170902_081546.jpg
回复 支持 反对

使用道具 举报

您需要登录后才可以回帖 登录 | 立即注册

本版积分规则

全国统一客服电话
0570-8028505

24x7小时免费咨询

  • 官方在线客服

    QQ客服:小西

    点击交谈

    QQ客服:良子

    点击交谈

    QQ客服:闵月

    点击交谈
  • 衢州市柯城区财富中心3号楼2楼

  • 衢州格堂装饰有限公司

  • 扫一扫关注官方微信

    获取一手特惠信息

快速回复 返回顶部 返回列表