• 手机版

    扫码体验手机版

  • 微信公众号

    扫码关注公众号

登录注册
游客您好
第三方账号登陆

[衢州] 新湖兰馨苑15-1#213㎡新中式

[复制链接]
发表于 2018-3-12 15:28:19 | 显示全部楼层 |阅读模式
新湖兰馨苑15-1#213㎡新中式

格堂装饰为您全程记录装修全过程!

小区名称
新湖兰馨苑
房屋面积
213㎡
户型结构
复式
装修风格
新中式
装修方式
全包
装修造价
查看请联系客服万元
设计师
何工
项目经理
姜工
装修公司
格堂装饰
完工实景
完工实景
水电全景
水电全景
VR全景
VR全景
设计说明
待添加...
更多信息
回复

使用道具 举报

 楼主| 发表于 2018-3-12 15:37:17 | 显示全部楼层
本帖最后由 格堂飞飞 于 2018-3-12 15:48 编辑

一楼原始结构图
467772023162799516_副本.jpg
二楼原始结构图
42132574199106998_副本.jpg


回复 支持 反对

使用道具 举报

 楼主| 发表于 2018-3-12 15:49:53 | 显示全部楼层

一楼平面布置图
654808173886817738_副本.jpg
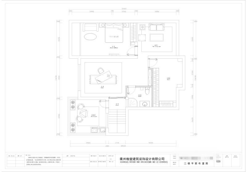
二楼平面布置图
206245412790724894_副本.jpg
回复 支持 反对

使用道具 举报

 楼主| 发表于 2018-3-12 16:08:25 | 显示全部楼层

回复

使用道具 举报

 楼主| 发表于 2018-3-12 16:09:42 | 显示全部楼层



回复

使用道具 举报

 楼主| 发表于 2018-3-12 16:10:00 | 显示全部楼层



回复

使用道具 举报

 楼主| 发表于 2018-3-12 16:10:39 | 显示全部楼层




回复

使用道具 举报

 楼主| 发表于 2018-3-12 16:14:57 | 显示全部楼层

开工前大门先要保护起来,防止后期磕碰。
IMG_6907.JPG

IMG_6908.JPG

IMG_6909.JPG

IMG_6940.JPG

回复 支持 反对

使用道具 举报

 楼主| 发表于 2018-3-12 16:17:46 | 显示全部楼层

门槛保护到位防止后期破损
IMG_6941.JPG

回复 支持 反对

使用道具 举报

 楼主| 发表于 2018-3-12 16:18:34 | 显示全部楼层

临时马桶安装到位
IMG_6923.JPG
回复 支持 反对

使用道具 举报

您需要登录后才可以回帖 登录 | 立即注册

本版积分规则

全国统一客服电话
0570-8028505

24x7小时免费咨询

  • 官方在线客服

    QQ客服:小西

    点击交谈

    QQ客服:良子

    点击交谈

    QQ客服:闵月

    点击交谈
  • 衢州市柯城区财富中心3号楼2楼

  • 衢州格堂装饰有限公司

  • 扫一扫关注官方微信

    获取一手特惠信息

快速回复 返回顶部 返回列表