• 手机版

    扫码体验手机版

  • 微信公众号

    扫码关注公众号

登录注册
游客您好
第三方账号登陆

[衢州] 景港花园32#388㎡新中式——三代同堂的幸福家

[复制链接]
发表于 2018-3-6 17:18:59 | 显示全部楼层 |阅读模式
景港花园32#388㎡新中式——三代同堂的幸福家

格堂装饰为您全程记录装修全过程!

小区名称
景港花园
房屋面积
388㎡
户型结构
排屋
装修风格
新中式
装修方式
全包
装修造价
查看请联系客服万元
设计师
周工
项目经理
施工
装修公司
格堂装饰
完工实景
完工实景
水电全景
水电全景
VR全景
VR全景
设计说明
阳光掬暖,几分安详,无论春夏秋冬,四季阡陌,流落着璃白的光质,心暖了……心暖不在寒颤风声里,心暖在拈花一笑的静意温婉里,温润无声……那些一一绽开的花语,在流年里静绽无声,花骨淌香,香薰着时光,旖旎风情……
更多信息
回复

使用道具 举报

 楼主| 发表于 2018-3-6 17:22:33 | 显示全部楼层
地下室原始结构图
784166512791343610_副本.jpg
地下室平面布置图
282801384528780987_副本.jpg
回复 支持 反对

使用道具 举报

 楼主| 发表于 2018-3-6 17:31:24 | 显示全部楼层
本帖最后由 格堂彩霞 于 2018-3-7 13:15 编辑

一楼原始结构图
210851377417437261_副本.jpg
一楼平面布置图
86922287902631155_副本.jpg

回复 支持 反对

使用道具 举报

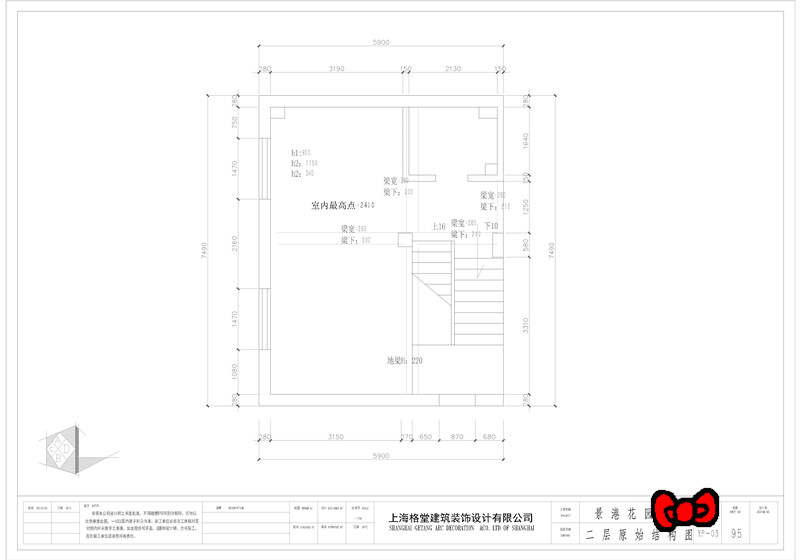
 楼主| 发表于 2018-3-7 13:14:50 | 显示全部楼层

二楼原始结构图
656651476296255484_副本.jpg
二楼平面布置图
730244676831821269_副本.jpg
回复 支持 反对

使用道具 举报

 楼主| 发表于 2018-3-7 13:16:39 | 显示全部楼层

三楼原始结构图
673980205071058131_副本.jpg
三楼平面布置图
522640371263483348_副本.jpg
回复 支持 反对

使用道具 举报

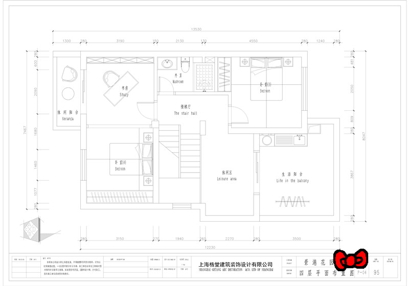
 楼主| 发表于 2018-3-7 13:18:29 | 显示全部楼层

四楼原始结构图
197126907509289598_副本.jpg
四楼平面布置图
301568832227854657_副本.jpg
回复 支持 反对

使用道具 举报

 楼主| 发表于 2018-3-7 13:25:14 | 显示全部楼层

回复

使用道具 举报

 楼主| 发表于 2018-3-7 13:27:49 | 显示全部楼层

回复

使用道具 举报

 楼主| 发表于 2018-3-7 13:29:21 | 显示全部楼层

回复

使用道具 举报

 楼主| 发表于 2018-3-7 13:35:57 | 显示全部楼层

回复

使用道具 举报

您需要登录后才可以回帖 登录 | 立即注册

本版积分规则

全国统一客服电话
0570-8028505

24x7小时免费咨询

  • 官方在线客服

    QQ客服:小西

    点击交谈

    QQ客服:良子

    点击交谈

    QQ客服:闵月

    点击交谈
  • 衢州市柯城区财富中心3号楼2楼

  • 衢州格堂装饰有限公司

  • 扫一扫关注官方微信

    获取一手特惠信息

快速回复 返回顶部 返回列表