• 手机版

    扫码体验手机版

  • 微信公众号

    扫码关注公众号

登录注册
游客您好
第三方账号登陆

[衢州] 吾悦华府8#102㎡美式——秋意浓•念无恙

[复制链接]
发表于 2018-1-2 16:11:46 | 显示全部楼层 |阅读模式
吾悦华府8#102㎡美式——秋意浓•念无恙

格堂装饰为您全程记录装修全过程!

小区名称
吾悦华府
房屋面积
102㎡
户型结构
套房
装修风格
美式
装修方式
半包
装修造价
查看请联系客服万元
设计师
王工
项目经理
施工
装修公司
格堂装饰
完工实景
完工实景
水电全景
水电全景
VR全景
VR全景
设计说明
本案为美式风格,设计理念表现为追求华丽、高雅的古典风格。居室色彩主调为暖色调,家具多为布艺或浅木色古典做旧感,家具、门、窗漆成白色,擅用各种花饰、丰富的木线变化、跳色的窗帘帷幄是西式传统室内装饰的固定模式,空间环境多表现出复古、温馨、浪漫的气氛。
更多信息
回复

使用道具 举报

 楼主| 发表于 2018-1-2 16:12:59 | 显示全部楼层

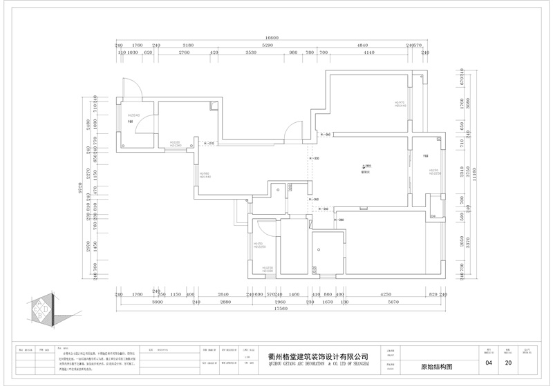
原始结构图
853461926937176705.jpg
回复 支持 反对

使用道具 举报

 楼主| 发表于 2018-1-2 16:13:28 | 显示全部楼层

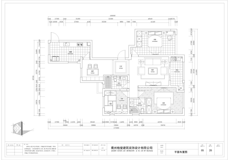
平面布置图
368794456087850775.jpg
回复 支持 反对

使用道具 举报

 楼主| 发表于 2018-1-2 16:14:46 | 显示全部楼层

回复

使用道具 举报

 楼主| 发表于 2018-1-2 16:18:02 | 显示全部楼层

回复

使用道具 举报

 楼主| 发表于 2018-1-2 16:18:44 | 显示全部楼层

回复

使用道具 举报

 楼主| 发表于 2018-1-2 16:19:20 | 显示全部楼层

回复

使用道具 举报

 楼主| 发表于 2018-1-2 16:21:07 | 显示全部楼层

大门保护到位,防止后期磕碰
IMG_20180101_081442.jpg
回复 支持 反对

使用道具 举报

 楼主| 发表于 2018-1-2 16:22:22 | 显示全部楼层

门槛保护
IMG_20180101_081438.jpg
回复 支持 反对

使用道具 举报

 楼主| 发表于 2018-1-2 16:23:22 | 显示全部楼层

简易马桶
IMG_20180101_081344.jpg
回复 支持 反对

使用道具 举报

您需要登录后才可以回帖 登录 | 立即注册

本版积分规则

全国统一客服电话
0570-8028505

24x7小时免费咨询

  • 官方在线客服

    QQ客服:小西

    点击交谈

    QQ客服:良子

    点击交谈

    QQ客服:闵月

    点击交谈
  • 衢州市柯城区财富中心3号楼2楼

  • 衢州格堂装饰有限公司

  • 扫一扫关注官方微信

    获取一手特惠信息

快速回复 返回顶部 返回列表