• 手机版

    扫码体验手机版

  • 微信公众号

    扫码关注公众号

登录注册
游客您好
第三方账号登陆

[衢州] 月亮湾沁园6#125㎡新中式——永不过时的东方魅力

[复制链接]
发表于 2017-11-29 17:09:40 | 显示全部楼层 |阅读模式
月亮湾沁园6#125㎡新中式——永不过时的东方魅力

格堂装饰为您全程记录装修全过程!

小区名称
月亮湾沁园
房屋面积
125㎡
户型结构
套房
装修风格
新中式
装修方式
半包
装修造价
查看请联系客服万元
设计师
王工
项目经理
余工
装修公司
格堂装饰
完工实景
完工实景
水电全景
水电全景
VR全景
VR全景
设计说明
在中式装饰风格的住宅中,空间装饰多采用简洁、硬朗的直线条,直线装饰在空间中的使用,不仅反映出现代人追求简单生活的居住要求,更迎和了中式家居追求内敛、质朴的设计风格,使中式风格更加实用、更富现代感。
更多信息
回复

使用道具 举报

 楼主| 发表于 2017-11-29 17:10:12 | 显示全部楼层

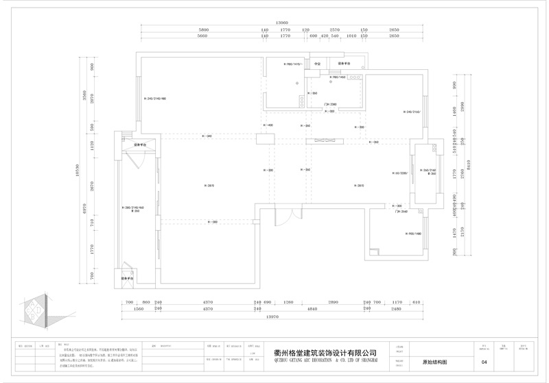
原始结构图
554348774608977092.jpg
回复 支持 反对

使用道具 举报

 楼主| 发表于 2017-11-29 17:10:31 | 显示全部楼层

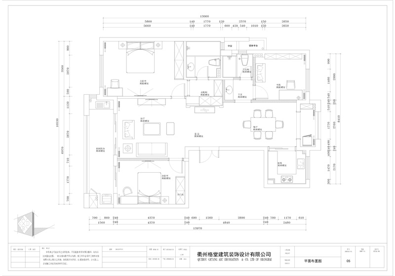
平面布置图
922252321533344460.jpg
回复 支持 反对

使用道具 举报

 楼主| 发表于 2017-11-30 09:42:43 | 显示全部楼层

回复

使用道具 举报

 楼主| 发表于 2017-11-30 09:43:19 | 显示全部楼层

回复

使用道具 举报

 楼主| 发表于 2017-11-30 09:43:50 | 显示全部楼层

回复

使用道具 举报

 楼主| 发表于 2017-11-30 09:44:22 | 显示全部楼层

回复

使用道具 举报

 楼主| 发表于 2017-11-30 09:46:43 | 显示全部楼层

今天是开工的好日子,开工前准备工作已经准备好,就等吉时喽
562812658804473982.jpg
回复 支持 反对

使用道具 举报

 楼主| 发表于 2017-11-30 09:47:40 | 显示全部楼层
本帖最后由 格堂彩霞 于 2017-11-30 09:48 编辑

吉时到,恭祝业主开工大吉,大吉大利!!!让照片留住这一刻
528753524614947258_副本.jpg

189941405225545328_副本.jpg

821627057482986997_副本.jpg
回复 支持 反对

使用道具 举报

 楼主| 发表于 2017-11-30 09:49:57 | 显示全部楼层
大门保护、电梯保护、地面保护,防止后期磕碰
723604127725465620.jpg    

759089493185053056.jpg

回复 支持 反对

使用道具 举报

您需要登录后才可以回帖 登录 | 立即注册

本版积分规则

全国统一客服电话
0570-8028505

24x7小时免费咨询

  • 官方在线客服

    QQ客服:小西

    点击交谈

    QQ客服:良子

    点击交谈

    QQ客服:闵月

    点击交谈
  • 衢州市柯城区财富中心3号楼2楼

  • 衢州格堂装饰有限公司

  • 扫一扫关注官方微信

    获取一手特惠信息

快速回复 返回顶部 返回列表