• 手机版

    扫码体验手机版

  • 微信公众号

    扫码关注公众号

登录注册
游客您好
第三方账号登陆

[衢州] 【直击工地现场,做良心工程,用事实说话!】第九十四期工地巡检

[复制链接]
发表于 2016-5-30 17:00:34 | 显示全部楼层

【小    区】乐业景观
【面    积】90平方
【装修风格】现代简约
【房    型】套房
【设 计 师】王工
【施 工 员】徐工
【设计&施工】格堂装饰

设计说明:本案是业主的改善形住宅,男女主人一致达成的共识就是希望家能够简单大方且干净利落。针对这些要求,设计师给出了完美的答案,首先整体设计风格定为现代简约,既为男主人考虑装修成本,同时也为主人家创造一种时尚简单生活的环境,整体设计风格简约,清爽明了.


回复 支持 反对

使用道具 举报

发表于 2016-5-30 17:02:45 | 显示全部楼层


客厅效果图
le1.jpg
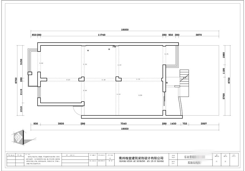
原始结构图
le2.jpg

回复 支持 反对

使用道具 举报

发表于 2016-5-30 17:05:54 | 显示全部楼层

美丽的业主姐姐巡检组又来喽
DSC08898.JPG
DSC08926.JPG
回复 支持 反对

使用道具 举报

发表于 2016-5-30 17:07:37 | 显示全部楼层

巡检组在讨论玄关整改方案
DSC08907.JPG
DSC08906.JPG
回复 支持 反对

使用道具 举报

发表于 2016-5-30 17:11:59 | 显示全部楼层

装饰柜门口处需要加指甲条,那样更美观
28416215279062041.jpg
239071439161538227.jpg
回复 支持 反对

使用道具 举报

发表于 2016-5-30 17:13:40 | 显示全部楼层

客厅背景墙木条处需要加个线条,更美观哦
398665733583027502.jpg
535555005106952849.jpg
回复 支持 反对

使用道具 举报

发表于 2016-5-30 17:14:48 | 显示全部楼层
缝隙太大了,不美观,需要加集成板
443851530514064807.jpg
回复 支持 反对

使用道具 举报

发表于 2016-5-30 17:47:02 | 显示全部楼层
本帖最后由 格堂小马 于 2016-5-30 17:50 编辑





回复

使用道具 举报

 楼主| 发表于 2016-5-31 09:22:11 | 显示全部楼层
格堂装饰网www.gtzs.com首创衢城(甚至全国)装修全新模式,为您记录装修全过程,有专门客服为您记录装修全过程传到格堂公司内部网站!
回复

使用道具 举报

 楼主| 发表于 2016-5-31 09:22:22 | 显示全部楼层
格堂装饰网www.gtzs.com首创衢城(甚至全国)装修全新模式,为您记录装修全过程,有专门客服为您记录装修全过程传到格堂公司内部网站!
回复

使用道具 举报

您需要登录后才可以回帖 登录 | 立即注册

本版积分规则

全国统一客服电话
0570-8028505

24x7小时免费咨询

  • 官方在线客服

    QQ客服:小西

    点击交谈

    QQ客服:良子

    点击交谈

    QQ客服:闵月

    点击交谈
  • 衢州市柯城区财富中心3号楼2楼

  • 衢州格堂装饰有限公司

  • 扫一扫关注官方微信

    获取一手特惠信息

快速回复 返回顶部 返回列表