• 手机版

    扫码体验手机版

  • 微信公众号

    扫码关注公众号

登录注册
游客您好
第三方账号登陆

[衢州] 【直击工地现场,做良心工程,用事实说话!】第九十四期工地巡检

[复制链接]
发表于 2016-5-30 16:22:15 | 显示全部楼层
本帖最后由 格堂小梅 于 2016-5-31 15:13 编辑

墙面防水做好后,向墙面泼水,水都成水珠滴落到地面,不吸水。给力!




回复 支持 反对

使用道具 举报

发表于 2016-5-30 16:26:39 | 显示全部楼层


【小区名称】中央公园
【面    积】
【装修方式】半包
【装修风格】现代简约
【装修公司】格堂装饰
【设 计 师】王工
【项目经理】王工
【设计说明】现代简约风格主要表现在空间开敞、内外通透,在空间平面设计中追求不受承重墙的限制自由。所以在设计现代简约的时候,很多时候都会考虑到墙面、地面、顶棚等的协调性。现代简约的设计,它是一种更高层次的创作境界。在考虑其设计的时候,它强调的是一种舒适与实用,比较注重于追求材料、技术、空间的表现深度与精确。而在颜色上也有一些设计说明的。现代简约以色彩的高度凝练和造型的极度简洁,在满足功能需要的前提下。让一些空间和人既物进行合理的分配组合,描绘出最丰富动人的空间效果。
对于现代社会的简约风格来讲,它的外形简洁,功能强,强调室内空间形态和屋捡的单一性以及抽象性。所以往往我们看到的现代简约风格都是非常简洁、大气、自然。
对于忙碌的现代人而言,现代简约似乎更受欢迎。简单明亮的舒适环境,足以让人消除一天的烦恼。它没有过多繁复的设计,以简洁的造型、纯洁的质地、精细的工艺为其特征,为现代人展现了更温馨舒适的居住环境。
                     

回复 支持 反对

使用道具 举报

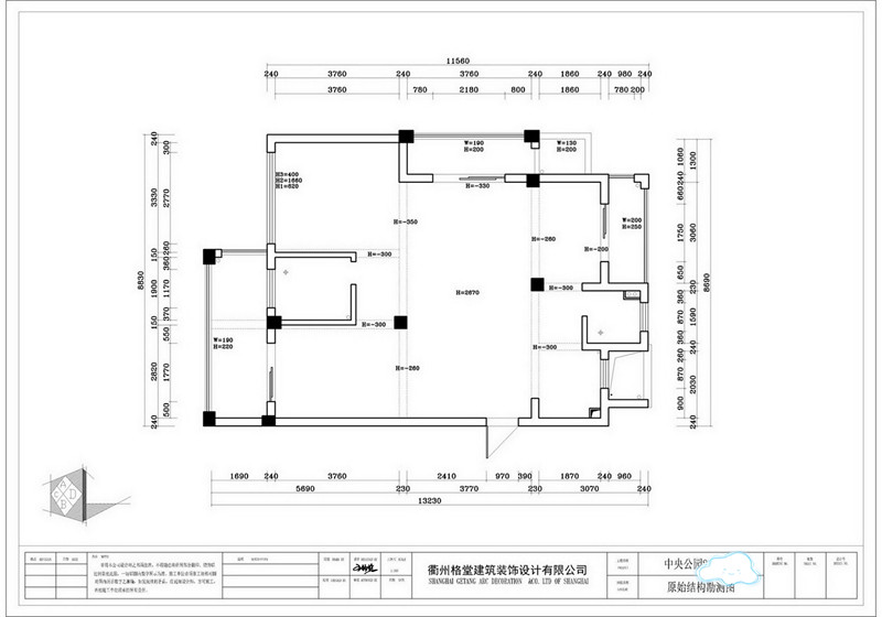
发表于 2016-5-30 16:30:37 | 显示全部楼层


客厅效果图
中8.jpg
原始结构图
中8,2.jpg
回复 支持 反对

使用道具 举报

发表于 2016-5-30 16:36:28 | 显示全部楼层

公司巡检日,提前通知了业主大人,两夫妻都来了
DSC08867.JPG
DSC08868.JPG


回复 支持 反对

使用道具 举报

发表于 2016-5-30 16:37:39 | 显示全部楼层

虽然泥工师傅是业主自己请的,但是巡检组还是认真检查了是否有空鼓
DSC08860.JPG
DSC08862.JPG
回复 支持 反对

使用道具 举报

发表于 2016-5-30 16:38:38 | 显示全部楼层

巡检组检查卫生间的装修情况
DSC08869.JPG
DSC08870.JPG
回复 支持 反对

使用道具 举报

发表于 2016-5-30 16:39:59 | 显示全部楼层

客厅部分在吊顶,巡检组发现空调处的吊顶有点问题
DSC08873.JPG
DSC08872.JPG
回复 支持 反对

使用道具 举报

发表于 2016-5-30 16:48:47 | 显示全部楼层

空调出风口距吊顶的出口太近,影响出风,所以加宽吊顶
DSC08873.JPG
DSC08883.JPG
回复 支持 反对

使用道具 举报

发表于 2016-5-30 16:51:33 | 显示全部楼层

每个房间都检查下,看看是否有需要整改的地方
DSC08876.JPG
DSC08894.JPG
回复 支持 反对

使用道具 举报

发表于 2016-5-30 16:54:17 | 显示全部楼层

巡检中,讨论学习下有关黄沙的知识
IMG_3983.JPG
回复 支持 反对

使用道具 举报

您需要登录后才可以回帖 登录 | 立即注册

本版积分规则

全国统一客服电话
0570-8028505

24x7小时免费咨询

  • 官方在线客服

    QQ客服:小西

    点击交谈

    QQ客服:良子

    点击交谈

    QQ客服:闵月

    点击交谈
  • 衢州市柯城区财富中心3号楼2楼

  • 衢州格堂装饰有限公司

  • 扫一扫关注官方微信

    获取一手特惠信息

快速回复 返回顶部 返回列表