• 手机版

    扫码体验手机版

  • 微信公众号

    扫码关注公众号

登录注册
游客您好
第三方账号登陆

[衢州] 【工地巡检】第二十四期2014年8月格堂装饰工地巡检

[复制链接]
发表于 2014-8-16 14:31:15 | 显示全部楼层 |阅读模式
烈日当空照,花儿对我笑……带着阳光般灿烂的心情,巡检组集体出发咯,展开一天的工地巡检路程。本期巡检的小区是金河湾。
首先巡检的是金河湾11栋2单元。 抵达施工地点,巡检组成员低头立马展开工作,查看各处工艺是否合格。
IMG_0191.JPG

格堂装饰网www.gtzs.com首创衢城(甚至全国)装修全新模式,为您记录装修全过程,有专门客服为您记录装修全过程传到格堂公司内部网站!
回复

使用道具 举报

 楼主| 发表于 2014-8-16 14:38:46 | 显示全部楼层
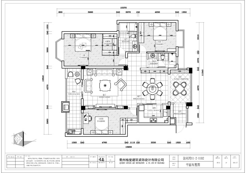
现在我们进入金河湾11栋2单元咯
【面    积】150平方米
【装修风格】现代美式
【房    型】套房
【装修方式】半包
【预    算】11万左右
【设计&施工公司】衢州市格堂建筑装饰设计有限公司
【设 计 师 】苏工
设计平面图
IMG_0191.JPG






格堂装饰网www.gtzs.com首创衢城(甚至全国)装修全新模式,为您记录装修全过程,有专门客服为您记录装修全过程传到格堂公司内部网站!
回复 支持 反对

使用道具 举报

 楼主| 发表于 2014-8-16 14:39:58 | 显示全部楼层
接手这个设计的时候,客户已经到我们格堂装饰公司来了解过我们很多了。当初业主是打算找我们纯设计的,最后跟我们几番沟通后,感觉我们的专业符合她的要求,后来决定让我们来施工。难得可爱的业主对我们如此的信任!非常感谢她!
      设计前期业主也是一个对装修不是很清晰的状态。装修风格大概定位在实木家具上,但是又没办法肯定是什么风格,又担心客厅用全实木,整个感觉太重。经过1个多月的设计,来回几次沟通,慢慢明确了方向。设计师也大胆的推荐了这种现代美式与实木家具混搭的一种风格!真皮沙发,实木餐桌,实木房门,美式简洁吊顶造型,欧式墙面。空间上利用原来空调两边宽大的柱子,做了一个凹口。让电视背景空间凹陷进去,两边柜体造型做个对称协调!加上乡村式的红砖点缀,整个空间处理的恰到好处!餐厅处根据业主的爱好设计了一个鱼缸,鱼缸的定制跟整套美式风格协调上设计师也想出了一个非常好的结合点。鱼缸已经在网上给业主选好了,这些在以后的施工中会体现出来的。

103131w1io09lz733o0v0v.jpg


格堂装饰网www.gtzs.com首创衢城(甚至全国)装修全新模式,为您记录装修全过程,有专门客服为您记录装修全过程传到格堂公司内部网站!
回复 支持 反对

使用道具 举报

 楼主| 发表于 2014-8-16 15:19:26 | 显示全部楼层
弱电箱有一部分被挡在柜子后面了,以后开弱电箱的门很不方便。巡检组责令把整个框往左边移。
IMG_0176.JPG

格堂装饰网www.gtzs.com首创衢城(甚至全国)装修全新模式,为您记录装修全过程,有专门客服为您记录装修全过程传到格堂公司内部网站!
回复 支持 反对

使用道具 举报

 楼主| 发表于 2014-8-16 15:27:42 | 显示全部楼层
已经木工阶段了,厨房烟道排烟口处的烟道止回阀还没装。施工员说业主没有买来,巡检组责令尽快按装,早点安装早点解决问题!以防后面会有臭味冒出。
IMG_0169.JPG

格堂装饰网www.gtzs.com首创衢城(甚至全国)装修全新模式,为您记录装修全过程,有专门客服为您记录装修全过程传到格堂公司内部网站!
回复 支持 反对

使用道具 举报

 楼主| 发表于 2014-8-16 15:37:09 | 显示全部楼层
还发现柜子里放樟木板,不要放整块板,这样既浪费也达不到很好的防蟑螂效果。以后施工工艺改进一下,把樟木板割成每条8cm-10cm宽的,钉在背板后面。这样既节省材料,也能起到每个柜子都防蟑螂的效果。
IMG_0202.JPG


161304is171x1txgq711tx.jpg
IMG_0190.JPG

IMG_0197.JPG


格堂装饰网www.gtzs.com首创衢城(甚至全国)装修全新模式,为您记录装修全过程,有专门客服为您记录装修全过程传到格堂公司内部网站!
回复 支持 反对

使用道具 举报

 楼主| 发表于 2014-8-16 15:50:41 | 显示全部楼层
根据以前我们巡检得出的合理性的标准:床头柜上面一个开关和一个插座,床头柜下面一个网线和一个备用插座,床头灯可以插在备用插座上。这样既美观又方便,此标准还登上了晚报,作为我们公司水电专用标准推广!
IMG_0207.JPG


IMG_0205.JPG


格堂装饰网www.gtzs.com首创衢城(甚至全国)装修全新模式,为您记录装修全过程,有专门客服为您记录装修全过程传到格堂公司内部网站!
回复 支持 反对

使用道具 举报

 楼主| 发表于 2014-8-16 16:12:23 | 显示全部楼层
衣柜做的非常标准:内空2米44,加上贴面板的10公分,共2米54,移门做整体到顶的,整体看起来美观。一块杉木板的长度刚好是2米44,得到巡检组的大力支持。
IMG_5654.JPG


IMG_0216.JPG


IMG_0211.JPG

IMG_0210.JPG


格堂装饰网www.gtzs.com首创衢城(甚至全国)装修全新模式,为您记录装修全过程,有专门客服为您记录装修全过程传到格堂公司内部网站!
回复 支持 反对

使用道具 举报

 楼主| 发表于 2014-8-16 16:20:45 | 显示全部楼层
电视机背景墙线条做法讨论一下,半圆线条是与方形图案平行好看,还是突出好看呢,设计师们一起讨论。最后一致决定线条突出,增加美观
IMG_0232.JPG

IMG_0173.JPG

格堂装饰网www.gtzs.com首创衢城(甚至全国)装修全新模式,为您记录装修全过程,有专门客服为您记录装修全过程传到格堂公司内部网站!
回复 支持 反对

使用道具 举报

 楼主| 发表于 2014-8-16 16:23:12 | 显示全部楼层
我们项目经理是把水电线路都标清楚的喔,防止以后装卫浴的时候打孔时碰到水电线路。赞一个。
IMG_0189.JPG


IMG_0188.JPG

格堂装饰网www.gtzs.com首创衢城(甚至全国)装修全新模式,为您记录装修全过程,有专门客服为您记录装修全过程传到格堂公司内部网站!
回复 支持 反对

使用道具 举报

您需要登录后才可以回帖 登录 | 立即注册

本版积分规则

全国统一客服电话
0570-8028505

24x7小时免费咨询

  • 官方在线客服

    QQ客服:小西

    点击交谈

    QQ客服:良子

    点击交谈

    QQ客服:闵月

    点击交谈
  • 衢州市柯城区财富中心3号楼2楼

  • 衢州格堂装饰有限公司

  • 扫一扫关注官方微信

    获取一手特惠信息

快速回复 返回顶部 返回列表