• 手机版

    扫码体验手机版

  • 微信公众号

    扫码关注公众号

登录注册
游客您好
第三方账号登陆

[衢州] 【工地巡检】第二十一期2014年7月格堂装饰工地巡检

[复制链接]
发表于 2014-7-26 15:06:13 | 显示全部楼层 |阅读模式
2014年7月16日上午,格堂装饰全体员工出发到工地巡检。盛夏酷暑,炎炎烈日,连出门都需要勇气的日子里,格堂装饰巡检组一如往昔行走于衢州市各个小区,将质量严把控的理念进行到底!经过持续的巡检,格堂不断用高的要求来要求员工,督促大家的学习和成长!本次巡检的工地是幸福家园其中三个工地,看看此次巡检有什么收获!
图片1.jpg

格堂装饰网www.gtzs.com首创衢城(甚至全国)装修全新模式,为您记录装修全过程,有专门客服为您记录装修全过程传到格堂公司内部网站!
回复

使用道具 举报

 楼主| 发表于 2014-7-26 15:07:43 | 显示全部楼层

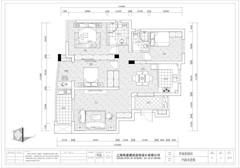
首先,我们到幸福家园58栋巡查

【面积】120平方米

【风格】现代美式

【装修方式】半包

【预算】12万

【房型】三室两厅两卫一厨

平面图


图片2.jpg
        本套设计以温馨舒适的生活方式、色彩来营造一个简约、年轻的空间,透过阳光与灯光的光影穿透效果展现出空间中柔和的阳光。客厅以木色与米色瓷砖相结合,更能有温馨舒适的感觉。深奶茶色的乳胶漆给整个环境环境营造出了温暖的感觉,对追求干净质感生活的三口之家来说,是一个很好的选材。
图片3.jpg

格堂装饰网www.gtzs.com首创衢城(甚至全国)装修全新模式,为您记录装修全过程,有专门客服为您记录装修全过程传到格堂公司内部网站!
回复 支持 反对

使用道具 举报

 楼主| 发表于 2014-7-26 15:08:16 | 显示全部楼层
柜体上没有用保护层保护柜子隔板,灰尘会落到隔板上以后很难清理,巡检组责令一定要用格堂专门定制的保护膜保护起来!
图片4.jpg



图片5.jpg

格堂装饰网www.gtzs.com首创衢城(甚至全国)装修全新模式,为您记录装修全过程,有专门客服为您记录装修全过程传到格堂公司内部网站!
回复 支持 反对

使用道具 举报

 楼主| 发表于 2014-7-26 15:08:54 | 显示全部楼层
地面太脏,没有做好卫生工作!巡检组责令尽快把地面清理干净,否则给予罚款处理!
图片6.jpg



图片7.jpg



图片8.jpg

格堂装饰网www.gtzs.com首创衢城(甚至全国)装修全新模式,为您记录装修全过程,有专门客服为您记录装修全过程传到格堂公司内部网站!
回复 支持 反对

使用道具 举报

 楼主| 发表于 2014-7-26 15:09:37 | 显示全部楼层
卫生间内物品乱堆放,工地不整洁!巡检组责令马上把物品归类,垃圾清理!
图片9.jpg

格堂装饰网www.gtzs.com首创衢城(甚至全国)装修全新模式,为您记录装修全过程,有专门客服为您记录装修全过程传到格堂公司内部网站!
回复 支持 反对

使用道具 举报

 楼主| 发表于 2014-7-26 15:10:02 | 显示全部楼层
师傅马上进行清理!
图片10.jpg

格堂装饰网www.gtzs.com首创衢城(甚至全国)装修全新模式,为您记录装修全过程,有专门客服为您记录装修全过程传到格堂公司内部网站!
回复 支持 反对

使用道具 举报

 楼主| 发表于 2014-7-26 15:10:50 | 显示全部楼层
巡检组用木档测量墙面,发现墙面底部基层没有粉平,踢脚线做起来跟墙面会有很大的缝隙,巡检组责令必须把墙面重新批灰处理,要做到对客户负责,对自己负责!
图片11.jpg



图片12.jpg

格堂装饰网www.gtzs.com首创衢城(甚至全国)装修全新模式,为您记录装修全过程,有专门客服为您记录装修全过程传到格堂公司内部网站!
回复 支持 反对

使用道具 举报

 楼主| 发表于 2014-7-26 15:11:31 | 显示全部楼层
巡检组在用空鼓锤检查墙面是否有空鼓,发现有空鼓做好标记!巡检组责令泥工师傅重新贴过!
图片13.jpg



图片14.jpg



图片15.jpg



DSC07177.JPG

格堂装饰网www.gtzs.com首创衢城(甚至全国)装修全新模式,为您记录装修全过程,有专门客服为您记录装修全过程传到格堂公司内部网站!
回复 支持 反对

使用道具 举报

 楼主| 发表于 2014-7-26 15:12:11 | 显示全部楼层
厨房的烟道止回阀是直径16公分的,油烟机过大尺寸不符合。巡检组决定把16公分的止回阀换成18公分的止回阀。
图片16.jpg



图片17.jpg

格堂装饰网www.gtzs.com首创衢城(甚至全国)装修全新模式,为您记录装修全过程,有专门客服为您记录装修全过程传到格堂公司内部网站!
回复 支持 反对

使用道具 举报

 楼主| 发表于 2014-7-26 15:13:27 | 显示全部楼层
柜子底下有发泡剂,比较难看,把多余的发泡剂清理掉,铺设强化地板的时候收口不会有影响,地板可以靠紧柜子底部。
图片18.jpg



图片19.jpg



图片20.jpg

格堂装饰网www.gtzs.com首创衢城(甚至全国)装修全新模式,为您记录装修全过程,有专门客服为您记录装修全过程传到格堂公司内部网站!
回复 支持 反对

使用道具 举报

您需要登录后才可以回帖 登录 | 立即注册

本版积分规则

全国统一客服电话
0570-8028505

24x7小时免费咨询

  • 官方在线客服

    QQ客服:小西

    点击交谈

    QQ客服:良子

    点击交谈

    QQ客服:闵月

    点击交谈
  • 衢州市柯城区财富中心3号楼2楼

  • 衢州格堂装饰有限公司

  • 扫一扫关注官方微信

    获取一手特惠信息

快速回复 返回顶部 返回列表