• 手机版

    扫码体验手机版

  • 微信公众号

    扫码关注公众号

登录注册
游客您好
第三方账号登陆

[常山] 常山童家塘底自建房354㎡宋氏美学——与光同尘

[复制链接]
发表于 2025-6-30 10:36:48 | 显示全部楼层 |阅读模式
常山童家塘底自建房354㎡宋氏美学——与光同尘

格堂装饰为您全程记录装修全过程!

小区名称
童家塘底
房屋面积
354㎡
户型结构
自建房
装修风格
新中式
装修方式
半包
装修造价
查看请联系客服万元
设计师
江工
项目经理
江工
装修公司
格堂装饰
完工实景
完工实景
水电全景
水电全景
VR全景
VR全景
设计说明
司空图谓“超以象外,得其环中“,八百年后,一座宅邸正以空间为绢帛,重写此境。取宋画中的留白之韵为骨、光影之动为脉,将远山的黛色与林间的氤氲转译为诗意栖居的当代语法。于此间,居所仿若半卷未终的宋画,那点睛的飞白,恰如生活本身落笔的痕迹。
更多信息
效果图

e5e49d580f7dd052e9fe19a1df32b6e.jpg

db602d3054c35a7dec7983201a8976c.jpg

1fc6b72e23ba76ce9d0c2dd1acc6bdc.jpg

6ce42bc10e7e6b1af8469b1f7a2c9dc.jpg

7a0b5751ea09bf84a252ddffd2cd298.jpg

934c3d833a46102bf606422ca487f98.jpg
回复

使用道具 举报

 楼主| 发表于 2025-6-30 10:37:57 | 显示全部楼层
回复 支持 反对

使用道具 举报

 楼主| 发表于 2025-6-30 10:38:39 | 显示全部楼层
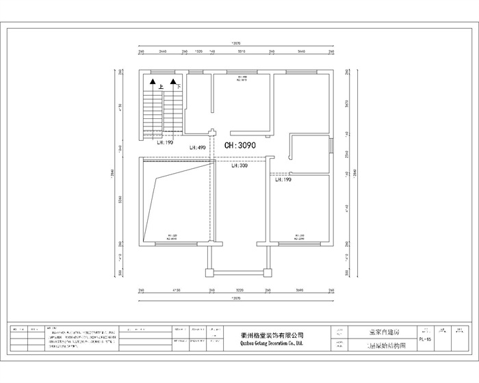
一楼原始结构图

8a2ea50ccea4443d22bbae8365d4553.jpg
回复 支持 反对

使用道具 举报

 楼主| 发表于 2025-6-30 10:39:58 | 显示全部楼层
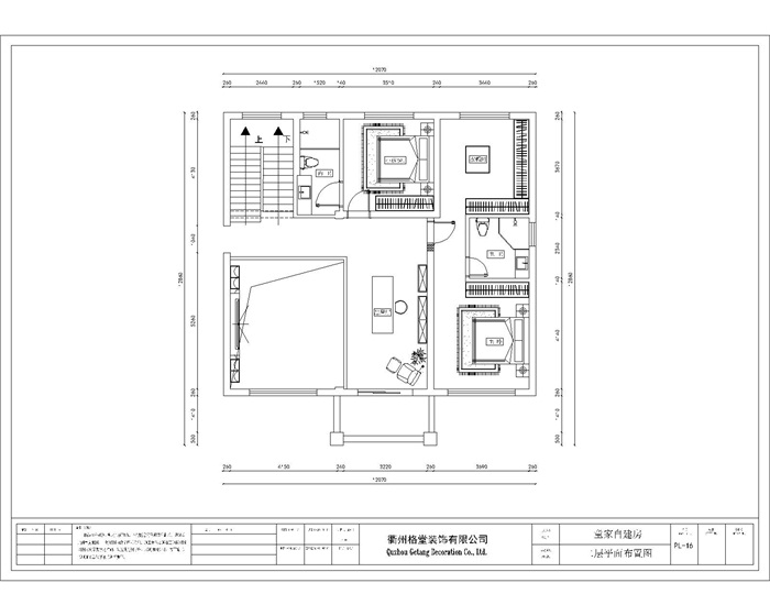
一层平面布置图

74aec2a602db121ada028aa57a7df2c.jpg
回复 支持 反对

使用道具 举报

 楼主| 发表于 2025-6-30 10:40:41 | 显示全部楼层
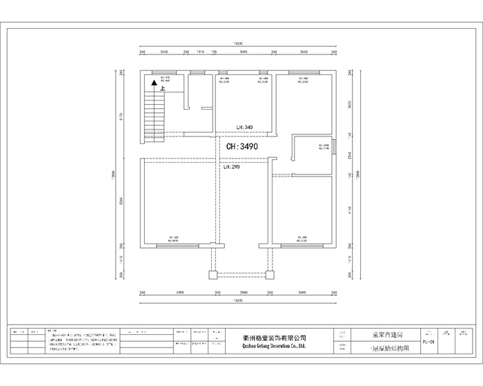
二楼原始结构图

decc1ae33e825a6181c1581a768083a.jpg
回复 支持 反对

使用道具 举报

 楼主| 发表于 2025-6-30 10:41:31 | 显示全部楼层
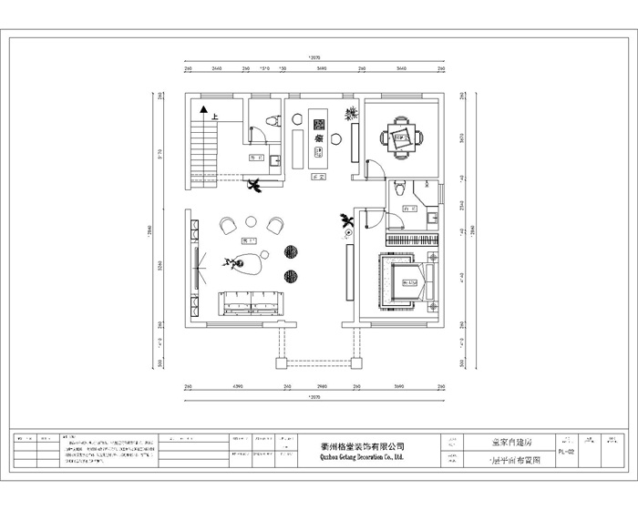
二楼平面布置图

7d40d623ede862319c2cf922a6c18fa.jpg
回复 支持 反对

使用道具 举报

 楼主| 发表于 2025-6-30 10:41:51 | 显示全部楼层
三楼原始结构图

b5df860c17d8eb49b6f4ed13e6e9cdb.jpg
回复 支持 反对

使用道具 举报

 楼主| 发表于 2025-6-30 10:42:46 | 显示全部楼层
三楼平面布置图

f5529c29d728b8e1d720f74321c1696.jpg
回复 支持 反对

使用道具 举报

 楼主| 发表于 2025-6-30 10:46:09 | 显示全部楼层
开工咯,仪式准备好


IMG_20250626_094031.jpg

IMG_20250626_094043.jpg
回复 支持 反对

使用道具 举报

 楼主| 发表于 2025-6-30 10:46:30 | 显示全部楼层
鲜花礼炮准备好

IMG_20250626_093730.jpg

IMG_20250626_093749.jpg
回复 支持 反对

使用道具 举报

您需要登录后才可以回帖 登录 | 立即注册

本版积分规则

全国统一客服电话
0570-8028505

24x7小时免费咨询

  • 官方在线客服

    QQ客服:小西

    点击交谈

    QQ客服:良子

    点击交谈

    QQ客服:闵月

    点击交谈
  • 衢州市柯城区财富中心3号楼2楼

  • 衢州格堂装饰有限公司

  • 扫一扫关注官方微信

    获取一手特惠信息

快速回复 返回顶部 返回列表