• 手机版

    扫码体验手机版

  • 微信公众号

    扫码关注公众号

登录注册
游客您好
第三方账号登陆

[龙游] 碧桂园11-2-18#146㎡现代——含蓄

[复制链接]
发表于 2025-4-18 16:44:18 | 显示全部楼层 |阅读模式
现代——含蓄

格堂装饰为您全程记录装修全过程!

小区名称
碧桂园
房屋面积
146㎡
户型结构
框架结构
装修风格
现代
装修方式
半包
装修造价
查看请联系客服万元
设计师
陈工
项目经理
方工
装修公司
格堂装饰
完工实景
完工实景
水电全景
水电全景
VR全景
VR全景
设计说明
生活不在于追求新奇和潮流,而在于那份对美好事物的热爱和珍惜。
更多信息
本帖最后由 格堂艳子 于 2026-1-14 16:48 编辑

效果图
866170d699061dbc3d37d58981173f82.JPG

5bde324e08a2a7abf355051e932deb2c.JPG

890e3d9d19d9dcb2c83d6a15167ac3f7.JPG

d68cf4f97da1b2d6fa83a43f4ccd2401.JPG

d034175ebcff8cd0b0e8d15f9386bf69.JPG

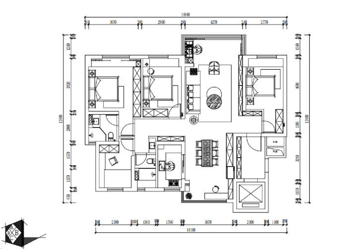
平面布置图
3a20b6c15c2039e1520e70f31f5877bd.PNG

6804b6f104d6e59b47b486e7b6b82179.PNG


目      录

1开工大吉          9
2 拆改施工         砌墙施工10油漆施工
3水电布线(水电不含)11
4木工放样        木工材料12
5吊顶施工         防水施工13
6铺砖施工          14
7


8



回复

使用道具 举报

 楼主| 发表于 2025-4-18 16:48:05 | 显示全部楼层
开工前准备

IMG_5734.JPG

IMG_5732.JPG

IMG_5735.JPG
回复 支持 反对

使用道具 举报

 楼主| 发表于 2025-4-18 16:48:48 | 显示全部楼层
卧室

IMG_5715.JPG

IMG_5716.JPG

IMG_5719.JPG

IMG_5720.JPG
回复 支持 反对

使用道具 举报

 楼主| 发表于 2025-4-18 16:49:36 | 显示全部楼层
IMG_5727.JPG


IMG_5726.JPG

IMG_5725.JPG

IMG_5723.JPG
回复 支持 反对

使用道具 举报

 楼主| 发表于 2025-4-18 16:51:30 | 显示全部楼层
大门已保护到位

IMG_5733.JPG

IMG_5714.JPG
回复 支持 反对

使用道具 举报

 楼主| 发表于 2025-4-18 16:52:49 | 显示全部楼层
临时马桶:每一个施工现场都会配备临时小便斗,并且时刻保持干净卫生、保证工地环境干净、整洁。

IMG_5724.JPG
回复 支持 反对

使用道具 举报

 楼主| 发表于 2025-4-18 16:53:34 | 显示全部楼层
燃气表已保护到位

IMG_5721.JPG
回复 支持 反对

使用道具 举报

 楼主| 发表于 2025-4-18 16:54:54 | 显示全部楼层
设计师、项目经理、拆改师傅一起拆改放样

IMG_5743.JPG


IMG_5745.JPG

IMG_5747.JPG

IMG_5752.JPG
回复 支持 反对

使用道具 举报

 楼主| 发表于 2025-4-18 16:55:43 | 显示全部楼层
送给业主的鲜花

IMG_5736.JPG
回复 支持 反对

使用道具 举报

 楼主| 发表于 2025-4-18 16:56:11 | 显示全部楼层
礼炮准备好了

IMG_5730.JPG
回复 支持 反对

使用道具 举报

您需要登录后才可以回帖 登录 | 立即注册

本版积分规则

全国统一客服电话
0570-8028505

24x7小时免费咨询

  • 官方在线客服

    QQ客服:小西

    点击交谈

    QQ客服:良子

    点击交谈

    QQ客服:闵月

    点击交谈
  • 衢州市柯城区财富中心3号楼2楼

  • 衢州格堂装饰有限公司

  • 扫一扫关注官方微信

    获取一手特惠信息

快速回复 返回顶部 返回列表