• 手机版

    扫码体验手机版

  • 微信公众号

    扫码关注公众号

登录注册
游客您好
第三方账号登陆

[衢州] 航埠长泽街自建房300㎡现代简约——安

[复制链接]
发表于 2025-4-14 19:44:52 | 显示全部楼层 |阅读模式
航埠长泽街自建房300㎡现代简约——安

格堂装饰为您全程记录装修全过程!

小区名称
航埠长泽街自建房
房屋面积
300㎡
户型结构
别墅
装修风格
现代
装修方式
半包
装修造价
查看请联系客服万元
设计师
王工
项目经理
胡工
装修公司
格堂装饰
完工实景
完工实景
水电全景
水电全景
VR全景
VR全景
设计说明
在城市化不可逆的进程中,我们抛弃了过往的生活方式,创造一个个独立,崭新的空间。我们极度满足,实现人最大化的所有需求,追求最舒适最便捷和最精美。但同时在崭新的生活中,慢慢丢失了对环境的眷恋和最自然的的感知能力。所以,我们总是在尝试找回点什么。
更多信息
效果图

微信图片_20250414185330.png

微信图片_20250414185415.png

微信图片_20250414190149.png

微信图片_20250414191522.png

微信图片_20250414191914.png

微信图片_20250414191947.png

微信图片_20250414192233.png

微信图片_20250414192353.png

微信图片_20250414192641.png

微信图片_20250414192901.png

回复

使用道具 举报

 楼主| 发表于 2025-4-14 19:47:21 | 显示全部楼层
回复 支持 反对

使用道具 举报

 楼主| 发表于 2025-4-14 19:57:30 | 显示全部楼层
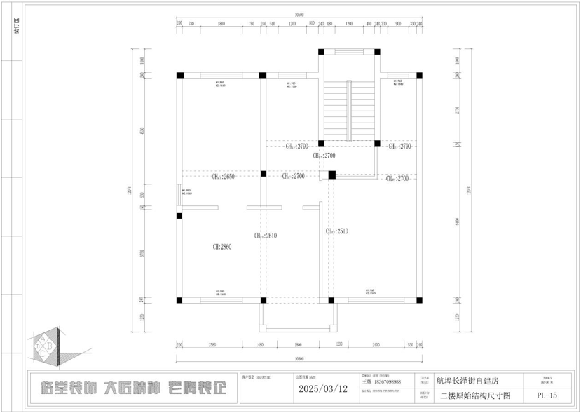
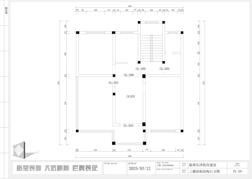
原始尺寸图

微信图片_20250414193628.png

微信图片_20250414193655.png

微信图片_20250414193722.png

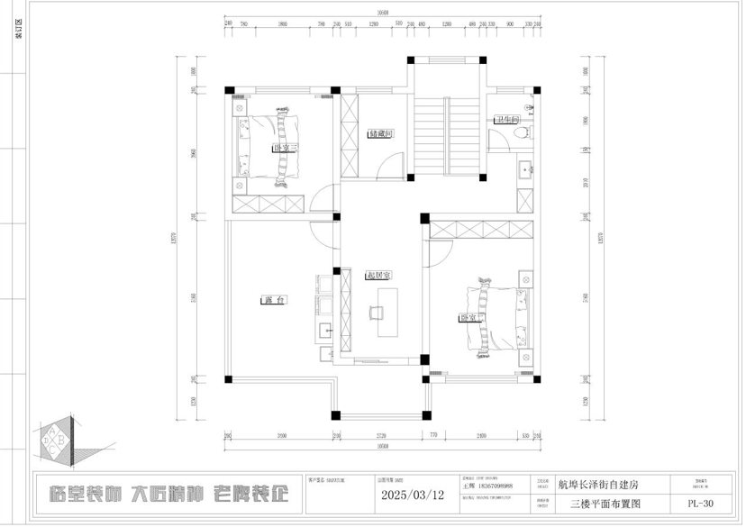
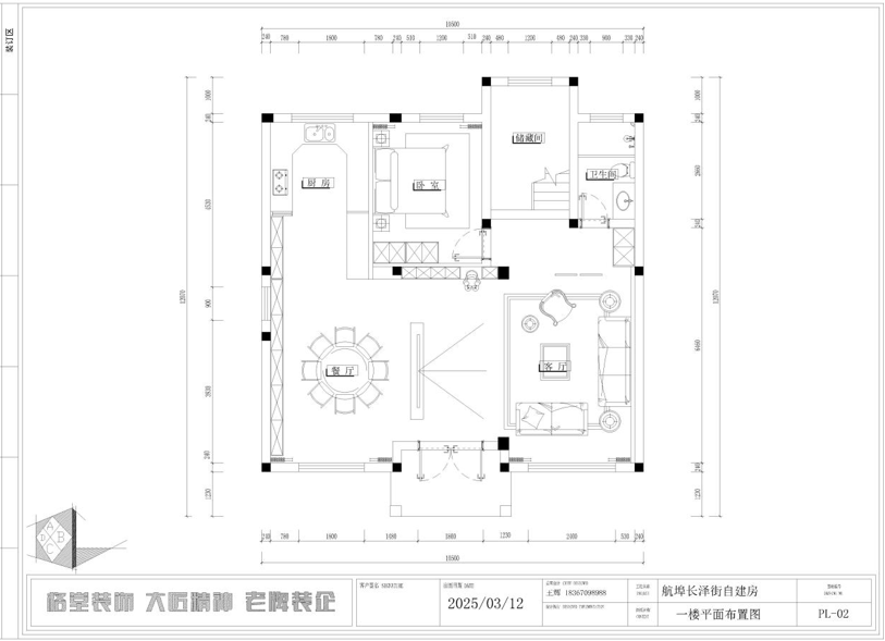
平面布置图
微信图片_20250414193816.png

微信图片_20250414193838.png

微信图片_20250414193858.png

回复 支持 反对

使用道具 举报

 楼主| 发表于 2025-4-14 20:14:39 | 显示全部楼层
本帖最后由 格堂余姐 于 2025-4-15 16:35 编辑

开工仪式准备,开工横幅、鲜花、礼花准备到位,就等吉时!
微信图片_20250412135444.jpg

吉时到开工了,恭祝业主大人开工大吉!
微信图片_20250412135458.jpg

微信图片_20250412135520.jpg

开工第一锤,由业主敲在要拆除的墙体的墙角上,象征一锤定音,也代表着新房动土。
微信图片_20250412135534.jpg


敲的痕迹
微信图片_20250414180837.jpg

回复 支持 反对

使用道具 举报

 楼主| 发表于 2025-4-14 20:24:41 | 显示全部楼层
本帖最后由 格堂余姐 于 2025-4-15 16:44 编辑

水电放样

立体放样,就是把设计图纸上的内容弹到实际顶面、地面和墙面上,相当于将图纸转移到现实工地中,业主可以很直观的看到装修后的大致效果,勾勒出美好生活。如有需要整改的地方,业主第一时间看了就能提出来,方便设计师、项目经理的工作开展。
好记性不如烂笔头,根据图纸,清楚标注开关和插座的位置。放样十分准确,后续师傅就可以一步到位的进行施工了。
微信图片_20250412135951.jpg

微信图片_20250412140013.jpg

微信图片_20250412140014.jpg

微信图片_20250412140015.jpg

微信图片_20250412140016.jpg

微信图片_20250412140017.jpg

微信图片_20250412140310.jpg

微信图片_20250412140326.jpg

微信图片_202504121400141.jpg

微信图片_202504121400142.jpg

微信图片_202504121400151.jpg

微信图片_202504121400152.jpg

微信图片_202504121400161.jpg


回复 支持 反对

使用道具 举报

 楼主| 发表于 2025-4-14 20:35:02 | 显示全部楼层
本帖最后由 格堂余姐 于 2025-4-15 16:43 编辑

水电开槽

我们开线槽前先弹过墨线,再用切割机切过,最后开线槽,这样开的线槽就横平竖直了。
线槽转弯处大弯工艺施工,后期线路更加容易抽换。
地面开槽深度够深,开槽标准,线管低于地面1公分。
微信图片_20250414202738.jpg

微信图片_20250414202953.jpg

微信图片_20250414202957.jpg

微信图片_20250414203001.jpg

微信图片_20250414203005.jpg

微信图片_20250414203008.jpg

微信图片_20250414203011.jpg

微信图片_20250414203016.jpg

微信图片_20250414203020.jpg

微信图片_20250414203023.jpg

回复 支持 反对

使用道具 举报

 楼主| 发表于 2025-4-15 16:42:26 | 显示全部楼层
水电材料已进场,请客户安排材料验收。
电线            中大元通阻燃线
PVC排水         城家DN50/DN75
PVC线管         城家DN20管
PPR水管         海德欧DN25*4.2钢网复合管
网落线          普鲁仕超六类网线带屏蔽(UTP)
电视线          普鲁仕高清(96编6671)
微信图片_20250415142309.jpg

微信图片_20250415142440.jpg

微信图片_20250415142446.jpg

微信图片_20250415142453.jpg

微信图片_20250415142500.jpg

微信图片_20250415142506.jpg

微信图片_20250415142528.jpg

微信图片_20250415142533.jpg

微信图片_20250415142539.jpg
回复 支持 反对

使用道具 举报

 楼主| 发表于 2025-4-30 19:38:41 | 显示全部楼层
本帖最后由 格堂余姐 于 2025-4-30 21:40 编辑

水电阶段
施工工艺:水管已包保温棉,红色为热水管,蓝色为冷水管。水管吊卡间距小于80cm,转角15CM处增加吊卡增加水管稳定性。盒与盒之间已套2个快速连接件连接,线管线盒连接加杯梳,使连接更加牢固并起防止穿线时破坏电线绝缘层作用。  强弱电线管交叉处使用铁管或铁过桥湾交叉,防止信号干扰。中央空调外机线使用地缆线,防止后期老化。


微信图片_20250430191222.jpg


微信图片_20250430191407.jpg

微信图片_20250430191412.jpg

微信图片_20250430191416.jpg

微信图片_20250430191420.jpg

微信图片_20250430191425.jpg

微信图片_20250430191430.jpg

回复 支持 反对

使用道具 举报

 楼主| 发表于 2025-4-30 19:41:50 | 显示全部楼层
本帖最后由 格堂余姐 于 2025-4-30 20:01 编辑

(一楼)餐厅水电中途

IMG20250429120954.jpg

IMG20250429121012.jpg

IMG20250429121036.jpg

IMG20250429121040.jpg

IMG20250429121047.jpg

(一楼)餐厅对角水电中途
IMG20250429121246.jpg

IMG20250429121251.jpg

IMG20250429121258.jpg

IMG20250429121301.jpg

IMG20250429121308.jpg
回复 支持 反对

使用道具 举报

 楼主| 发表于 2025-4-30 19:57:32 | 显示全部楼层
本帖最后由 格堂余姐 于 2025-4-30 20:01 编辑

(一楼)厨房水电中途

IMG20250429121436.jpg

IMG20250429121439.jpg

IMG20250429121445.jpg

IMG20250429121448.jpg

IMG20250429121456.jpg

(一楼)厨房对角水电中途
IMG20250429121523.jpg

IMG20250429121532.jpg

IMG20250429121539.jpg

IMG20250429121557.jpg

IMG20250429121605.jpg
回复 支持 反对

使用道具 举报

您需要登录后才可以回帖 登录 | 立即注册

本版积分规则

全国统一客服电话
0570-8028505

24x7小时免费咨询

  • 官方在线客服

    QQ客服:小西

    点击交谈

    QQ客服:良子

    点击交谈

    QQ客服:闵月

    点击交谈
  • 衢州市柯城区财富中心3号楼2楼

  • 衢州格堂装饰有限公司

  • 扫一扫关注官方微信

    获取一手特惠信息

快速回复 返回顶部 返回列表