• 手机版

    扫码体验手机版

  • 微信公众号

    扫码关注公众号

登录注册
游客您好
第三方账号登陆

[衢州] 大处自建别墅310㎡现代 ——暖韵悠居

[复制链接]
发表于 2025-3-18 08:57:25 | 显示全部楼层 |阅读模式
大处自建别墅310㎡现代 ——暖韵悠居

格堂装饰为您全程记录装修全过程!

小区名称
大处
房屋面积
310㎡
户型结构
别墅
装修风格
现代
装修方式
半包
装修造价
查看请联系客服万元
设计师
王工
项目经理
胡工
装修公司
格堂装饰
完工实景
完工实景
水电全景
水电全景
VR全景
VR全景
设计说明
简洁的线条,柔和的色彩,明亮的皮革材质营造出清新,舒适的高级居住空间,白色和黑色作为基础色彩,为增添空间活力,所以选用棕色作为点缀,能够营造出明亮,宽敞的空间感,选择具有设计感的家具,配饰精致,简约的挂画、雕塑或绿植,为空间增添生气和趣味。
更多信息
本帖最后由 格堂黄姐 于 2025-3-18 09:47 编辑

效果图

mmexport1742260335172.jpg

mmexport1742260337281.jpg

mmexport1742260339152.jpg

mmexport1742260341069.jpg
回复

使用道具 举报

 楼主| 发表于 2025-3-18 08:58:42 | 显示全部楼层
目      录

1开工9
2拆改阶段10
3砌墙放样  砌墙中途11
4水电放样  水电材料12
5水电中途   水电完工13
6
14
7


8



回复 支持 反对

使用道具 举报

 楼主| 发表于 2025-3-18 08:58:56 | 显示全部楼层
本帖最后由 格堂黄姐 于 2025-3-18 09:14 编辑

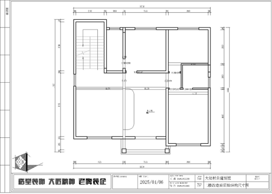
原始结构图

微信截图_20250318090605.png

微信截图_20250318090653.png

微信截图_20250318090723.png
回复 支持 反对

使用道具 举报

 楼主| 发表于 2025-3-18 08:59:08 | 显示全部楼层
本帖最后由 格堂黄姐 于 2025-3-18 09:14 编辑

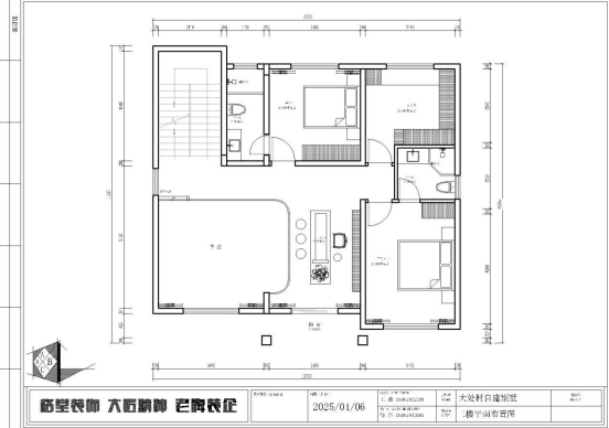
平面布置图

微信截图_20250318090747.png

微信截图_20250318090822.png

微信截图_20250318090846.png
回复 支持 反对

使用道具 举报

 楼主| 发表于 2025-3-18 09:00:15 | 显示全部楼层
开工仪式准备,开工横幅、鲜花、礼花准备到位,就等吉时!
吉时到开工了,恭祝业主大人开工大吉!
开工第一锤,由业主敲在要拆除的墙体的墙角上,象征一锤定音,也代表着新房动土。
敲的痕迹

回复 支持 反对

使用道具 举报

 楼主| 发表于 2025-3-18 09:00:23 | 显示全部楼层
设计师和项目经理正在按图纸拆改放样,确保放样无误。

回复 支持 反对

使用道具 举报

您需要登录后才可以回帖 登录 | 立即注册

本版积分规则

全国统一客服电话
0570-8028505

24x7小时免费咨询

  • 官方在线客服

    QQ客服:小西

    点击交谈

    QQ客服:良子

    点击交谈

    QQ客服:闵月

    点击交谈
  • 衢州市柯城区财富中心3号楼2楼

  • 衢州格堂装饰有限公司

  • 扫一扫关注官方微信

    获取一手特惠信息

快速回复 返回顶部 返回列表