• 手机版

    扫码体验手机版

  • 微信公众号

    扫码关注公众号

登录注册
游客您好
第三方账号登陆

[常山] 常山百悦城20-2-3#105㎡现代——爱宅

[复制链接]
发表于 2025-3-4 15:18:43 | 显示全部楼层 |阅读模式
常山百悦城20-2-3#105㎡现代——爱宅

格堂装饰为您全程记录装修全过程!

小区名称
百悦城
房屋面积
105㎡
户型结构
套房
装修风格
现代
装修方式
半包
装修造价
查看请联系客服万元
设计师
郑工
项目经理
施工
装修公司
格堂装饰
完工实景
完工实景
水电全景
水电全景
VR全景
VR全景
设计说明
进门没做衣帽间让整个客餐厅连动起来,使得南北更加通透;厨房可以拿出一部分放在餐厅位置使用起来也更加方便;外卫把洗脸台拿出来,里面的空间可以给到北边房间做衣柜,让各个空间都大起来~
更多信息
效果图

146006ee866817e8d4046f160c4c005.jpg

ff2dd68b4bbf82bcdd69746207dee21.jpg
回复

使用道具 举报

 楼主| 发表于 2025-3-4 15:21:11 | 显示全部楼层
回复 支持 反对

使用道具 举报

 楼主| 发表于 2025-3-4 15:25:49 | 显示全部楼层
原始结构图

11c7d7aeaeeb979e11ce857722e3b4e.jpg
回复 支持 反对

使用道具 举报

 楼主| 发表于 2025-3-4 15:26:10 | 显示全部楼层
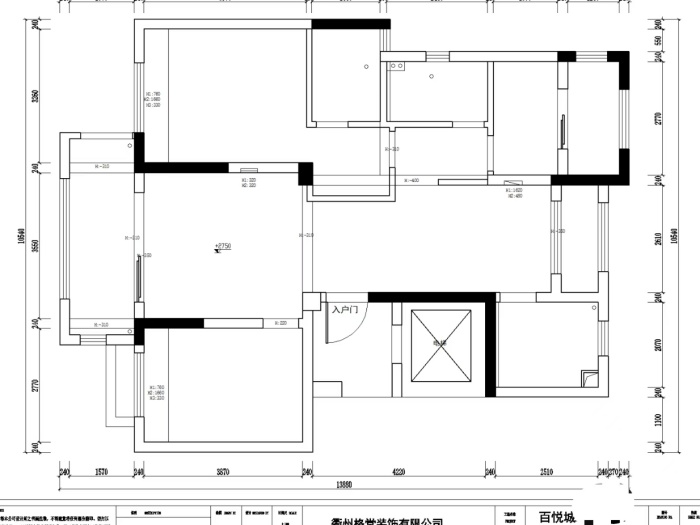
平面布置图

4ef5e276366bef59c7d2a23590fb4f8.jpg
回复 支持 反对

使用道具 举报

 楼主| 发表于 2025-3-4 15:30:53 | 显示全部楼层
开工仪式准备好

IMG_20250303_104934.jpg
回复 支持 反对

使用道具 举报

 楼主| 发表于 2025-3-4 15:31:14 | 显示全部楼层
鲜花礼炮准备好
IMG_20250303_104907.jpg

IMG_20250303_104916.jpg
回复 支持 反对

使用道具 举报

 楼主| 发表于 2025-3-4 15:32:07 | 显示全部楼层
大门保护好,防止后期磕碰

IMG_20250303_104727.jpg

IMG_20250303_104736.jpg
回复 支持 反对

使用道具 举报

 楼主| 发表于 2025-3-4 15:32:30 | 显示全部楼层
门槛也要保护好

IMG_20250303_104742.jpg
回复 支持 反对

使用道具 举报

 楼主| 发表于 2025-3-4 15:34:25 | 显示全部楼层
吉时到,恭祝业主开工大吉!

MEITU_20250303_135602292.jpg
回复 支持 反对

使用道具 举报

 楼主| 发表于 2025-3-4 15:34:49 | 显示全部楼层
开工第一锤,由业主敲在要拆除的墙体的墙角(即拐角)上,象征一锤定音的意思,也是新房动土的一种表示方式

MEITU_20250303_135520744.jpg

IMG_20250303_111910.jpg
回复 支持 反对

使用道具 举报

您需要登录后才可以回帖 登录 | 立即注册

本版积分规则

全国统一客服电话
0570-8028505

24x7小时免费咨询

  • 官方在线客服

    QQ客服:小西

    点击交谈

    QQ客服:良子

    点击交谈

    QQ客服:闵月

    点击交谈
  • 衢州市柯城区财富中心3号楼2楼

  • 衢州格堂装饰有限公司

  • 扫一扫关注官方微信

    获取一手特惠信息

快速回复 返回顶部 返回列表