• 手机版

    扫码体验手机版

  • 微信公众号

    扫码关注公众号

登录注册
游客您好
第三方账号登陆

[衢州] 星月宸庐3-2-10#104㎡中古ins风——艺术与生活的融合

[复制链接]
发表于 2025-2-18 10:29:52 | 显示全部楼层 |阅读模式
星月宸庐3-2-10#104㎡中古ins风——艺术与生活的融合

格堂装饰为您全程记录装修全过程!

小区名称
星月宸庐
房屋面积
104㎡
户型结构
套房
装修风格
自然风
装修方式
半包
装修造价
查看请联系客服万元
设计师
翁工
项目经理
周工
装修公司
格堂装饰
完工实景
完工实景
水电全景
水电全景
VR全景
VR全景
设计说明
邂逅慵懒时光。整体色调仿若被轻柔的云朵簇拥,温馨与惬意扑面而来。柔和的墙面,像是被阳光亲吻过,散发着柔和的光晕,为整个空间奠定了温暖的基调。
更多信息
效果图

微信图片_20250218102026.png

微信图片_20250218102104.png

微信图片_20250218102057.png
回复

使用道具 举报

 楼主| 发表于 2025-2-18 10:33:25 | 显示全部楼层
回复 支持 反对

使用道具 举报

 楼主| 发表于 2025-2-18 10:34:37 | 显示全部楼层
本帖最后由 格堂余姐 于 2026-4-3 23:05 编辑

原始结构图

103403rytz4tenekbyn64g.png

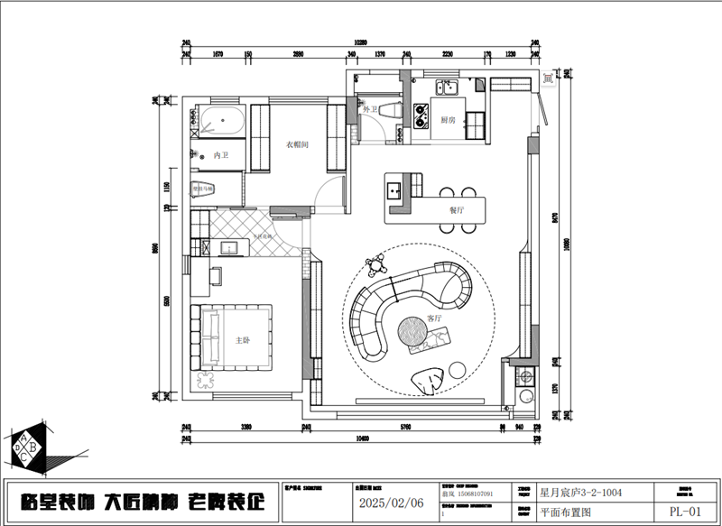
平面布置图

103408hz0hcgdei8a0ec8d.png


回复 支持 反对

使用道具 举报

 楼主| 发表于 2025-2-18 10:37:56 | 显示全部楼层
本帖最后由 格堂余姐 于 2025-2-18 10:53 编辑

开工仪式准备,开工横幅、鲜花、礼花准备到位,就等吉时!
微信图片_20250216151418.jpg

吉时到开工了,恭祝业主大人开工大吉!
微信图片_20250216151529.jpg

开工第一锤,由业主敲在要拆除的墙体的墙角上,象征一锤定音,也代表着新房动土。
微信图片_20250216151509.jpg

敲的痕迹
微信图片_20250216151516.jpg

回复 支持 反对

使用道具 举报

 楼主| 发表于 2025-2-18 10:40:08 | 显示全部楼层
本帖最后由 格堂余姐 于 2025-2-18 10:42 编辑

开工前,电梯口墙面和地面已经保护到位。
IMG20250217145648.jpg

IMG20250217145652.jpg

IMG20250217145721.jpg

IMG20250217145725.jpg

IMG20250217145727.jpg

电梯口墙面和地面对角图
IMG20250217145739.jpg

IMG20250217145741.jpg

IMG20250217145745.jpg

IMG20250217145750.jpg

IMG20250217145757.jpg
回复 支持 反对

使用道具 举报

 楼主| 发表于 2025-2-18 10:44:43 | 显示全部楼层
本帖最后由 格堂余姐 于 2025-2-20 13:20 编辑

大门已经保护到位了

IMG20250217145809.jpg

门槛已经保护到位。
IMG20250217150225.jpg

煤气表已经保护到位。
IMG20250217150252.jpg

临时小便池已经安放好了,每一个施工现场都会配备临时小便斗,并且时刻保持干净卫生,保证工地环境干净整洁。
IMG20250217150319.jpg

排水管道用格堂专用保护盖保护,防止后期施工中砂石 堵塞管道
IMG20250219091447.jpg

IMG20250219091504.jpg

IMG20250219091520.jpg

回复 支持 反对

使用道具 举报

 楼主| 发表于 2025-2-18 10:47:21 | 显示全部楼层
本帖最后由 格堂余姐 于 2025-2-18 10:56 编辑

设计师和项目经理正在按图纸拆改放样,确保放样无误。
微信图片_20250216151657.jpg

微信图片_20250216151858.jpg

微信图片_20250216151902.jpg

微信图片_20250216151906.jpg

微信图片_20250216151910.jpg

微信图片_20250216151913.jpg

微信图片_20250216151916.jpg

微信图片_20250216151921.jpg

微信图片_20250216151924.jpg

微信图片_20250216151929.jpg

回复 支持 反对

使用道具 举报

 楼主| 发表于 2025-2-20 13:09:23 | 显示全部楼层
本帖最后由 格堂余姐 于 2025-2-20 13:21 编辑

拆改阶段

房间铲灰,是为了防止墙顶面出现空鼓,在做好油漆后不会有墙顶面整块油漆脱落的现象。
拆除可以让空间利用更合理。为了整体结构的稳定性和安全性,承重墙是一定不能动的。
厨房
IMG20250219085032.jpg

IMG20250219085035.jpg

IMG20250219085041.jpg

IMG20250219085043.jpg


IMG20250219085046.jpg

回复 支持 反对

使用道具 举报

 楼主| 发表于 2025-2-20 13:10:06 | 显示全部楼层
厨房对角图

IMG20250219085114.jpg

IMG20250219085117.jpg

IMG20250219085121.jpg

IMG20250219085123.jpg

IMG20250219085126.jpg
回复 支持 反对

使用道具 举报

 楼主| 发表于 2025-2-20 13:11:11 | 显示全部楼层
客餐厅
IMG20250219085428.jpg

IMG20250219085434.jpg

IMG20250219085438.jpg

IMG20250219085443.jpg

IMG20250219085445.jpg



回复 支持 反对

使用道具 举报

您需要登录后才可以回帖 登录 | 立即注册

本版积分规则

全国统一客服电话
0570-8028505

24x7小时免费咨询

  • 官方在线客服

    QQ客服:小西

    点击交谈

    QQ客服:良子

    点击交谈

    QQ客服:闵月

    点击交谈
  • 衢州市柯城区财富中心3号楼2楼

  • 衢州格堂装饰有限公司

  • 扫一扫关注官方微信

    获取一手特惠信息

快速回复 返回顶部 返回列表