• 手机版

    扫码体验手机版

  • 微信公众号

    扫码关注公众号

登录注册
游客您好
第三方账号登陆

[开化] 凤凰天成7-2-5#89㎡原木风----暖居

[复制链接]
发表于 2024-12-26 13:20:04 | 显示全部楼层 |阅读模式
凤凰天成7-2-5#89㎡原木风----暖居

格堂装饰为您全程记录装修全过程!

小区名称
凤凰天成
房屋面积
89㎡
户型结构
3房2厅1厨1卫1阳台
装修风格
日式
装修方式
半包
装修造价
查看请联系客服万元
设计师
蒋工
项目经理
施工
装修公司
格堂装饰
完工实景
完工实景
水电全景
水电全景
VR全景
VR全景
设计说明
:以自然原木为主体的家居装饰风格,追求简约、自然、舒适的居住环境。简约的线条,温暖的配色,自然的纹理营造温馨舒适的自然环境,让归家后有真正属于自己的放松的归属感。
更多信息


效果图
75aaadf4a22d61f960d4747594cc717.jpg

9347ab68193b35f1aedb1dd2f46232b.jpg

c1649eec010820d01a598d1c6269858.jpg
回复

使用道具 举报

 楼主| 发表于 2024-12-26 13:21:53 | 显示全部楼层


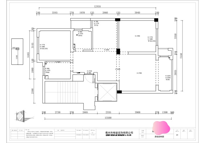
原始结构图
微信图片_20241209094332_副本.jpg
回复 支持 反对

使用道具 举报

 楼主| 发表于 2024-12-26 13:22:11 | 显示全部楼层


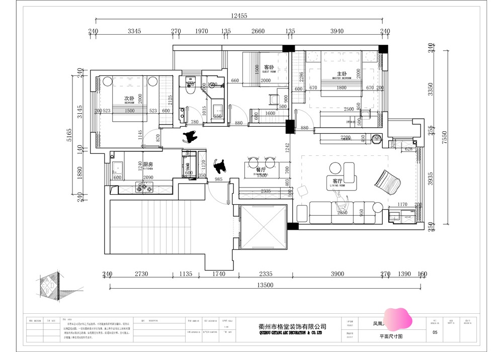
平面布置图
微信图片_20241209094311_副本.jpg
回复 支持 反对

使用道具 举报

 楼主| 发表于 2024-12-26 13:23:15 | 显示全部楼层
回复 支持 反对

使用道具 举报

 楼主| 发表于 2024-12-26 13:24:07 | 显示全部楼层


开工前准备
IMG_0804.JPEG

IMG_0805.JPEG

IMG_0806.JPEG
回复 支持 反对

使用道具 举报

 楼主| 发表于 2024-12-26 13:25:46 | 显示全部楼层


临时马桶:每一个施工现场都会配备临时小便斗,并且时刻保持干净卫生、保证工地环境干净、整洁。

回复 支持 反对

使用道具 举报

 楼主| 发表于 2024-12-26 13:25:46 | 显示全部楼层


临时马桶:每一个施工现场都会配备临时小便斗,并且时刻保持干净卫生、保证工地环境干净、整洁。
IMG_0807.JPEG
回复 支持 反对

使用道具 举报

 楼主| 发表于 2024-12-26 13:26:20 | 显示全部楼层


水管用格堂专用保护盖保护,防止砂石堵塞管道
IMG_0808.JPEG

IMG_0809.JPEG
回复 支持 反对

使用道具 举报

 楼主| 发表于 2024-12-26 13:26:37 | 显示全部楼层


门槛保护
IMG_0812.JPEG
回复 支持 反对

使用道具 举报

 楼主| 发表于 2024-12-26 13:26:59 | 显示全部楼层


大门保护
IMG_0813.JPEG
回复 支持 反对

使用道具 举报

您需要登录后才可以回帖 登录 | 立即注册

本版积分规则

全国统一客服电话
0570-8028505

24x7小时免费咨询

  • 官方在线客服

    QQ客服:小西

    点击交谈

    QQ客服:良子

    点击交谈

    QQ客服:闵月

    点击交谈
  • 衢州市柯城区财富中心3号楼2楼

  • 衢州格堂装饰有限公司

  • 扫一扫关注官方微信

    获取一手特惠信息

快速回复 返回顶部 返回列表