• 手机版

    扫码体验手机版

  • 微信公众号

    扫码关注公众号

登录注册
游客您好
第三方账号登陆

[衢州] 望潮府9-#356㎡木白风

[复制链接]
发表于 2024-12-20 15:34:57 | 显示全部楼层 |阅读模式
望潮府9-#356㎡木白风

格堂装饰为您全程记录装修全过程!

小区名称
望潮府
房屋面积
356㎡
户型结构
排屋
装修风格
现代
装修方式
半包
装修造价
查看请联系客服万元
设计师
毛工
项目经理
施工
装修公司
格堂装饰
完工实景
完工实景
水电全景
水电全景
VR全景
VR全景
设计说明
从空间的构成
到空间的元素是态度决定生活的样貌
而不是风格住宅居所应是
一半繁华 一半静谧
一半诗意 一半自然
学习从未止步 热爱从未停止
更多信息
本帖最后由 格堂黄姐 于 2025-6-5 16:43 编辑

效果图

mmexport1735801952201.png

mmexport1735801948422.png

mmexport1735801956074.png

mmexport1735801959468.png

mmexport1735801961472.png

mmexport1735801964589.png
回复

使用道具 举报

 楼主| 发表于 2024-12-20 15:35:24 | 显示全部楼层
回复 支持 反对

使用道具 举报

 楼主| 发表于 2024-12-20 15:36:07 | 显示全部楼层
本帖最后由 格堂黄姐 于 2025-1-2 15:34 编辑

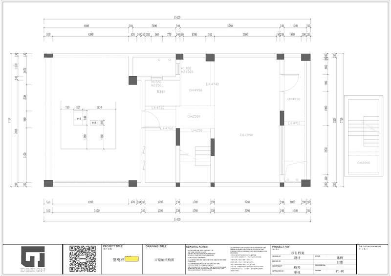
原始结果图
mmexport1735797319433.png

mmexport1735797325598.png

mmexport1735797330121.png

mmexport1735797334701.png

mmexport1735797338612.png
回复 支持 反对

使用道具 举报

 楼主| 发表于 2024-12-20 15:36:14 | 显示全部楼层
本帖最后由 格堂黄姐 于 2025-1-2 15:34 编辑

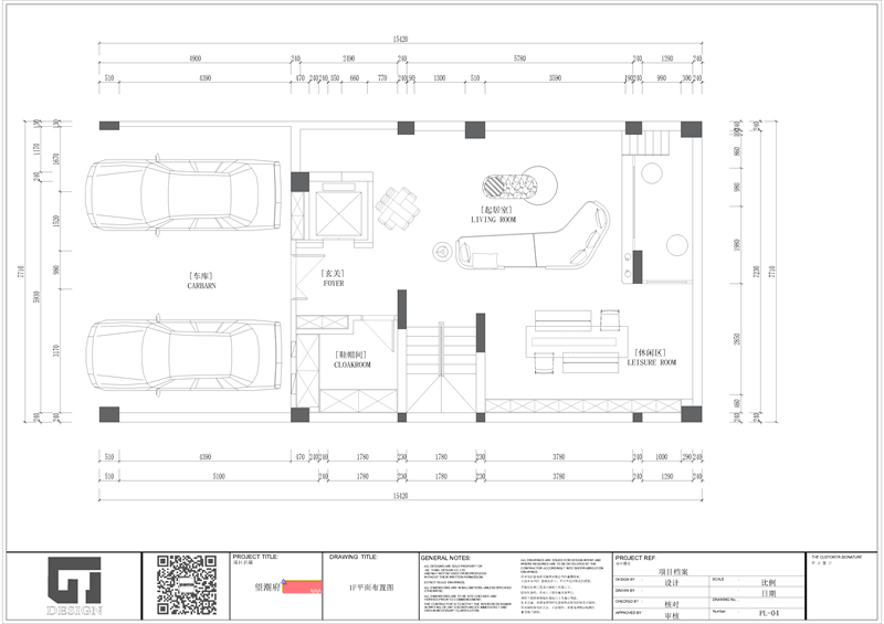
平面布置图

mmexport1735797322861.png

mmexport1735797327653.png

mmexport1735797332501.png

mmexport1735797336596.png

mmexport1735797340795.png
回复 支持 反对

使用道具 举报

 楼主| 发表于 2024-12-20 15:37:22 | 显示全部楼层
本帖最后由 格堂黄姐 于 2025-3-3 15:41 编辑

开工仪式准备,开工横幅、鲜花、礼花准备到位,就等吉时!
吉时到开工了,恭祝业主大人开工大吉!
mmexport1734584755219.jpg

开工第一锤,由业主敲在要拆除的墙体的墙角上,象征一锤定音,也代表着新房动土。
mmexport1734584759280.jpg
回复 支持 反对

使用道具 举报

 楼主| 发表于 2025-2-26 12:49:02 | 显示全部楼层
本帖最后由 格堂黄姐 于 2025-3-3 15:43 编辑

大门已经保护到位。
IMG_20250303_082602.jpg

煤气表已经保护到位。
IMG_20250303_082407.jpg
回复 支持 反对

使用道具 举报

 楼主| 发表于 2025-2-26 12:49:31 | 显示全部楼层
本帖最后由 格堂黄姐 于 2025-3-3 15:44 编辑

拆改阶段
楼板扎钢筋
mmexport1740538864551.jpg

mmexport1740538862130.jpg

mmexport1740538859989.jpg

mmexport1740538857885.jpg

mmexport1740538855698.jpg

mmexport1740538853767.jpg

mmexport1740538851845.jpg

回复 支持 反对

使用道具 举报

 楼主| 发表于 2025-2-26 12:49:49 | 显示全部楼层
mmexport1740538846577.jpg


mmexport1740538844738.jpg

mmexport1740538842737.jpg

mmexport1740538840799.jpg

mmexport1740538838650.jpg
回复 支持 反对

使用道具 举报

 楼主| 发表于 2025-3-3 15:45:52 | 显示全部楼层
现浇楼板和楼梯

车库
IMG_20250303_081319.jpg

IMG_20250303_081323.jpg

IMG_20250303_081328.jpg

IMG_20250303_081332.jpg

IMG_20250303_081336.jpg
回复 支持 反对

使用道具 举报

 楼主| 发表于 2025-3-3 15:46:38 | 显示全部楼层
车库对角

IMG_20250303_081347.jpg

IMG_20250303_081350.jpg

IMG_20250303_081355.jpg

IMG_20250303_081359.jpg

IMG_20250303_081403.jpg
回复 支持 反对

使用道具 举报

您需要登录后才可以回帖 登录 | 立即注册

本版积分规则

全国统一客服电话
0570-8028505

24x7小时免费咨询

  • 官方在线客服

    QQ客服:小西

    点击交谈

    QQ客服:良子

    点击交谈

    QQ客服:闵月

    点击交谈
  • 衢州市柯城区财富中心3号楼2楼

  • 衢州格堂装饰有限公司

  • 扫一扫关注官方微信

    获取一手特惠信息

快速回复 返回顶部 返回列表