• 手机版

    扫码体验手机版

  • 微信公众号

    扫码关注公众号

登录注册
游客您好
第三方账号登陆

[衢州] 国风澜园11-1-10#400㎡现代自然风——邂逅家的温柔梦境

[复制链接]
发表于 2024-12-20 15:16:24 | 显示全部楼层 |阅读模式
国风澜园11-1-10#400㎡木白风——邂逅家的温柔梦境

格堂装饰为您全程记录装修全过程!

小区名称
国风澜园
房屋面积
400㎡
户型结构
叠排
装修风格
现代
装修方式
半包
装修造价
查看请联系客服万元
设计师
毛工
项目经理
周工
装修公司
格堂装饰
完工实景
完工实景
水电全景
水电全景
VR全景
VR全景
设计说明
在繁华与喧嚣交织的都市中,我们不禁自问:何为理想的居住之所?是外在的奢华璀璨,还是内心的宁静致远?答案或许就藏在那份能抚平心灵疲惫,让人悠然自得的——温润、治愈、静谧的空间之中。
更多信息
本帖最后由 格堂黄姐 于 2025-2-13 16:17 编辑

效果图

mmexport1734678909053.jpg

mmexport1734678911308.jpg

mmexport1734678913495.jpg

mmexport1734678915670.jpg

mmexport1734678917813.jpg

mmexport1734678921448.jpg

mmexport1734678923812.jpg

mmexport1734678926103.jpg
回复

使用道具 举报

 楼主| 发表于 2024-12-20 15:28:18 | 显示全部楼层
回复 支持 反对

使用道具 举报

 楼主| 发表于 2024-12-20 15:29:10 | 显示全部楼层
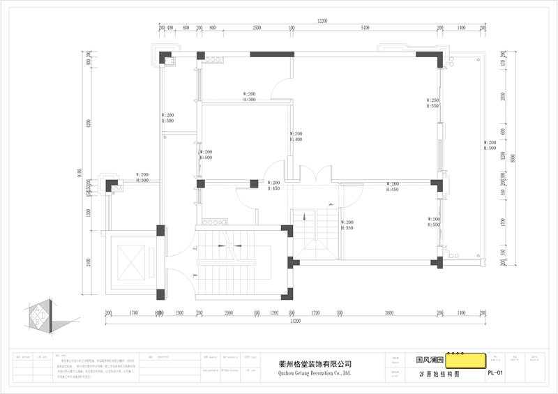
原始结果图

mmexport1734676605631.png

mmexport1734676616443.png

mmexport1734676623063.png

mmexport1734676629699.png
回复 支持 反对

使用道具 举报

 楼主| 发表于 2024-12-20 15:29:48 | 显示全部楼层
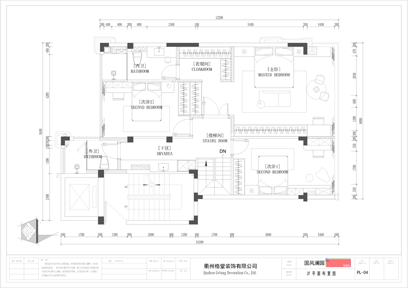
平面布置图

mmexport1734676611326.png

mmexport1734676619018.png

mmexport1734676625688.png

mmexport1734676632258.png
回复 支持 反对

使用道具 举报

 楼主| 发表于 2024-12-20 15:31:18 | 显示全部楼层
本帖最后由 格堂黄姐 于 2025-1-5 19:11 编辑

开工仪式准备,开工横幅、鲜花、礼花准备到位,就等吉时!
mmexport1734584566657.jpg

吉时到开工了,恭祝业主大人开工大吉!
mmexport1734584574607.jpg

开工第一锤,由业主敲在要拆除的墙体的墙角上,象征一锤定音,也代表着新房动土。
mmexport1734584582472.jpg

敲的痕迹
mmexport1734584588682.jpg

回复 支持 反对

使用道具 举报

 楼主| 发表于 2025-1-5 19:13:10 | 显示全部楼层
本帖最后由 格堂黄姐 于 2025-1-5 20:10 编辑

拆改阶段
负二活动区
IMG_20250104_125953.jpg

IMG_20250104_125958.jpg

IMG_20250104_130003.jpg

IMG_20250104_130008.jpg

IMG_20250104_130013.jpg
回复 支持 反对

使用道具 举报

 楼主| 发表于 2025-1-5 19:13:52 | 显示全部楼层
负二活动区对角

IMG_20250104_130024.jpg

IMG_20250104_130028.jpg

IMG_20250104_130033.jpg

IMG_20250104_130037.jpg

IMG_20250104_130042.jpg
回复 支持 反对

使用道具 举报

 楼主| 发表于 2025-1-5 19:14:27 | 显示全部楼层
负二过道

IMG_20250104_130059.jpg

IMG_20250104_130101.jpg

IMG_20250104_130103.jpg

IMG_20250104_130105.jpg

IMG_20250104_130106.jpg
回复 支持 反对

使用道具 举报

 楼主| 发表于 2025-1-5 19:14:55 | 显示全部楼层
负二过道对角

IMG_20250104_130139.jpg

IMG_20250104_130141.jpg

IMG_20250104_130143.jpg

IMG_20250104_130145.jpg

IMG_20250104_130147.jpg
回复 支持 反对

使用道具 举报

 楼主| 发表于 2025-1-5 19:15:56 | 显示全部楼层
本帖最后由 格堂黄姐 于 2025-1-5 19:17 编辑

负二操作间

IMG_20250104_130203.jpg

IMG_20250104_130206.jpg

IMG_20250104_130211.jpg

IMG_20250104_130215.jpg

IMG_20250104_130219.jpg
回复 支持 反对

使用道具 举报

您需要登录后才可以回帖 登录 | 立即注册

本版积分规则

全国统一客服电话
0570-8028505

24x7小时免费咨询

  • 官方在线客服

    QQ客服:小西

    点击交谈

    QQ客服:良子

    点击交谈

    QQ客服:闵月

    点击交谈
  • 衢州市柯城区财富中心3号楼2楼

  • 衢州格堂装饰有限公司

  • 扫一扫关注官方微信

    获取一手特惠信息

快速回复 返回顶部 返回列表